
Predaj bytu 2+1 • 62 m² bez realitkyHelmut-Lederer-Str. 48 Erlangen Alterlangen Bayern 91056
Tento vlastný byt s terasou a záhradou ponúka na 62 m² príjemný komfort vo veľmi dobrej a pokojnej lokalite. Je súčasťou udržiavaného komplexu pozostávajúceho z 3 domov, pričom v každom z nich je 8 bytov vo 2 poschodiach. Fasáda bola v roku 2025 kompletne zrekonštruovaná. Byt sa nachádza v prízemí druhého domu a je bezbariérový; je prístupný najkratšou cestou zvonku alebo prostredníctvom podzemnej garáže s výťahom. Dvere závor v podzemnej garáži boli nedávno elektricky modernizované. Podzemná garáž spája všetky 3 domy. K dispozícii je aj možnosť dokúpiť parkovacie miesto v podzemnej garáži.
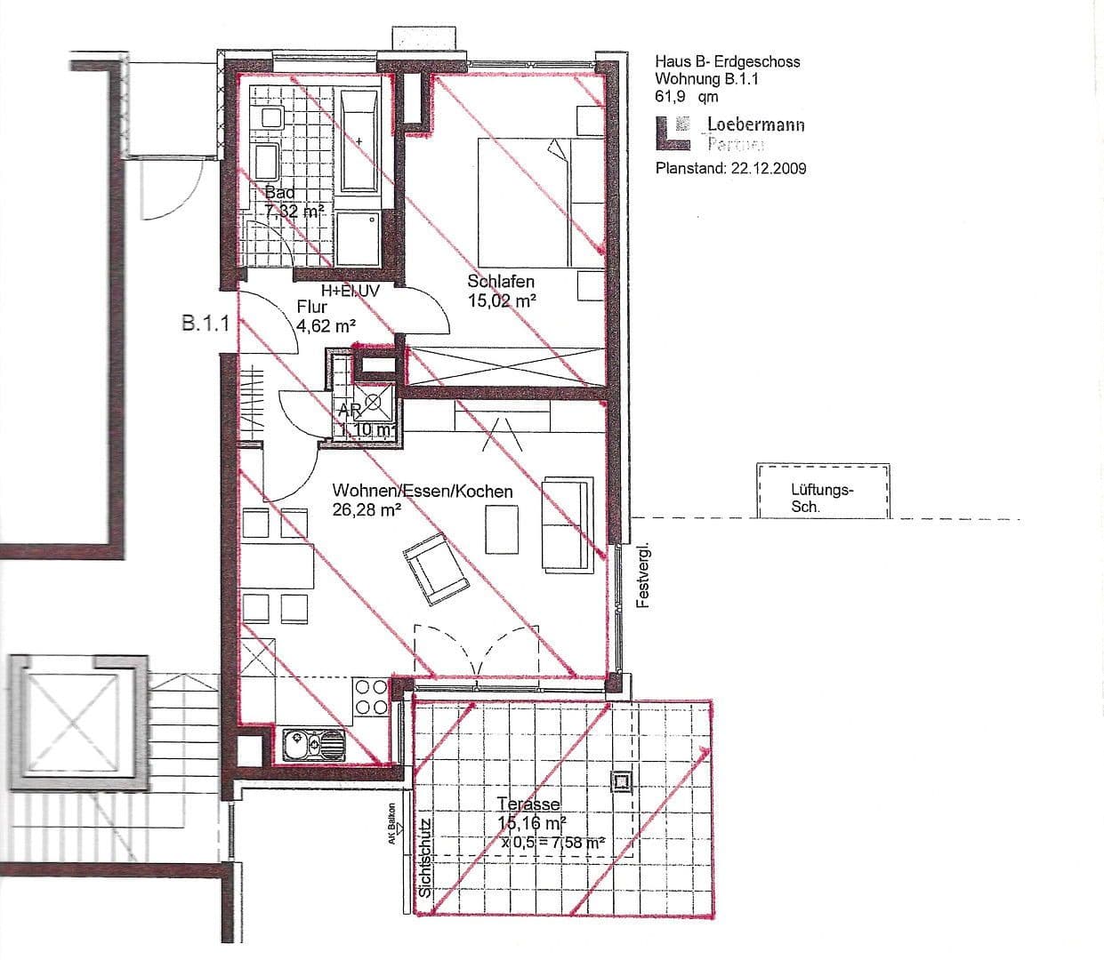
Dvere bytu sa otvárajú do predsiene, ktorá ústredne spája všetky miestnosti: obývaciu časť s vybavenou kuchyňou, spálňu, kúpeľňu a malú komoru s možnosťou pripojenia práčky. Z otvoreného obývacieho a jedálneho priestoru sa cez terasu dostanete do záhrady. Terasa má rozlohu 15 m² a je čiastočne zastlaná, čo chráni záhradný nábytok. Záhrada má približne 100 m², obsahuje trávnik, živý plot, kríky a trvalky a má aj záhradné dvere vedúce na spoločné priestory, stojany na bicykle a malé ihrisko.
K bytu patrí aj uzamykateľný suterén s rozlohou 8,77 m², s oknom na vetranie. Ďalšie detaily sú uvedené v časti "Vybavenie".
Údržba a zimná údržba sú zverené firme. Byt bol od dokončenia v roku 2011 obývaný iba jednou osobou, a preto je vo veľmi udržiavanom stave. Tento byt je ponúkaný bez sprostredkovateľa. Finančné potvrdenie vašej banky je podmienkou pre nadviazanie kontaktu s predávajúcim.
Byt sa nachádza v Erlangene/Štátnej osade na okraji mesta, v ulici so zníženým dopravným provozom, s priamym vstupom cez námestie do nákupného centra N. E. W. Einkaufszentrum Neumühle. V bezprostrednom okolí je teda možné pešo dosiahnuť všetky základné potreby: supermarket, pekáreň, lekárov, fyzioterapiu, čistiacu službu, kaderníka, papiernictvo, drogériu, reštaurácie, balíkový automat, OBI-domáce potreby, západné kúpalisko a najmä prírodu v oblasti Wiesengrund. Vynikajúca infraštruktúra zahŕňa autobusovú zastávku (linky 287, 281) vzdialenú 200 metrov, cyklotrasy do centra alebo na okolie a diaľnicu A73, ktorá je dosiahnuteľná len do 3 minút.
• Bezbariérový prístup a výťah do suterénu cez podzemnú garáž s elektrickými závorovými dverami
• Schodisko a chodby s prírodnými granitovými podlahami
• Zvonenie s videointerkomom
• Stenu od podlahy až po strop v obývacej miestnosti a spálni
• Okná s parapetom v kuchyni a kúpeľni
• Výška miestnosti 250 cm
• Vysoko kvalitná parketová podlaha z masívneho dubového dreva, prírodne lakovaná
• Podlahové kúrenie
• Trojitý zasklené plastové okná
• Elektrické rolety v obývacej miestnosti
• Klimatizácia, Monoblock Solo 2,5H, NP 2.870,--€, v spálni
• Vaňa a sprcha v kúpeľni, vybavenie značiek Duravit, Emco a Grohe
• Komora s možnosťou pripojenia práčky a úložné priestory
• Vysoko kvalitný plisovaný záves v spálni, NP 1.680,--€
• Na mieru vyrobené závesové systémy s Clic-Haken systémom v obývacej miestnosti a spálni
• Okná s moskytiérou v izbách, v kúpeľni je odnímateľná sieť proti muchám
• TV/kabelové a telefónne/LAN pripojenia v spálni a obývacej miestnosti
• Byt je pripojený na domovú satelitnú anténu a optické vlákno
• Kuchyňa je vybavená chladničkou, malou mrazničkou, umývačkou riadu, liekovou skriňou, hlbokými zásuvkami, keramickou doskou, skladacou skriňou a rúrou – spotrebiče značky NEFF
• Zateplený suterén s tesnými dverami a oknom
• Nábytok viditeľný na fotografiách sa nepredáva, vstavaná šatní skriňa so šatníkom sa ponecháva
• Biohort záhradný skrine, NP cca 1.000 €, Biohort záhradná truhlica na vankúše a podobne sú zahrnuté v cene
• K dispozícii je aj bicyklová suterénna miestnosť, ako aj stojany pred domom
• Verejné parkovacie miesta sú dostatočne k dispozícii
• Obytný komplex je pripojený na kogeneračné zariadenie Westbad
Parametre nehnuteľnosti
| Vek | Nad 50 rokov |
|---|---|
| Stav | Dobrý |
| Číslo inzerátu | 973452 |
| Cena za jednotku | 5 726 € / m2 |
| Dostupné od | 1. 2. 2026 |
|---|---|
| Dispozícia | 2+1 |
| Úžitková plocha | 62 m² |
Čo táto nehnuteľnosť ponúka?
| Pivnica | |
| Výťah | |
| Terasa |
| Garáž | |
| MHD 3 minúty pešo |
V okolí nehnuteľnosti nájdete
Stále hľadáte to pravé?
Nastavte si strážneho psa. Ponuky vybrané na mieru dostanete súhrnne 1× denne e-mailom. S Premium profilom máte po ruke rovno 5 strážcov a keď sa niečo objaví, informujú vás obratom.

















































