
Predaj bytu 2+1 • 70 m² bez realitkyErdmannstraße Berlin Schöneberg Berlin 10827
Erdmannstraße Berlin Schöneberg Berlin 10827MHD 1 minúta pešoNEMČINA: Tento pôvabný 2-izbový byt v historickej budove sa nachádza v 2. poschodí, v bočnom krídle nádhernej historickej budovy. S výhľadom na pokojný, zelený vnútorný dvor ponúka dokonalú kombináciu pokojného bývania a blízkosti k jednému z najživších berlínskych štvrtí.
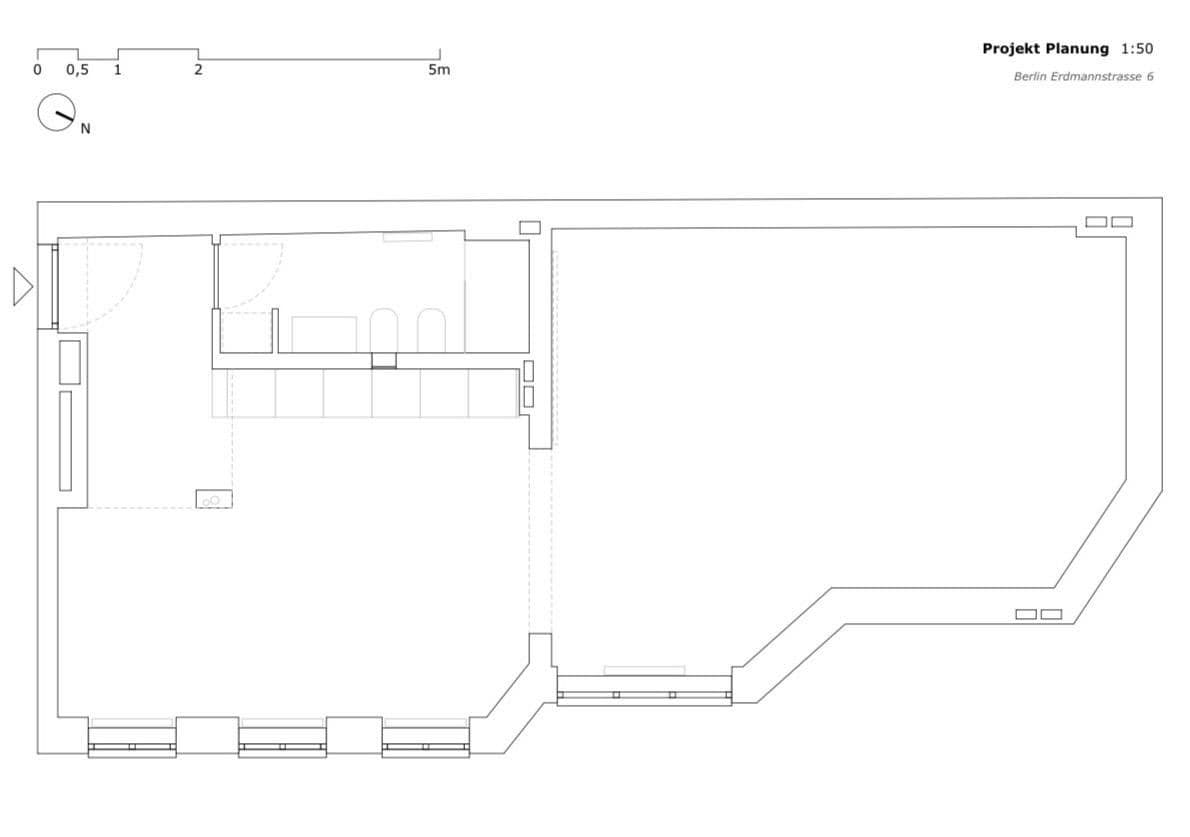
Byt bol v roku 2020 kompletne zrekonštruovaný. Tradičný pôdorys staršej budovy bol premenený na moderný, otvorený priestor, ktorý zabezpečuje hojný prísun denného svetla a optimálne využitie plochy, pričom boli starostlivo zachované pôvodné architektonické detaily.
ANGLICKY: Tento vkusný 2-izbový byt v staršej budove sa nachádza v 2. poschodí, v bočnom krídle krásne zachovanej historickej budovy. S výhľadom na pokojný, zelený dvor ponúka dokonalú kombináciu pokojného bývania a blízkosti k jednému z najživších berlínskych štvrti.
Kompletne zrekonštruovaný v roku 2020, byt premenil tradičný berlínsky pôdorys na moderný, otvorený priestor, navrhnutý tak, aby maximalizoval prirodzené osvetlenie a optimalizoval funkčnosť, pričom boli starostlivo zachované pôvodné architektonické detaily.
NEMČINA: Byt sa nachádza v jednej z najživších častí Schönebergu, v Crellekieze, známy pre svoju multikultúrnu a umeleckú atmosféru a zmiešaného charakteru miestnych aj medzinárodných obyvateľov. Kulinarická scéna tejto štvrte je výnimočná, s niektorými z najlepších kaviarní, pekární, reštaurácií, zmrzlinární a barov v Berlíne.
Byt leží len niekoľko stoviek metrov od stanice S1 (Julius-Leber-Brücke) a U7 (Kleistpark), čím zaisťuje vynikajúce spojenie s celým Berlínom.
ANGLICKY: Byt sa nachádza v jednej z najživších oblastí Schönebergu, v Crellekieze, známy pre svoju multikultúrnu a umeleckú energiu, s kombináciou miestnych Berlínčanov a medzinárodných obyvateľov. Kulinárska scéna jednoducho vyniká – nájdete tu niektoré z najlepších kaviarní, pekární, reštaurácií, zmrzlinární a barov v Berlíne.
Prakticky umiestnený len pár stoviek metrov od stanice S1 (Julius-Leber-Brücke) a U7 (Kleistpark) ponúka byt aj vynikajúce spojenia po celom Berlíne.
NEMČINA: Od rekonštrukcie v roku 2020 je byt obývaný vlastníkom.
Parametre nehnuteľnosti
| Vek | Nad 50 rokov |
|---|---|
| Dispozícia | 2+1 |
| Číslo inzerátu | 969951 |
| Úžitková plocha | 70 m² |
| Dostupné od | 30. 6. 2026 |
|---|---|
| Poschodie | 2. poschodie |
| PENB | F - veľmi nehospodárne |
| Cena za jednotku | 8 357 € / m2 |
Čo táto nehnuteľnosť ponúka?
| MHD 1 minúta pešo |
V okolí nehnuteľnosti nájdete
Stále hľadáte to pravé?
Nastavte si strážneho psa. Ponuky vybrané na mieru dostanete súhrnne 1× denne e-mailom. S Premium profilom máte po ruke rovno 5 strážcov a keď sa niečo objaví, informujú vás obratom.


















