
Predaj bytu 3+1 • 90 m² bez realitky, Hesensko
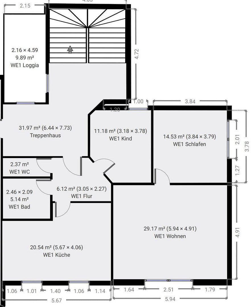
Na predaj je krásny a svetlý 3-izbový byt (v 2. nadzemnom podlaží) v Schöneck-Büdesheim, nachádzajúci sa v 6-domovom dome.
Byt je momentálne prenajatý, no môže byť krátkodobo odovzdaný prázdny a je vhodný pre vlastné bývanie. Aktuálny mesačný nájom činí 700 € – existuje vysoký potenciál zvyšovania nájomného, keďže bežná cena prenájmu na m² je okolo 11,50–12,00 €.
Prosíme, aby nás kontaktovali iba tí záujemcovia, ktorí majú zabezpečené financovanie, t. j. príslušné rozhovory už boli vedené s bankou alebo finančným poradcom a kreditná bonita/čistý príjem sú dostatočné na financovanie nehnuteľnosti.
Bez provízie – priamo od vlastníka!
NEŽIADAME DOPYTY OD MAKLÉROV A NEODPOVEDÁME NA NE!
Schöneck sa nachádza na železničnej trase Frankfurt/M, Bad Vilbel – Stockheim. Železničná stanica Büdesheim je dostupná pešo do 5 minút. Vzdialenosť do centra Frankfurtu je približne 15 km.
Základná škola a materská škola sú v pešej vzdialenosti (300–400 m). Mnoho obchodov s bežnou spotrebou, rôzne supermarkety, 5 mäsiarstiev, 4 pekárne, sociálne zariadenia, ako sú jasle a školy, lekári, ako aj pestrá ponuka voľnočasových a kultúrnych aktivít ponúka rozvíjajúca sa, živá obec Schöneck.
- Vstavaná kuchyňa
- Parkety/laminát
- Balkón
- Hosťovské WC
- Pôdny priestor
Prosím, NEzasielajte dopyty od maklérov!
Parametre nehnuteľnosti
| Vek | Nad 50 rokov |
|---|---|
| Dispozícia | 3+1 |
| Číslo inzerátu | 1017776 |
| Úžitková plocha | 90 m² |
| Stav | Dobrý |
|---|---|
| Poschodie | 2. poschodie z 3 |
| PENB | D - Menej hospodárne |
| Cena za jednotku | 2 777,78 € / m2 |
Čo táto nehnuteľnosť ponúka?
| Balkón |
| MHD 2 minúty pešo |
V okolí nehnuteľnosti nájdete
Stále hľadáte to pravé?
Nastavte si strážneho psa. Ponuky vybrané na mieru dostanete súhrnne 1× denne e-mailom. S Premium profilom máte po ruke rovno 5 strážcov a keď sa niečo objaví, informujú vás obratom.












