
Predaj bytu 3+1 • 98 m² bez realitkySavoyenring 10, , Hesensko
Savoyenring 10, , HesenskoMHD 4 minúty pešo • Parkovanie • GarážSie snívate o dome s veľa priestorom, moderným bývacím komfortom a voľným výhľadom do zelene? Túžite žiť pokojným životom a zároveň profitovať z výborného dopravného spojenia? Potom by pre vás mohol byť táto atraktívna bytová jednotka v žiadanej lokalite v Mörfelden-Walldorf presne to pravé.
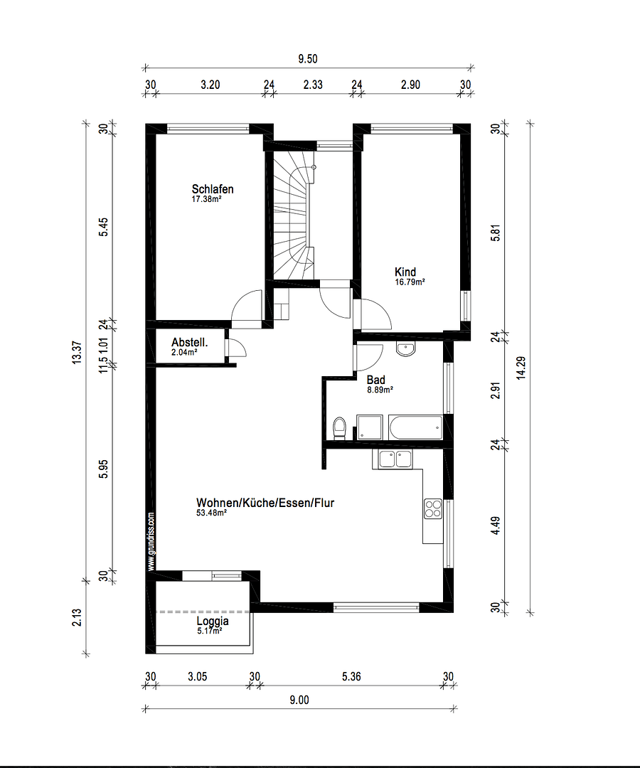
Byt sa nachádza v prvom nadzemnom podlaží tichého a udržiavaného viacrodinného domu z roku 2003 a prezentuje sa v vysoko kvalitne zmodernizovanom stave. Na približne 98 m² obytného priestoru ponúka ideálne podmienky pre páry alebo malé rodiny.
Srdcom bytu je priestranný obývací a jedálenský priestor s otvorenou, modernou vstavanou kuchyňou. Premyslené dispozičné riešenie a príjemné prirodzené svetlo vytvárajú svetlú a útulnú atmosféru s mimoriadnou kvalitou pobytu.
Z obývacej izby aj z kuchyne sa dostanete na slnečný balkón, ktorý vás nadchne nezablokovaným výhľadom na susednú chránenú prírodu. Táto výnimočná poloha ponúka pocit bývania, ktorý spája pokoj, priestrannosť a prírodu veľmi príjemným spôsobom.
Ďalšie priestory zahŕňajú priestrannú kúpeľňu s denným svetlom, do ktorej patrí aj sprchovací kút aj vaňa, dve dobre dispozíčne spálne, príjemný predsieň a praktickú a priestrannú komoru. Ponuku dopĺňa uzamykateľný pivničný priestor, parkovacie miesto a garáž.
Aj z energetického hľadiska vás byt presvedčí: S energetickou triedou A je mimoriadne zaujímavý pre kupujúcich, ktorí si cenia udržateľný životný štýl a nízke spotrebné hodnoty.
Ak si ceníte moderné bývanie v prírode, v pokojném prostredí, tešíme sa na vašu reakciu.
Byt sa nachádza v mimoriadne obľúbenom a pokojnom rezidenčnom sektore Mörfelden-Walldorf, v bezprostrednej blízkosti rozsiahlej chránenej prírody. Voľný, nezablokovaný výhľad do zelene dodáva lokalite osobitú hodnotu bývania a zabezpečuje prírodné, uvoľnené prostredie s vysokým relaxačným potenciálom. Či už pre prechádzky, športové aktivity alebo pokojné chvíle na balkóne – príroda začína prakticky hneď pred dverami.
Zároveň profitujete z veľmi dobrej infraštruktúry v každodennom živote. Niekoľko supermarketov, pekární a lekární je vzdialených približne desať minút chôdze. V bezprostrednom okolí sa nachádza aj základná škola a materské školy, čo robí lokalitu mimoriadne atraktívnou pre páry a rodiny. Ponuku dopĺňajú reštaurácie, kaviarne a ďalšie obchody každodennej potreby.
Z dopravného hľadiska vás poloha tiež nadchne: Autobusové a vlakové spojenia sú pohodlne dostupné a umožňujú rýchle spojenie mimo iného s Frankfurtom, Darmstadtom a letiskom. Autom sa za pár minút dostanete k diaľniciam A5 a A67. Takým pádom tento lokalita ideálne spája bývanie blízko prírody so vynikajúcou regionálnou a nadregionálnou dostupnosťou.
Rezidenčné prostredie, ktoré harmonicky spája pokoj, prírodu a vynikajúce spojenie.
Byt zaujme vysoko kvalitným vybavením a premysleným obytným konceptom, ktorý úspešne spája komfort, štýl a každodennú použiteľnosť. Mimoriadnym „hitom“ je nádherný, nezablokovaný výhľad na susedný chránený priestor v kombinácii s atraktívnou polohou na okraji poľa. Na juh orientovaný balkón vás pozýva vychutnať si pokojné prostredie a slnko naplno.
V interiéri vytvára priestranná obývacia izba s otvoreným riešením svetlú a príjemnú atmosféru. Vysoko kvalitná otvorená kuchyňa plynule zapadá do obývacej časti a podčiarkuje moderný charakter bytu. Parketová podlaha v celom byte a podlahové kúrenie zaručujú príjemný pocit zo bývania a štýlový celkový dojem.
Aj kúpeľňa sa prezentuje moderne a je vysoko kvalitne vybavená. Okrem denného svetla ponúka extra priestranný sprchovací kút a rohovú vaňu, čím spĺňa nielen funkčné, ale aj komfortne orientované požiadavky. Vysokokvalitné materiály, moderné elektroinštalácie a vykurovacie systémy dopĺňajú veľmi udržiavaný a súčasný celkový dojem.
Praktickým prínosom je navyše dodatočný úložný priestor priamo v byte, samostatne uzamykateľný pivničný priestor s rozlohou cca 6 m², garáž aj dodatočné parkovacie miesto.
Celkovo tento byt ponúka úspešnú kombináciu vysoko kvalitného vybavenia, priestranného pocitu zo bývania a bývania blízko prírody v atraktívnej lokalite.
Všetky hlavné výhody na jeden pohľad:
+ Nádherný výhľad na chránenú prírodu
+ Podlahové kúrenie
+ Poloha na okraji poľa
+ Dodatočný úložný priestor v byte
+ Garáž
+ Dodatočné parkovacie miesto
+ Vysoko kvalitná a otvorená kuchyňa
+ Priestranná obývacia izba s otvoreným riešením
+ Balkón orientovaný na juh
+ Parketová podlaha v celom byte
+ Moderná kúpeľňa s denným svetlom
+ Extra veľký priestranný sprchovací kút
+ Rohová vaňa
+ Vysokokvalitné materiály
+ Moderné elektroinštalácie a rozvody
+ 6 štvorcových metrov samostatne uzamykateľnej pivnice
V súčasnosti sa do domu pripravuje optické pripojenie. Nehnuteľnosť je tak dokonale pripravená na moderné a budúcnostou zabezpečené internetové pripojenie.
Poznámka k mesačným nákladom na správu domu:
Aktuálny mesačný poplatok na správu domu je 480 €. Avšak predpokladá sa, že sa táto suma v budúcnosti výrazne zníži. Po prvé, je plánovaná zmena správy domu, čo by malo priniesť efektívnejšiu nákladovú štruktúru. Po druhé, v uplynulých rokoch boli už úspešne dokončené rozsiahle modernizačné a údržbové opatrenia. Vďaka tomu je eliminovaná značná časť predchádzajúcich výdavkov, pričom tvorba rezerv môže byť v budúcnosti prispôsobená a pravdepodobne znížená.
Parametre nehnuteľnosti
| Vek | Nad 50 rokov |
|---|---|
| Dispozícia | 3+1 |
| Číslo inzerátu | 1014917 |
| Úžitková plocha | 98 m² |
| Stav | Dobrý |
|---|---|
| Poschodie | 1. poschodie z 2 |
| PENB | A - Mimoriadne úsporné |
| Cena za jednotku | 4 581,63 € / m2 |
Čo táto nehnuteľnosť ponúka?
| Balkón | |
| Garáž | |
| MHD 4 minúty pešo |
| Pivnica | |
| Parkovanie |
V okolí nehnuteľnosti nájdete


Predaj bytuMittlerer Schafhofweg 28 Frankfurt am Main Sachsenhausen Hessen 60598- 3+1
- 72 m²
425 000 € + 460 €


Stále hľadáte to pravé?
Nastavte si strážneho psa. Ponuky vybrané na mieru dostanete súhrnne 1× denne e-mailom. S Premium profilom máte po ruke rovno 5 strážcov a keď sa niečo objaví, informujú vás obratom.























