
Predaj bytu 3+1 • 75 m² bez realitkyBerlin Weißensee Berlin 13088
Hlavné prednosti nehnuteľnosti
• Slnivý maisonette byt s ideálnym južným výhľadom
• Voľný na nastťahovanie – ideálny pre vlastníkov bývania (páry a rodiny)
• Dva balkóny na oboch obytných úrovniach
• Priestranná jedálenská kuchyňa ako centrálny stredobod domova
• Pokojná poloha v bočnom krídle s výhľadom do zelene
• Veľmi dobre navrhnutý pôdorys cez 2 úrovne
• Vysoko kvalitné parkety vo všetkých obytných priestoroch
• Udržiavaný dom so zrekonštruovanou štruktúrou (1998)
• Príjemná, ustálená domáca komunita
• Spoločná záhrada k dispozícii
• Dopravne upokojavená cyklistická ulica
• Iba cca 5 minút pešo k jazeru
Tento kúzelný maisonette byt sa rozprestiera na 2. a 3. poschodí udržiavaného historického domu v obľúbenom Komponistenvierteli – domov, ktorý spája pokoj, svetlo a priestrannosť úplne výnimočným spôsobom.
Už pri vstupe pocítite príjemnú atmosféru: Byt je celkovo orientovaný na juh, a preto je mimoriadne svetlý a slnečný – dojem, ktorý preniká všetkými miestnosťami a vytvára mimoriadne útulnú náladu.
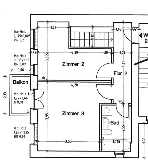
Dolná úroveň tvorí s priestrannou jedálenskou kuchyňou srdce bytu. Tu je veľa priestoru pre spoločné varenie, život a stretávanie – ideálne pre páry alebo rodiny, ktoré si cenia otvorený a komunikatívny domov. Priľahlý južný balkón rozširuje obytný priestor von a láka na užívanie si slnečných hodín. Na tejto úrovni sa nachádza aj udržiavané návštevné WC.
Na hornom poschodí na vás čakajú dve dobre navrhnuté izby, ktoré možno flexibilne využiť ako spálňu, detskú izbu alebo pracovňu. Aj tu ponúka ďalší balkón dodatočný priestor. Kúpeľňa, ktorá je taktiež na tejto úrovni, sa prezentuje v udržiavanom stave.
Byt bol komplexne zrekonštruovaný a je k dispozícii ako prvé nastťahovanie. Jednotné parkety vo všetkých miestnostiach dodávajú priestoru teplý a kvalitný vzhľad a podčiarkujú príjemný charakter tohto výnimočného bytu.
Napriek centrálnej polohe sa byt nachádza pokojne v bočnom krídle domu a ponúka pekný výhľad do zelene. Tu si užijete príjemnú možnosť ústupu od ruchu mesta.
Aj samotná budova presviedča: Celý komplex bol v roku 1998 zrekonštruovaný do jadra a odvtedy pravidelne udržiavaný. Udržiavaný stav a príjemná domová komunita navyše prispievajú k vysokej kvalite bývania. Spoločná záhrada dopĺňa celkový dojem.
Byt je voľný na nastťahovanie a ponúka ideálne podmienky pre všetkých, ktorí hľadajú pokojný, slnečný a zároveň živý domov.
Poloha
Byt sa nachádza v dopravne upokojenej obytné ulici v Komponistenvierteli v Berlíne-Weißensee. Táto oblasť patrí medzi žiadané obytné lokality v okrese Pankow. Charakterizovaná kúzelnými starými budovami, zelenými ulicami a pokojnou atmosférou, štvrť ponúka ideálne prostredie pre všetkých, ktorí chcú spojiť mestský život s oddychom.
Mestská časť Weißensee susedí priamo s obľúbenou umeleckou štvrťou Prenzlauer Berg a teší sa najmä u mladých rodín. Svoj názov si toto miesto získalo podľa idylického Bieleho jazera, na jehož východnom brehu vznikla prvá osada a kde sa dnes nachádza letný kúpeľ, detské ihrisko a reštaurácia.
Obchodné možnosti, kaviarne a verejná doprava sú v bezprostrednej blízkosti na ulici Berliner Allee. Príjemná zmes mestského života a pokojnej obytné atmosféry. Oblúbené štvrte ako Komponistenviertel a Holländerviertel, kultúrne zariadenia ako Brotfabrik, ale aj kúzelné námestia okolo Antonplatz a Mirbachplatz, formujú živý vzhľad lokality. Kultúrnym symbolom je aj umělecká vysoká škola Weißensee, ktorá má medzinárodnú povesť. Navyše sa tu nachádza najväčší židovský cintorín v Európe – miesto s bohatou históriou a pôsobivou atmosférou.
Dopravné spojenie je vynikajúce: Autom sa do City-Ost dostanete len za 10 až 15 minút. Tramvajové linky M4, M12 a M13 a autobus č. 255 sú vzdialené približne 500 metrov. K stanici S-Bahn Greifswalder Straße (okružná trať) je len tri zastávky – ideálne pre rýchle spojenie do všetkých častí mesta.
Byt disponuje novo brúsenými a impregnovanými parketami, ktoré dodávajú všetkým miestnostiam teplý a kvalitný vzhľad.
Obklady vo forme dlažby vo vanovej kúpeľni sa nachádzajú na hornom poschodí, zatiaľ čo na dolnej úrovni je k dispozícii samostatné hostínske WC.
Všetky okná sú vybavené izolačným dvojsklom. Všetky miestnosti sú vykurované cez centrálny kúrenársky systém.
Je tiež k dispozícii prívod plynu, ktorý umožňuje varenie na plynovom sporáku v kuchyni.
Tento rok budú v rámci nehnuteľnosti ponúkané ďalšie byty na predaj. Tým sa otvára jedinečná príležitosť pre kupujúcich, ktorí si prajú bývať spoločne s rodinou alebo priateľmi v jednom dome.
Nehnuteľnosť je preto aj ideálna pre koncepty viacgeneračného bývania alebo komunitné bývanie.
Parametre nehnuteľnosti
| Vek | Nad 50 rokov |
|---|---|
| Stav | Po rekonštrukcii |
| Poschodie | 2. poschodie z 2 |
| PENB | D - Menej hospodárne |
| Cena za jednotku | 7 320 € / m2 |
| Dostupné od | 17. 4. 2026 |
|---|---|
| Dispozícia | 3+1 |
| Číslo inzerátu | 1013132 |
| Úžitková plocha | 75 m² |
Čo táto nehnuteľnosť ponúka?
| Balkón |
| MHD 1 minúta pešo |
V okolí nehnuteľnosti nájdete
Stále hľadáte to pravé?
Nastavte si strážneho psa. Ponuky vybrané na mieru dostanete súhrnne 1× denne e-mailom. S Premium profilom máte po ruke rovno 5 strážcov a keď sa niečo objaví, informujú vás obratom.



























