
Predaj bytu 3+1 • 73 m² bez realitkyMünchen Maxvorstadt Bayern 80796
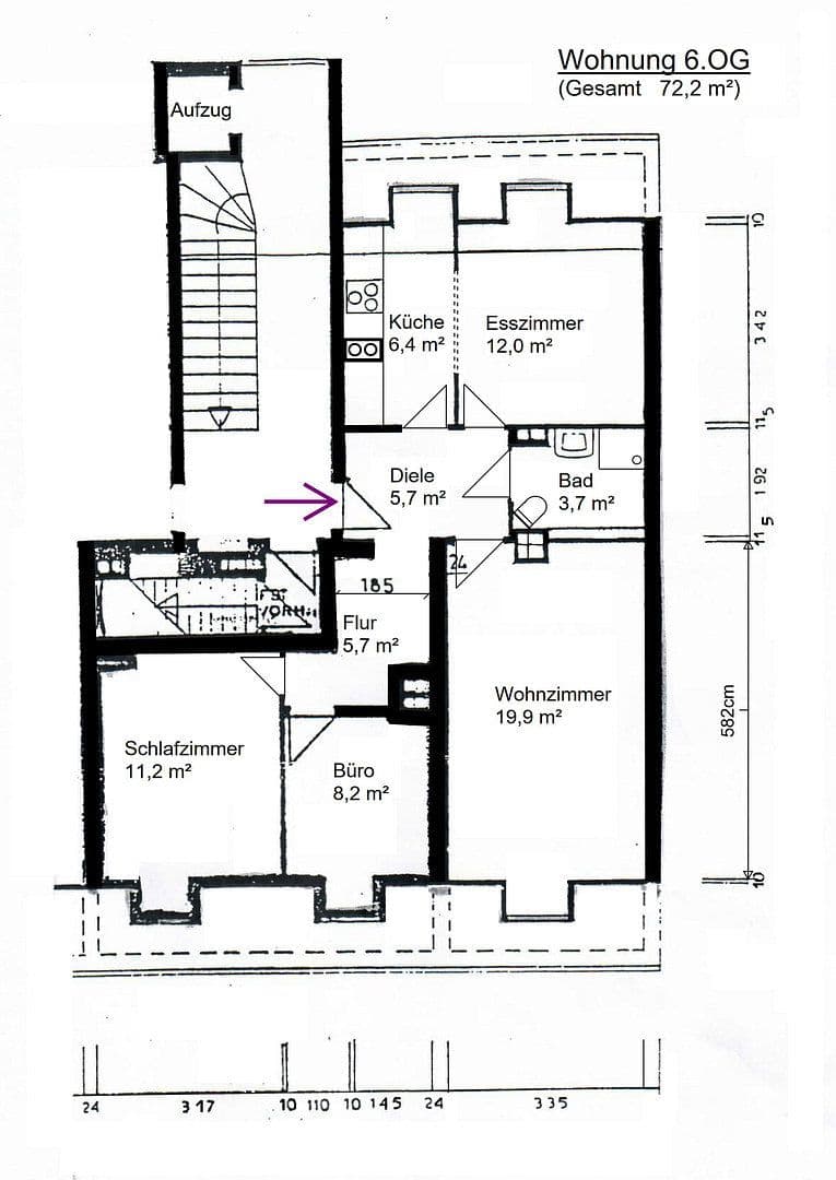
München Maxvorstadt Bayern 80796MHD 2 minúty pešo • VýťahTento svetlý 3-izbový podkrovný byt s 72,2 m² čistej obytného priestoru sa nachádza v 6. poschodí (s výťahom) udržiavaného viacrodinného domu v Mníchove, v štvrti Maxvorstadt, priamo pri stanici metra U2 Josephsplatz. K bytu patrí pivnica aj podkrovný úložný priestor, ktoré ponúkajú dodatočné úložné možnosti.
Byt sa nachádza v centrálnom umiestnení, priamo pri stanici metra U2 (Josephsplatz). Dve autobusové linky majú zastávky práve pred dverami. Mníchove univerzity (LMU, TU, Vysoká škola Mníchov) a múzejná štvrť sú verejnou dopravou, pešo alebo na bicykli rýchlo a dobre dostupné. V susednej ulici Augustenstraße sa nachádza množstvo barov, kaviarní a reštaurácií. Hoci byt nemá balkón, len 2-3 minúty chôdze od neho sa nachádza starý severný cintorín, ktorý obyvatelia využívajú ako park. Aj Anglická záhrada nie je ďaleko. V bezprostrednom okolí sa nachádza množstvo obchodov (pekáreň, mäsiarsky obchod, papiernictvo vrátane supermarketov a drogérií). Lekársky dom a niekoľko lekární sú tiež priamo pri Josephsplatze; základná škola a gymnázium sú v tesnej blízkosti.
Byt je vybavený jedálňou, predsieňou a kanceláriou prípadne detskou izbou s bielymi vstavanými skriňami. Všetky dvere sú zo skla (spálňa a kúpeľňa majú súkromné sklenené dvere). Vstavaná kuchyňa je vyrábaná na mieru a je vybavená mikrovlnkou, sporákom, rúrou, umývačkou riadu a vstavanou chladničkou (všetky od Siemens/Neff). Kuchyňa a jedálenský priestor sú otvoreného dizajnu a z oboch miestností sa naskytáva pekný výhľad na kostol Josephskirche. V susednom dome ponúka práčovňa (práčka v kúpeľni) platené používanie sušičiek, ako aj služby čistenia bielizne a žehlenia. Lekársky dom a rôzne lekárne sú tiež priamo pri Josephsplatze.
Nehnuteľnosť je vhodná na vlastné bývanie, ale aj ako investičný objekt. Prenájom je veľmi výhodný. Byt môže byť po dohode aj plne zariadený so všetkým vybavením.
Na zlepšenie energetickej efektívnosti budovy existuje aj plán rekonštrukcie, ktorý v prvom kroku predpokladá zatepľovacie opatrenia na streche a v pivnici, ako aj výmenu okien v schodiskovom dome.
Parametre nehnuteľnosti
| Vek | Nad 50 rokov |
|---|---|
| Dispozícia | 3+1 |
| Úžitková plocha | 73 m² |
| Stav | Po rekonštrukcii |
|---|---|
| Číslo inzerátu | 1010855 |
| Cena za jednotku | 10 095,89 € / m2 |
Čo táto nehnuteľnosť ponúka?
| Pivnica | |
| MHD 2 minúty pešo |
| Výťah |
V okolí nehnuteľnosti nájdete
Stále hľadáte to pravé?
Nastavte si strážneho psa. Ponuky vybrané na mieru dostanete súhrnne 1× denne e-mailom. S Premium profilom máte po ruke rovno 5 strážcov a keď sa niečo objaví, informujú vás obratom.















