
Predaj domu 5+1 • 131 m² bez realitkyBahnhofstraße 36, , Bádensko-Wurttembersko
Bahnhofstraße 36, , Bádensko-WurttemberskoMHD 2 minúty pešo • ParkovanieNur len niekoľko sto metrov za vjazdom do časti Oberrottweil obce Vogtsburg sa nachádza pozemok pri tichom bručaní potoka Krottenbach, kde sa teraz realizuje projekt novej výstavby so štyrmi dvojdomami – teda ôsmimi samostatnými obytnými jednotkami.
Dvojdomové polovičky sú ideálne pre mladé rodiny, ktoré túžia po cenovo dostupnom vlastnom bývaní v prestížnej vinárskej obci na krásnom Kaiserstuhle. Ponúkaný „Dom 2“ má pozemok o rozlohe 197,07 m², čo okrem samotnej stavby zabezpečuje dostatok priestoru pre terasu so záhradou, ktorá pozýva k oddychu s rodinou a priateľmi a zároveň ponúka priestor pre detské hry.
Budovy budú postavené v modernej ocelovo-drevenej technológii. To prináša viacero výhod: najprv sa dosiahne udržateľný štandard KfW-40, vďaka čomu kupujúci môžu profitovať z úrokovo zvýhodneného financovania. Okrem toho sa skráti doba výstavby, keďže prefabrikované prvky vyrobené v továrni sa prakticky dopravia nákladným vozidlom a zdvihnú pomocou žeriavu.
Tým sa ušetria náklady, čo sa odrazí v dostupných kupónových cenách. Okrem toho budú stavby oproti bežným dreveným domom bežných prefabrovaných spoločností mimoriadne odolné. Ocelová konštrukcia je masívna. Ak by o niekoľko desaťročí nastala potreba rekonštrukcie, izolácia a jej drevená obložka sa dajú jednoducho odstrániť a nahradiť novými.
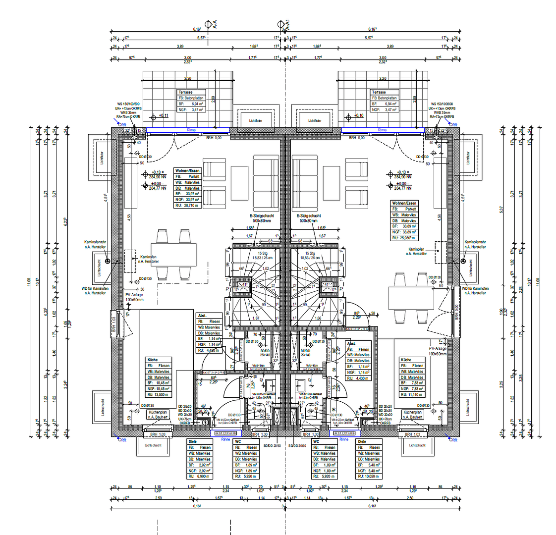
Všetky domy zdieľajú spoločný prístup na dvor. Voliteľné prístrešky pre autá ponúkajú miesto pre dve vozidlá, rovnako aj pre bicykle, a tu je možné uskladniť aj odpadkové koše. Cez širokú predsieň, ktorá zároveň slúži ako šatník, vchádzate do interiéru svojho vlastného domova. Na pravej strane sa hneď nachádza hosťovské WC a úložná miestnosť pre domáce spotrebiče.
Prechodom dverí vstúpite priamo do srdca svojho domova: cez viac ako 31 m² obytného priestoru sa rozprestiera obrovská obývacia a jedálenská časť, ktorá pôsobí príjemne vďaka veľkému množstvu svetla zabezpečenému podlaňovými oknami. Ihneď za rohom sa nachádza otvorená kuchyňa v tvare U, ktorej veľkosť už necháva žiadne ospravedlnenia – tu môže celá rodina prispieť k vareniu.
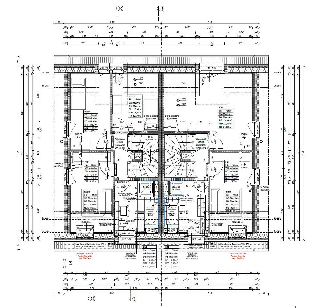
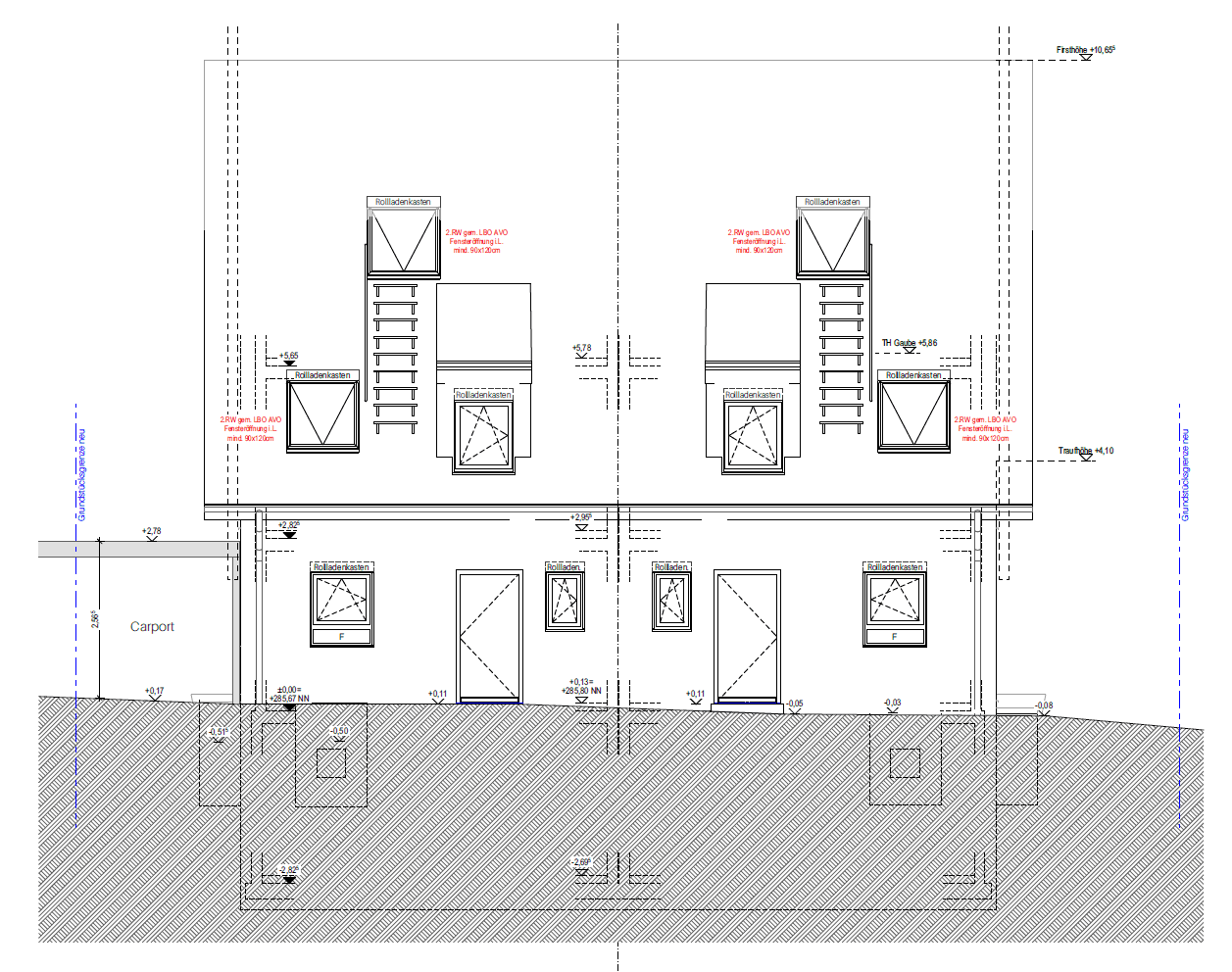
Schodmi sa dostanete do podkrovia, kde nájdete tri podobne veľké spálne (9 m² – 11,5 m²). Priestrannosť zabezpečujú aj nízko postavené strešné okná. Všetky izby sú prístupné zo širokého chodby, pričom využitie – či už pre deti, ako kanceláriu alebo rodičovskú spálňu – je na vás.
Pre rodičovskú spálňu však zrekonštruovaný stropný priestor ponúka ešte jedno prekvapenie. Na tejto úrovni sa navyše nachádza aj kúpeľňa s WC, umývadlom, bezbariérovou sprchou a dokonca aj vaňou, kde si môžete večer oddýchnuť, ak bol deň opäť trošku náročný. Veľké okno zaisťuje dostatočné denné svetlo a možnosti vetrania.
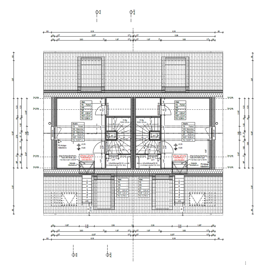
Ďalšími schodmi sa dostanete k už spomínanému zariadenému stropnému priestoru, ktorý ponúka viac ako 15 m² obytného priestoru. Tu môže byť alternatívne zariadená rodičovská spálňa – jej využitie je nakoniec úplne na vás.
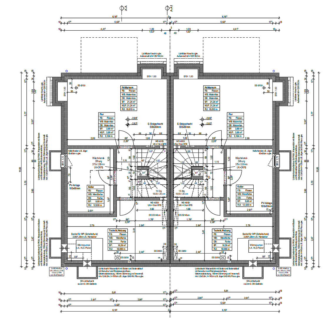
Dôležitá poznámka: Dvojdomová polovička je kompletne zateplená. Okrem vykurovacieho priestoru (tepelné čerpadlo podporené solárnou inštaláciou na streche) tu nájdete pripojenia pre práčku a sušič a samostatnú suterénnu miestnosť, napríklad na záhradné náradie. Ďalšia miestnosť s viac ako 20 m² je vykurovaná a disponuje dostatočným prítokom svetla, a preto sa tiež započítava do obytného priestoru. Je ideálna aj ako hobby miestnosť.
Oberrottweil je mimoriadne obľúbená medzi rodinami, priamo susediaca s centrom obce Vogtsburg. S priamym výhľadom na typické viniče Kaiserstuhle je v okolí množstvo viníc a hostincov s prestížnou gastronómiou.
Priamo v prírode nic nebráni voľnočasovým aktivitám – či už ide o turistiku, cykloturistiku, oddych na ihriskách alebo návštevu miestneho kúpaliska, každý si tu nájde to svoje. Či už ide o hudbu, šport, či kultúrne podujatia, spoločenský život v obci pulzuje.
Okrem toho obec disponuje vynikajúcou infraštruktúrou. Z novostavby je pešo dostupné zdravotnícke centrum, supermarket, banky a aj malá miestna autobusová zastávka.
V obci sú zastúpené ako materské školy, tak aj základné školy, pričom stredné školy sa nachádzajú v prislúchajúcich obciach Kaiserstuhl. Najbližším väčším mestom je Freiburg im Breisgau, vzdialený približne 20 km.
• Udržateľná ocelovo-drevená výstavba v energeticky efektívnom štandarde KfW 40
• Fasáda vybavená izolačným systémom s vápenno-cementovým omietkou
• Podlahové kúrenie vo všetkých priestoroch (vzduch-voda tepelné čerpadlo)
• Veľké plastové okná (trojsklené) s elektrickými hliníkovými rolietami
• Centrálny ventilačný systém vo všetkých miestnostiach
• Moderné bývacie riešenie s otvorenou kuchyňou
• Podlahové krytiny: parket v obývacej a spálňovej zóne a dlaždice 60x60 cm v kúpeľni
• Obklad stien: malířska tkanina v obývacej a spálňovej zóne a dlaždice 60x30 cm v kúpeľni
• Nadčasový dizajn kúpeľne s bezbariérovou sprchou a oknom s denným svetlom
• Sanitárne zariadenia a armatury renomovaných značiek Duravit a Hansgrohe
Parametre nehnuteľnosti
| Vek | Nad 50 rokov |
|---|---|
| Dispozícia | 5+1 |
| Úžitková plocha | 131 m² |
| Celkové poschodia | 3 |
| Stav | Novostavba |
|---|---|
| Číslo inzerátu | 1009959 |
| Plocha pozemku | 198 m² |
| Cena za jednotku | 4 122,14 € / m2 |
Čo táto nehnuteľnosť ponúka?
| Pivnica | |
| MHD 2 minúty pešo |
| Parkovanie | |
| Terasa |
V okolí nehnuteľnosti nájdete
Stále hľadáte to pravé?
Nastavte si strážneho psa. Ponuky vybrané na mieru dostanete súhrnne 1× denne e-mailom. S Premium profilom máte po ruke rovno 5 strážcov a keď sa niečo objaví, informujú vás obratom.



















