
Predaj domu 5+1 • 131 m² bez realitkyBahnhofstraße 36, , Bádensko-Wurttembersko
Bahnhofstraße 36, , Bádensko-WurttemberskoMHD 2 minúty pešo • ParkovanieNur len niekoľko stoviek metrov za vjazdom do časti Oberrottweil obce Vogtsburg sa nachádza pozemok susediaci s pokojne bublajúcim Krottenbachom, na ktorom sa teraz začína nový stavebný projekt so štyrmi dvojdomami, teda ôsmimi samostatnými obytnými jednotkami.
Dvojdomové polovičky sú ideálne pre mladé rodiny, ktoré túžia po dostupnom vlastnom bývaní v renomovanom vinařskom sídle v krásnom Kaiserstuhle. Ponúkaný „Dom 3“ disponuje pozemkom o výmere 199,76 m², čo okrem samotnej stavby poskytuje aj dostatok priestoru pre terasu so záhradou, ktorá láka na oddych s rodinou a priateľmi či na hranie detí.
Budovy budú postavené v modernej železno-drevostavebnej technológii. To prináša hneď viacero výhod: najprv sa dosiahne udržateľný štandard KfW-40, vďaka čomu môžu kupujúci profitovať zo zvýhodnených úverových podmienok pri financovaní. Pridáva sa aj skrátená doba výstavby, keďže prvky vyrobené už v závode sa prakticky dovezia nákladným autom a zostavia pomocou žeriavu.
Tým sa znižujú aj náklady, čo sa odráža v dostupných kúpnych cenách. Na záver si stavby, najmä v porovnaní s klasickými drevenými domami bežných prefabrikovaných dodávateľov, pochvália mimoriadnou dlhovekosťou. Železná konštrukcia je masívna. Ak sa o niekoľko desaťročí raz ukáže potreba rekonštrukcie, izolácia a jej drevená obložka sa dajú jednoducho odstrániť a nahradiť novými materiálmi.
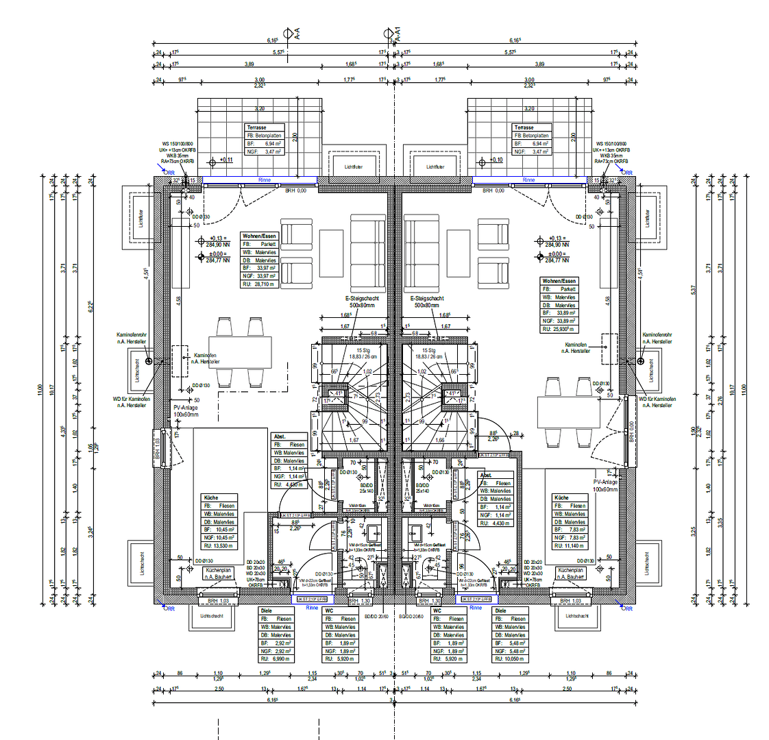
Všetky domy zdieľajú spoločný prístup do dvora. Voliteľné prístrešky pre autá (carporty) ponúkajú miesto pre dve vozidlá, taktiež bicykle, a tu je možné uložiť aj odpadkové kontajnery. Prostredníctvom širokej haly, ktorá zároveň slúži ako predsieň, sa dostanete do vnútra svojich štyroch stien. Ihneď napravo sa nachádza hosťovská toaleta a úložný priestor pre domáce spotrebiče.
Prechodom dverí vstúpite priamo do srdca vášho domova: na viac ako 31 m² obytného priestoru sa rozprestiera obrovský obývací a jedálenský priestor s príjemnou svetlosťou vďaka podlažným oknom. Hneď za rohom je otvorená kuchyňa v tvare U. Vďaka jej rozmerom už nemáte žiadnu výhovorku – tu môže celá rodina súťažiť pri príprave jedla.
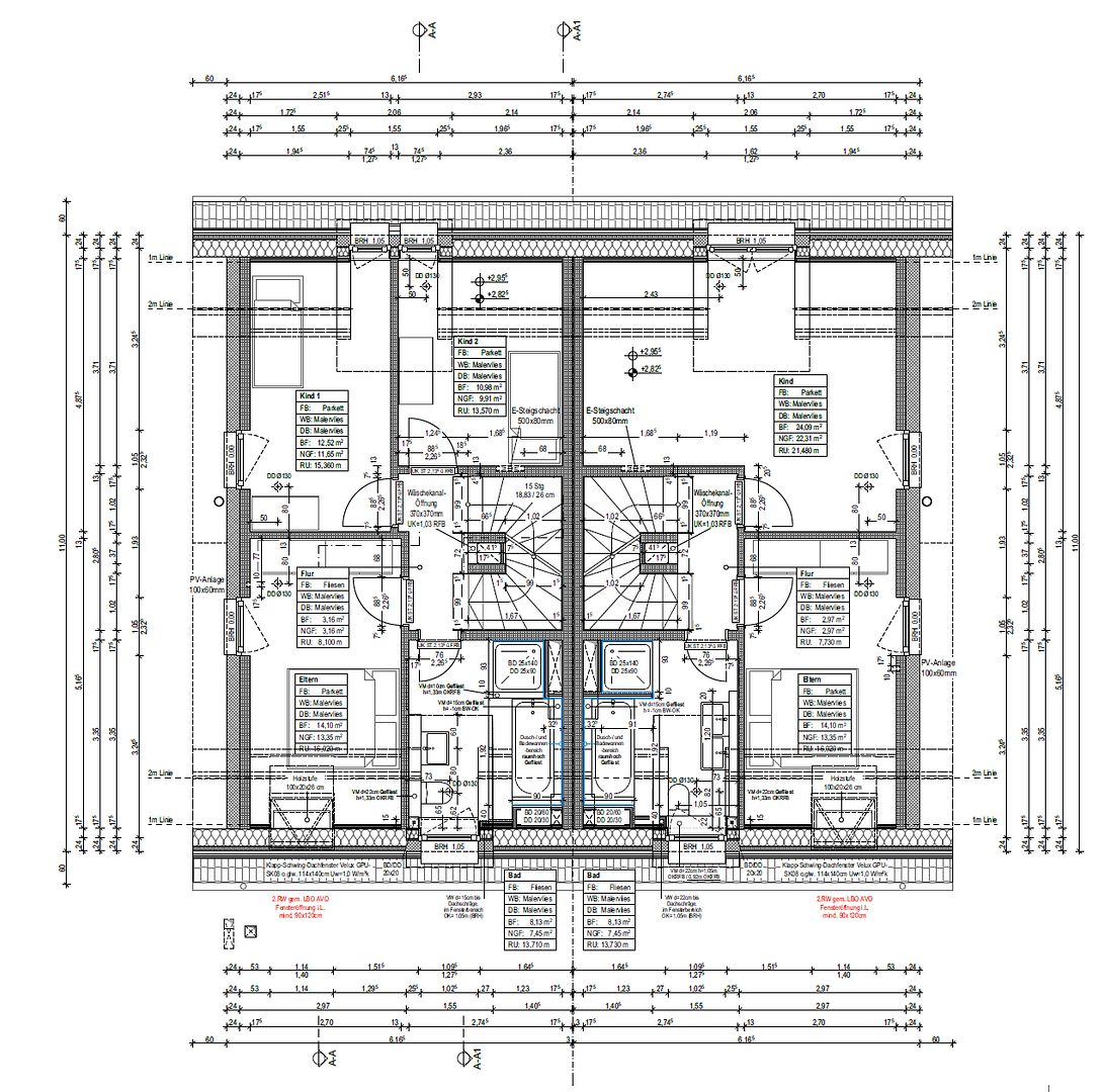
Schodmi sa dostanete na podkrovie, kde nájdete tri podobne veľké spálne (9 m² – 11,5 m²). Veľkorysosť priestoru zaisťuje použitie nízkych strešných okien, tzv. gaub. Všetky izby sú prístupné cez široký chodbu; či už ich deti využijú, ako kanceláriu, alebo si zriadia rodičovskú spálňu, je to úplne na vás.
Pre tých, ktorí sa rozhodnú pre rodičovskú spálňu, však pripravený rozšírený podkrovný priestor skrýva ešte jedno príjemné prekvapenie. Na tej istej úrovni sa navyše nachádza kúpeľňa s WC, umývadlom, bezbariérovou (párkracovou) sprchou a dokonca aj vaňou, kde si po náročnom dni môžete oddýchnuť. Veľké okno zaručuje dostatok denného svetla a možnosti vetrania.
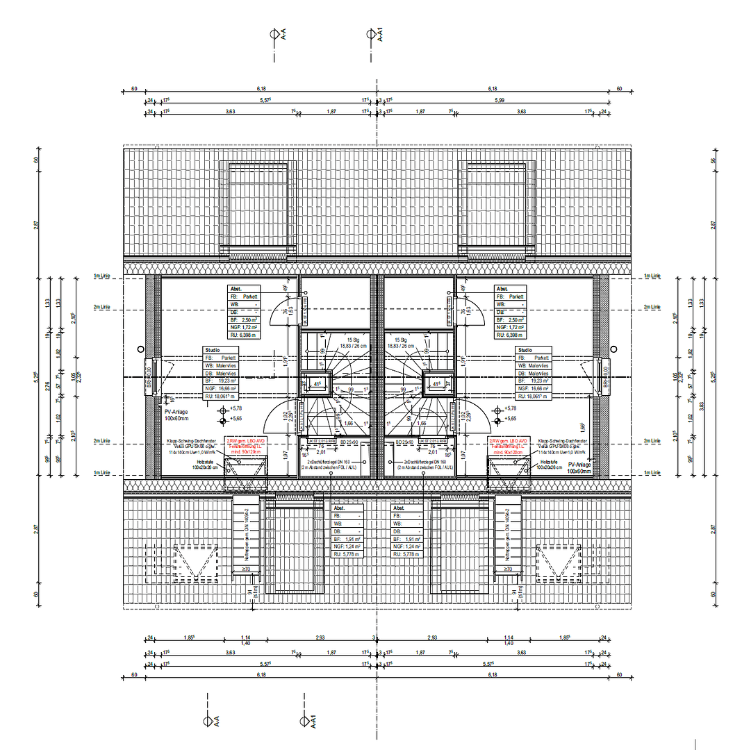
Ďalšími schodmi sa dostanete do už spomínaného zrekonštruovaného strešného priestoru. Na viac ako 15 m² obytného priestoru je možné alternatívne zariadiť rodičovskú spálňu – konečné využitie je úplne na vás.
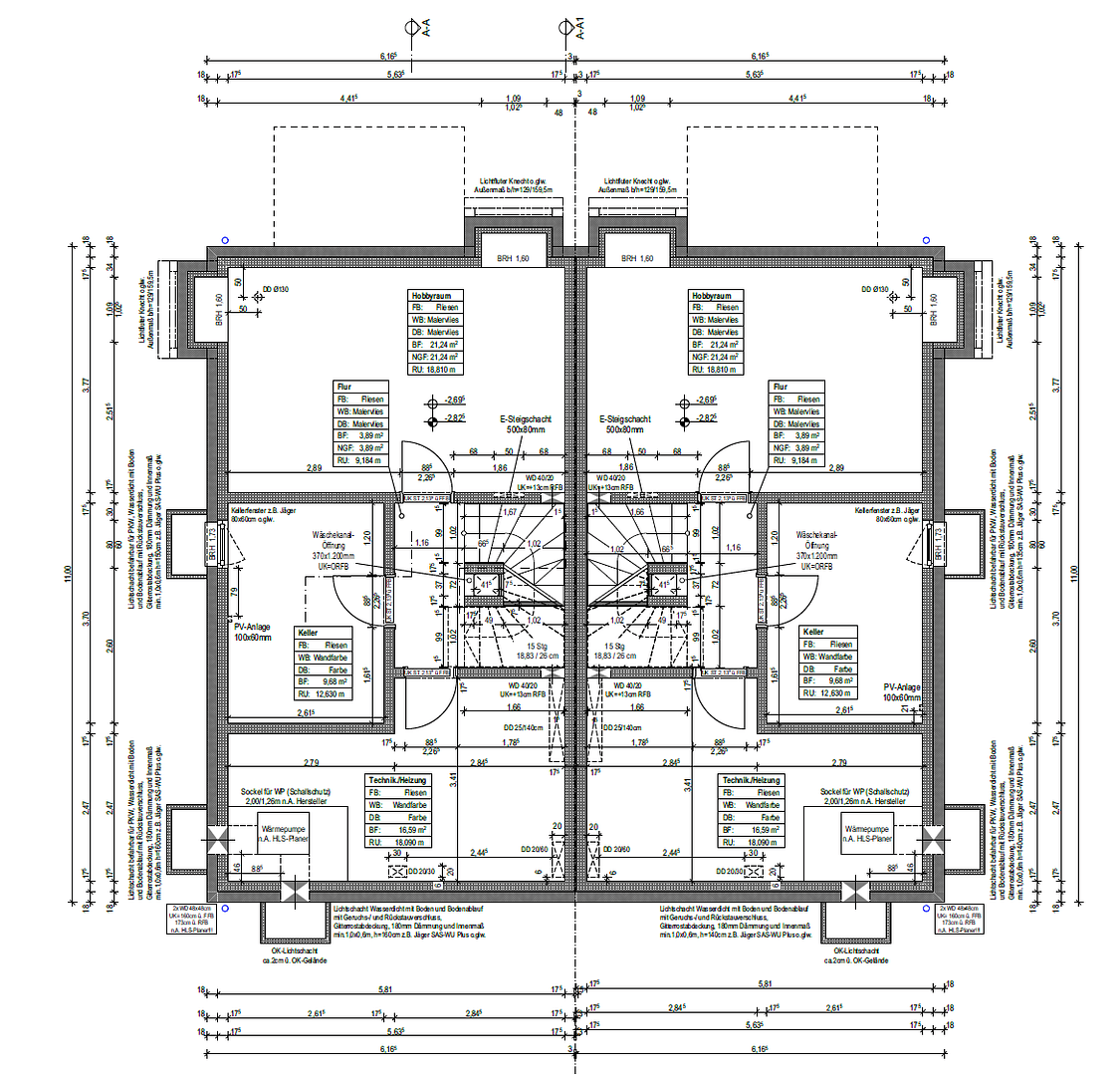
Záverečná poznámka: Polovička dvojdomu je kompletne podzemná. Okrem kotolovne (s tepelným čerpadlom podporeným fotovoltaickou inštaláciou na streche) tu nájdete aj prípojky pre práčku a sušičku, ako aj samostatnú pivnicu, napríklad pre záhradné náradie. Ďalšia miestnosť s viac ako 20 m² je vykurovaná a disponuje dostatkom svetla, a preto sa započítava aj do obytného priestoru. Je ideálna ako hobby miestnosť.
Oberrottweil je obzvlášť obľúbená lokalita najmä medzi rodinami, nachádzajúca sa priamo pri centre obce Vogtsburg. S priamym výhľadom na typické viniče Kaiserstuhlu sú v okolí početné vinice a hostince s prestížnymi reštauráciami.
Priamo uprostred prírody voľnočasové aktivity nenechávajú nič na želanie. Či už ide o túry, cyklovýlety, oddych na ihriskách alebo v miestnom bazéne, každý si tu nájde to svoje. Či už hudba, šport alebo spoločenské aktivity, tu rozkvitá život združení.
Okrem toho obec môže pochváliť aj výbornú infraštruktúru. Z oblasti nového projektu je pešo dostupné nielen zdravotnícke centrum, ale aj supermarket, banky a malá miestna autobusová zastávka.
V obci sú prevádzkované aj materské škôlky a základné školy, zatiaľ čo stredné školy sa nachádzajú v prilehlých obciach Kaiserstuhlu. Najbližšie veľkomesto je Freiburg im Breisgau, vzdialený približne 20 km.
• Udržateľná železno-drevostavebná technológia v energeticky efektívnom štandarde KfW 40
• Fasáda vybavená tepelnou izoláciou pomocou vápenecementovej omietky
• Podlahové kúrenie vo všetkých miestnostiach (s využitím vzduch-voda tepelných čerpadiel)
• Veľké plastové okná (trojsklo) s elektrickými hliníkovými žalúziami
• Centrálny ventilačný systém vo všetkých miestnostiach
• Moderné bývanie s otvorenou kuchyňou
• Podlahová krytina: parketová podlaha v obývacej a spálňovej zóne a dlaždice 60x60 cm v kúpeľni
• Obklad stien: malírske vlnené obklady v obývacej a spálňovej zóne a dlaždice 60x30 cm v kúpeľni
• Nadčasový dizajn kúpeľne s bezbariérovou sprchou a oknom s denným svetlom
• Sanitárne zariadenia a armatury renomovaných firiem Duravit a Hansgrohe
Parametre nehnuteľnosti
| Vek | Nad 50 rokov |
|---|---|
| Dispozícia | 5+1 |
| Úžitková plocha | 131 m² |
| Celkové poschodia | 3 |
| Stav | Novostavba |
|---|---|
| Číslo inzerátu | 1009958 |
| Plocha pozemku | 200 m² |
| Cena za jednotku | 4 122,14 € / m2 |
Čo táto nehnuteľnosť ponúka?
| Pivnica | |
| MHD 2 minúty pešo |
| Parkovanie | |
| Terasa |
V okolí nehnuteľnosti nájdete
Stále hľadáte to pravé?
Nastavte si strážneho psa. Ponuky vybrané na mieru dostanete súhrnne 1× denne e-mailom. S Premium profilom máte po ruke rovno 5 strážcov a keď sa niečo objaví, informujú vás obratom.



















