
Predaj domu 5+1 • 131 m² bez realitkyBahnhofstraße 36, , Bádensko-Wurttembersko
Bahnhofstraße 36, , Bádensko-WurttemberskoMHD 2 minúty pešo • ParkovanieLen pár stoviek metrov za vjazdom do časti Oberrottweil obce Vogtsburg sa nachádza pozemok pri jemne zurčiacom Krottenbachu, na ktorom sa bude realizovať tento novostavbový projekt so štyrmi dvojdomami, teda ôsmimi oddelenými obytnými jednotkami.
Polovičky dvojdomov sú ideálne pre mladé rodiny, ktoré túžia po cenovo dostupnom vlastnom dome v renomovanej vinárskej obci na krásnom Kaiserstuhle. Ponúkaný „Dom 4“ má rozlohu pozemku 202,44 m² a poskytuje okrem samotnej stavby aj dostatok priestoru pre terasu so záhradou, čo vyzýva na oddych s rodinou a priateľmi a zároveň ponúka priestor na hry pre deti.
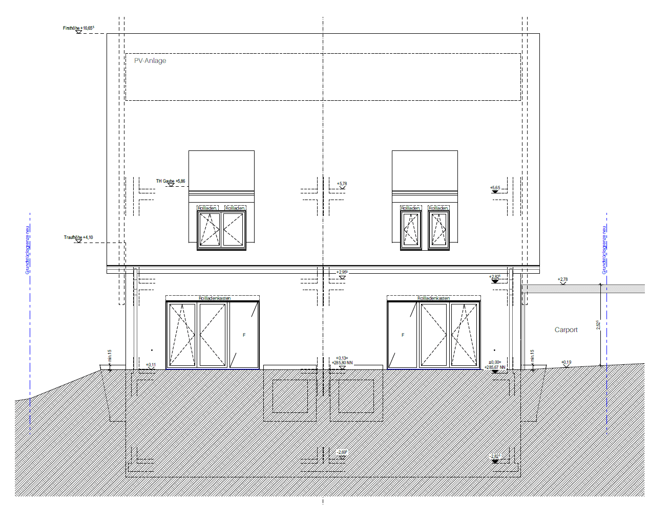
Budovy budú postavené v modernej oceľovo-drevenej konštrukcii. To prináša viacero výhod: najprv je dosiahnutý udržateľný štandard KfW-40, vďaka čomu kupujúci profitujú z úrokovo zvýhodneného financovania. Okrem toho je dosiahnutá aj skrátená doba výstavby, pretože prvky vyrobené v továrni sa prakticky dovezu kamiónom a zostavia pomocou žeriavu.
To šetrí náklady, čo sa odráža v prijateľných kúpnych cenách. Napokon, samotné stavby budú oproti klasickým dreveným domom bežných prefabrikovaných dodávateľov vyznačovať mimoriadnu životnosť. Oceľová konštrukcia je masívna. Ak by za desaťročia prišla potreba rekonštrukcie, izoláciu a jej drevené obloženie je možné jednoducho odstrániť a nahradiť novými materiálmi.
Všetky domy majú spoločný vjazd do dvora. Voliteľné garáže ponúkajú priestor pre dve vozidlá, tiež pre bicykle, a sem možno umiestniť aj odpadové kontajnery. Prostredníctvom širokej haly, ktorá zároveň slúži ako šatník, vstúpite do vnútra vlastných štyroch stien. Po pravej strane sa hneď nachádza hosťovská toaleta a úložná miestnosť pre domácich spotrebičov.
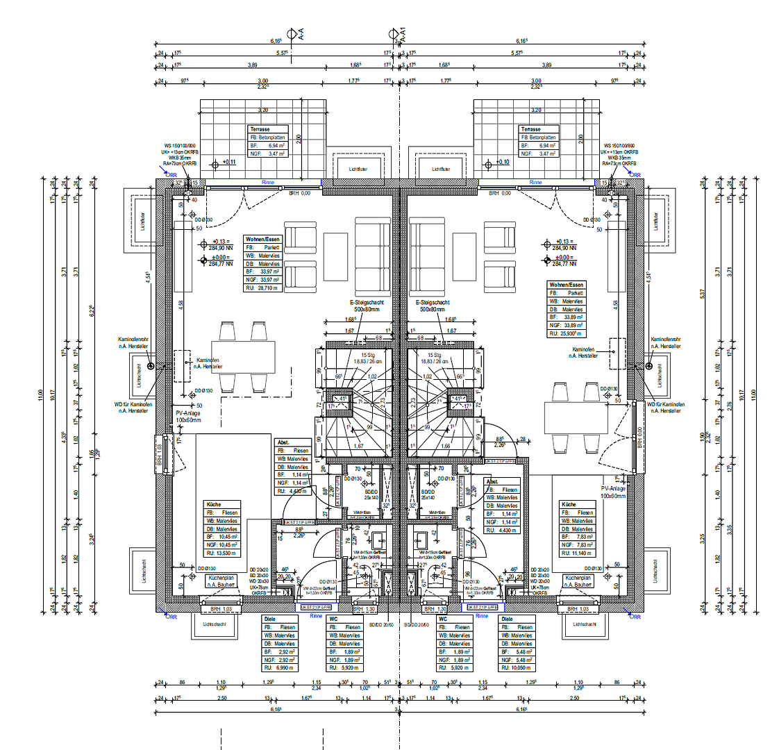
Prechodom dverami vstúpite priamo do srdca svojho domova: na viac ako 31 m² obytného priestoru sa rozprestiera obrovská obývacia a jedálenská časť s útulnou svetelnosťou vďaka posuvnej oknovej fasáde od podlahy až po strop. Ihneď za rohom je otvorená kuchyňa v tvare U. Vďaka jej veľkosti už nebudú žiadne výhovorky – tu sa môže celá rodina zapojiť do varenia.
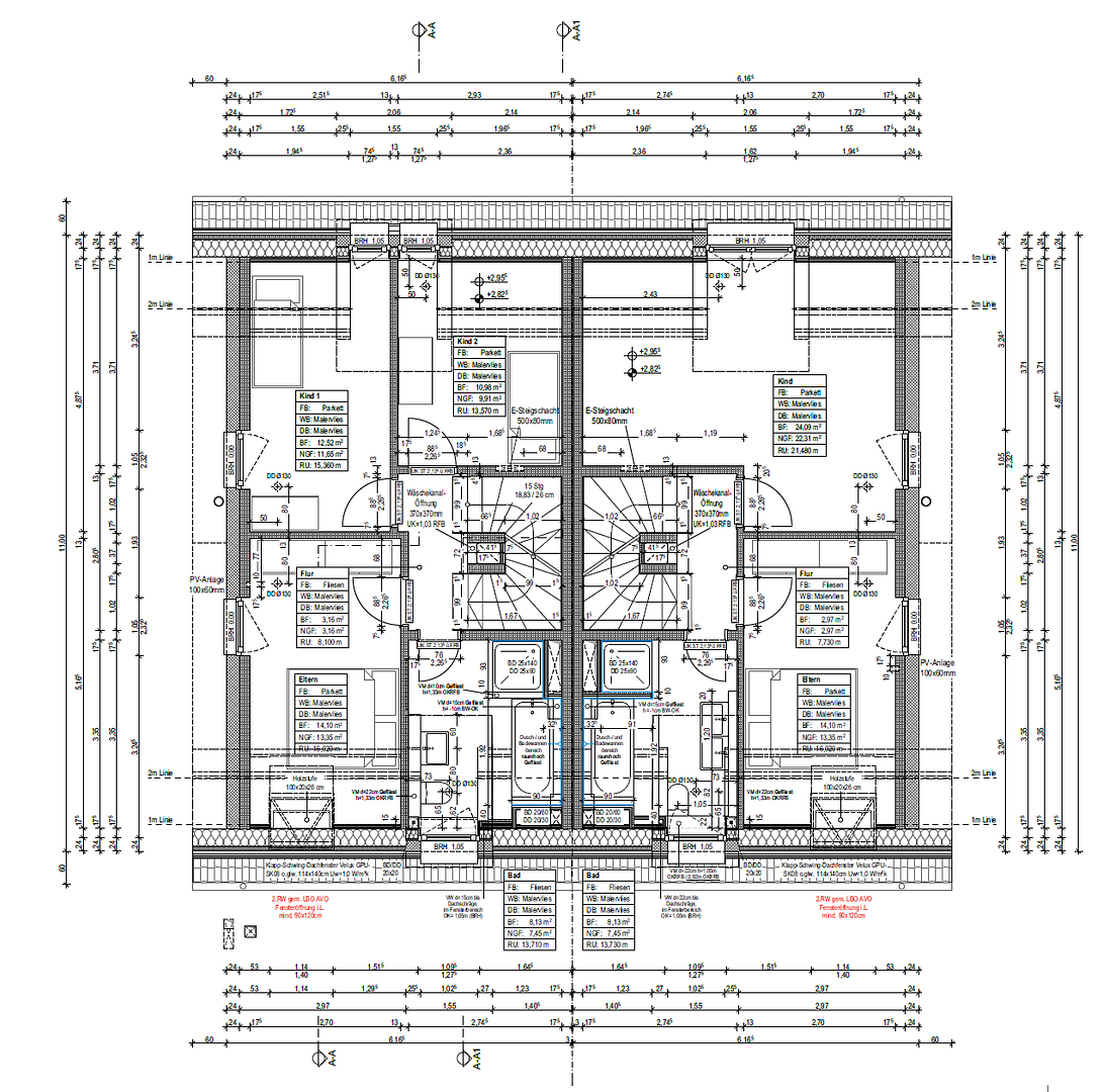
Prostredníctvom schodiska sa dostanete do podkrovia. Tam nájdete tri podobne veľké spálne (9 m² – 11,5 m²). Priestrannosť je zabezpečená použitím nízkych strešných okien (gauby), vďaka čomu každá izba je prístupná cez široký chodbu – či už budú slúžiť deťom, ako kancelária alebo rodičovská spálňa, rozhodnutie je na vás.
Pre rodičovskú spálňu však rozšírený strešný priestor pripravuje ešte jedno prekvapenie. Na tejto úrovni sa nachádza aj kúpeľňa s toaletou, umývadlom, bezbariérovou sprchou a dokonca aj vaňou, kde si večer môžete oddýchnuť, ak bol deň opäť stresový. Veľké okno zabezpečuje dostatok denného svetla a možnosti vetrania.
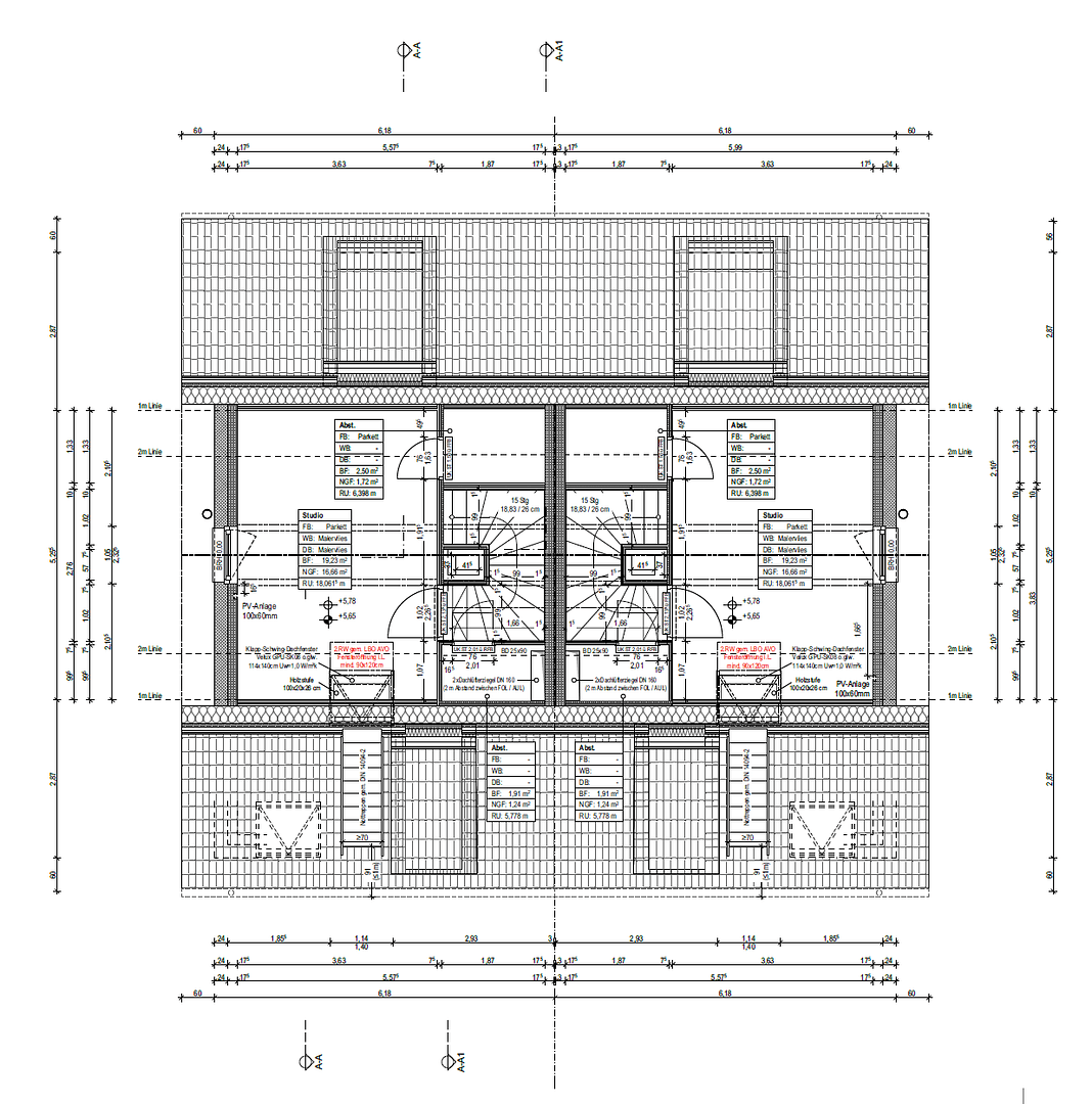
Ďalším schodiskom sa dostanete do už spomínaného zrekonštruovaného strešného priestoru. Na viac ako 15 m² obytného priestoru sa dá alternatívne zariadiť rodičovská spálňa – využitie je nakoniec úplne na vás.
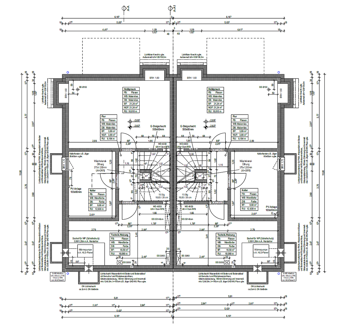
Záverom dôležitá informácia: Polovička dvojdomu je kompletne s podzemím. Okrem vykurovacej miestnosti (tepelné čerpadlo podporené fotovoltaickou inštaláciou na streche) sa tu nachádzajú pripojenia pre práčku a sušičku, ako aj samostatná pivnica, napríklad pre záhradné náradie. Ďalšia miestnosť s viac ako 20 m² je vykurovaná a disponuje dostatočným množstvom svetla, a preto sa počíta aj ako obytná plocha. Je ideálna ako hobby izba.
Oberrottweil je obzvlášť obľúbená štvrť medzi rodinami, priamo susediaca so centrom obce Vogtsburg. S priamym výhľadom na pre Kaiserstuhl typické vinice, nájdete v okolí množstvo vinárstiev a hostincov s renomovanou gastronomiou.
Priamo v prírode, možnosti pre voľnočasové aktivity nenechávajú nič pre záchvat – či už ide o turistiku alebo cykloturistiku, oddych na ihriskách alebo v miestnom bazéne, pre každého je tu niečo. Či už hudba, šport, alebo spoločenský život, klubové a združovateľské aktivity tu voňujú.
Obec navyše disponuje vynikajúcou infraštruktúrou. Z novostavby je pešo dostupné aj lekárske centrum, supermarket, banky, ako aj malá miestna autobusová zastávka.
V obci nájdete materskú aj základnú školu, ďalšie školy potom v prilehlých obciach Kaiserstuhl. Najbližšie väčšie mesto je Freiburg im Breisgau, vzdialený približne 20 km.
• Udržateľná oceľovo-drevená výstavba v energeticky efektívnom štandarde KfW 40
• Fasáda opatrená systémom tepelnej izolácie s vápno-cementovou omietkou
• Podlahové vykurovanie vo všetkých miestnostiach (vzduch-voda s tepelným čerpadlom)
• Veľké plastové okná (trojitá zateplenie) s elektrickými hliníkovými žalúziami
• Centrálna ventilácia vo všetkých miestnostiach
• Moderný obytný koncept s otvorenou kuchyňou
• Podlahové krytiny: parketová podlaha v obývacej a spálňovej časti a dlaždice 60x60 cm v kúpeľni
• Steny: malířske vliesové obklady v obývacej a spálňovej časti a dlaždice 60x30 cm v kúpeľni
• Nadčasový dizajn kúpeľne s bezbariérovou sprchou a oknom pre denné svetlo
• Sanita / batérie od renomovaných značiek Duravit a Hansgrohe
Parametre nehnuteľnosti
| Vek | Nad 50 rokov |
|---|---|
| Dispozícia | 5+1 |
| Úžitková plocha | 131 m² |
| Celkové poschodia | 3 |
| Stav | Novostavba |
|---|---|
| Číslo inzerátu | 1009957 |
| Plocha pozemku | 203 m² |
| Cena za jednotku | 4 160,31 € / m2 |
Čo táto nehnuteľnosť ponúka?
| Pivnica | |
| MHD 2 minúty pešo |
| Parkovanie | |
| Terasa |
V okolí nehnuteľnosti nájdete
Stále hľadáte to pravé?
Nastavte si strážneho psa. Ponuky vybrané na mieru dostanete súhrnne 1× denne e-mailom. S Premium profilom máte po ruke rovno 5 strážcov a keď sa niečo objaví, informujú vás obratom.



















