
Predaj domu 5+kk • 150 m² bez realitkyEnkenbacher Weg 106 Berlin Müggelheim Berlin 12559
Enkenbacher Weg 106 Berlin Müggelheim Berlin 12559MHD 4 minúty autom • ParkovanieBytie v zelene a napriek tomu v Berlíne:
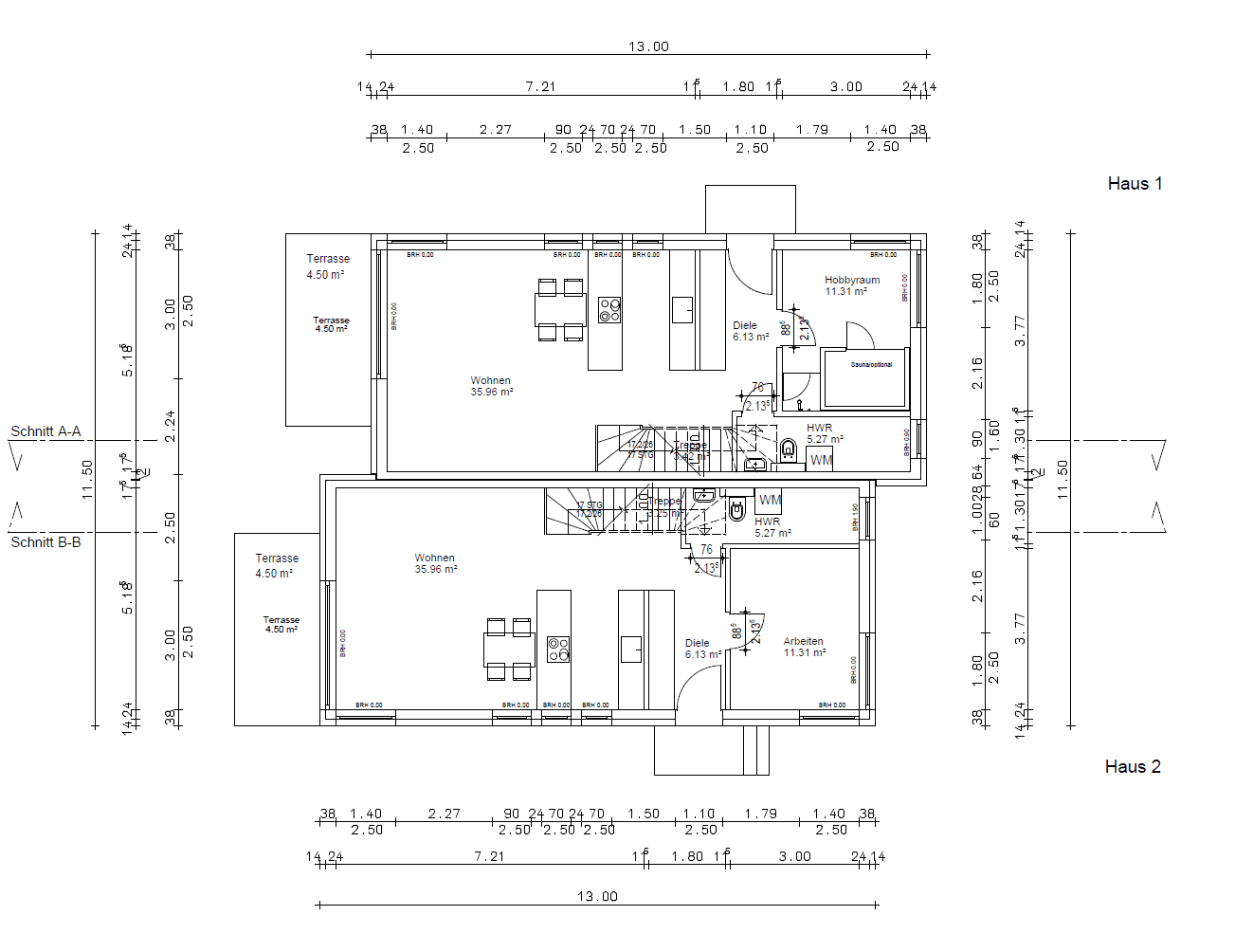
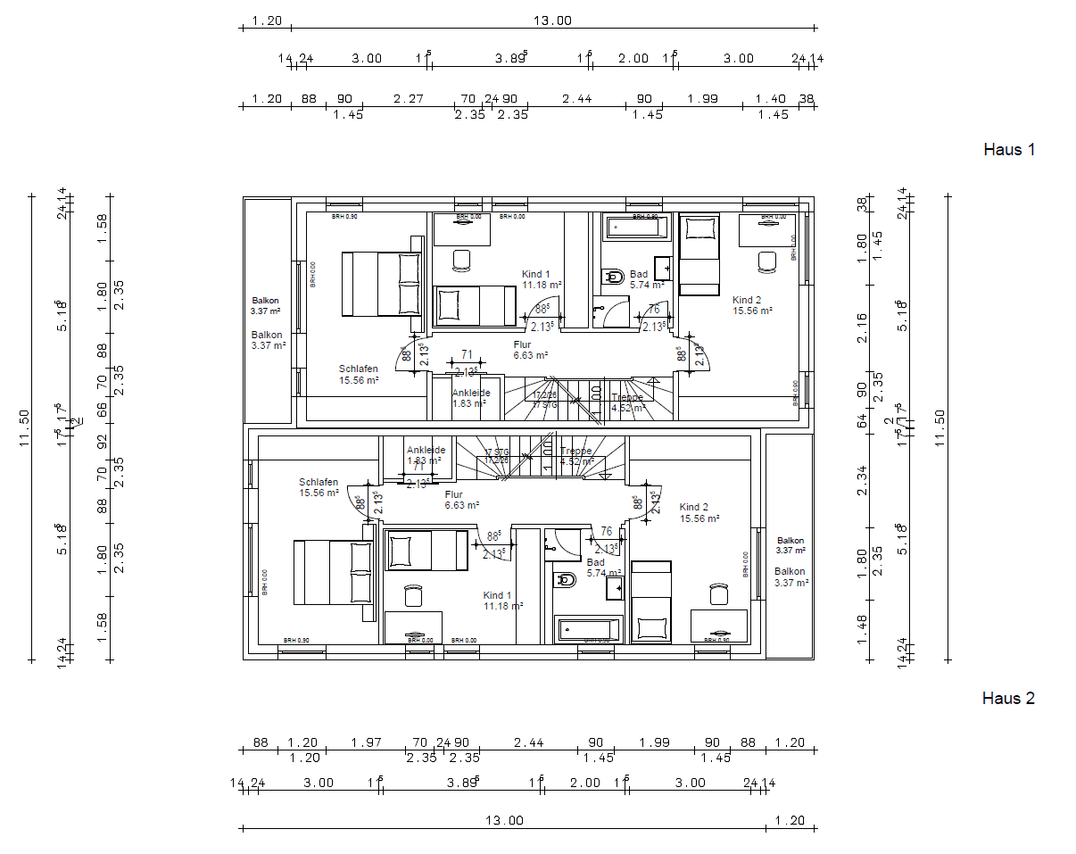
Táto dvojdomovka s obytnou plochou 150 m² rozložená na troch úrovniach sa nachádza v idylickej časti Berlína – Berlin-Müggelheim, obklopená jazerami a lesmi. Dom spája prírodu, komfort a energetickú efektívnosť (A+) – a je okamžite k nastěhovaniu. Predaj prebieha priamo od developera – bez provízie.
Dispozícia a komfort
• 4 spálne, priestranný obývací priestor s prístupom na terasu a do záhrady
• 2 kúpeľne: toaleta pre hostí (v prízemí) a rodinná kúpeľňa so sprchou (v poschodí)
• Strešná terasa s približne 50 m² – ideálna pre relax, grilovanie alebo mestskú záhradu
• Ďalšia záhradná terasa (v prízemí) priamo z kuchyne s jedlom
• Podlahové kúrenie s individuálnou reguláciou pre jednotlivé miestnosti, tepelné čerpadlo, kvalitné tepelnorozlúčavé zasklenie
• Elektrické rolety, moderná domáca technika, energetická trieda A+
• Vynikajúca zvuková izolácia
Pozemok a vybavenie
• Pozemok približne 394 m² so zelenou plochou a oddychovou zónou
• Dve parkovacie miesta, príprava pre wallbox
• Domácnosťna miestnosť s technikou a práčovňou
• Pripojenia pre záhradné zavlažovanie a elektrinu v exteriéri
• Príprava na video dverový interkom s diaľkovým otváraním, elektrický pohon brány, záhradné osvetlenie a markízy
K nastěhovaniu
Dom je kompletne odovzdaný s kvalitným vnútorným zariadením a je okamžite k nastěhovaniu – bez dodatočných prác či stavebných zásahov.
Adresa: Enkenbacher Weg 106, 12559 Berlin-Müggelheim
Pokojná obytná lokalita medzi Veľkým a Malým Müggelsee
Približne 1,9 km od pláže pri Malom Müggelsee
Zastávka autobusu cca 150 m, dobré spojenie so stanicou S-Bahn Köpenick
Dopravná a občianska infraštruktúra: základná škola, niekoľko materských škôl, supermarket, lekáreň a kaviarne v blízkosti
Výborná dopravná dostupnosť: len 15 minút do Tesla Gigafactory Grünheide a na diaľnicu A10.
Parametre nehnuteľnosti
| Vek | Nad 50 rokov |
|---|---|
| Dispozícia | 5+kk |
| PENB | A - Mimoriadne úsporné |
| Plocha pozemku | 394 m² |
| Cena za jednotku | 4 433,33 € / m2 |
| Dostupné od | 10. 4. 2026 |
|---|---|
| Číslo inzerátu | 1009000 |
| Úžitková plocha | 150 m² |
| Celkové poschodia | 2 |
Čo táto nehnuteľnosť ponúka?
| Balkón | |
| MHD 4 minúty autom |
| Parkovanie | |
| Terasa |
V okolí nehnuteľnosti nájdete
Stále hľadáte to pravé?
Nastavte si strážneho psa. Ponuky vybrané na mieru dostanete súhrnne 1× denne e-mailom. S Premium profilom máte po ruke rovno 5 strážcov a keď sa niečo objaví, informujú vás obratom.











