
Predaj bytu 3+1 • 75 m² bez realitkySchönbornring 7, , Hesensko
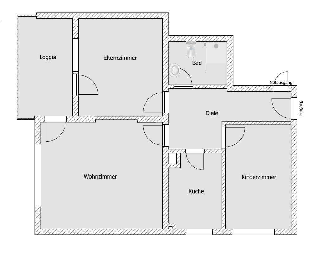
Táto kompletne zrekonštruovaná 3-izbová bytosť spája moderný komfort bývania s krásnym výhľadom. Veľké moderné okná z roku 2012 a príjemná výška stropov zabezpečujú vo všetkých miestnostiach svetlú, priateľskú atmosféru. Dispozícia bytu je optimálne navrhnutá a všetky izby sú pohodlne prístupné z chodby.
Slnečný západný balkón, prístupný z obývačky a jednej spálne, pozýva na oddych. Pri peknom počasí sa odtiaľto dokonca dá v diaľke obdivovať frankfurtské panorámy pri západe slnka. Moderná kúpeľňa zaujme béžovými dlaždicami a prístupnou sprchou so šampónovým priestorom. K bytu patrí aj vysoko kvalitná vstavaná kuchyňa a ľahko dostupné vonkajšie parkovacie miesto pred domom, čím je ponuka kompletná. Byt je teda okamžite nasťahovateľný a bol naposledy v roku 2022 rozsiahlo zrekonštruovaný a renovovaný. Pri tom boli okrem iného obnovené všetky elektroinštalácie, ako aj kúpeľňa vrátane nových rozvodov.
Byt je neobývaný a preto okamžite pripravený na nasťahovanie.
Vitajte v Neu-Isenburgu! Táto lokalita ponúka ideálne podmienky pre vlastné bývanie, najmä pre rodiny, ktoré si cenia bezpečné prostredie, krátke trasy a silnú sociálnu infraštruktúru.
Dopravné spojenie verejnou dopravou je komfortné. Najbližšia autobusová zastávka je dosiahnuteľná pešo za pár minút a ponúka spoje smerom do centra mesta aj na stanicu S-Bahn, z ktorej je Frankfurt-Süd dosiahnuteľný približne za 12 minút. Autom sa dostanete do frankfurtského centra približne za 20 minút a na letisko za necelých 10 minút, čo robí lokalitu atraktívnou aj pre dochádzajúcich do práce.
Pre rodiny je obzvlášť dôležité, že v bezprostrednom okolí sa nachádza viacero materských škôl vrátane verejných aj súkromných zariadení, ktoré sú dostupné pešo za niekoľko minút. Základné školy a stredné školy, ako gymnáziá a komplexné školy, sú tiež v tesnej blízkosti a dá sa k nim dostať pešo alebo na bicykli, čím vzniká krátka a bezpečná trasa pre deti a mládež.
Nakupovacie možnosti sú vynikajúce. Najbližšie predajne REWE a Lidl sú vzdialené len pár minút, čo zabezpečuje rýchle zásobenie denných potrieb. Ponuku dopĺňajú aj pekárne, lekárne a malé špecializované obchody v centre Neu-Isenburgu.
Na voľnočasové vyžitie ponúka okolie nespočetné možnosti. Nedaleko sa nachádza mestský les, ktorý láka na prechádzky, cyklistiku a oddych v prírode. Rodiny tiež využívajú ihriská, športové kluby, lesný bazén a kultúrne zariadenia ako „Hugenottenhaus“.
Celkovo lokalita ponúka vyváženú kombináciu pokojného bývania, veľmi dobrej infraštruktúry, priateľského prostredia pre deti a optimálneho dopravného spojenia – ideálna voľba pre rodiny aj pre tých, ktorí hľadajú pohodlný domov.
- kompletne zrekonštruovaný moderný byt
- západný balkón s výhľadom na panorámu
- voliteľné parkovacie miesto pre auto
- obsahuje vstavanú kuchyňu
Parametre nehnuteľnosti
| Vek | Nad 50 rokov |
|---|---|
| Stav | Po rekonštrukcii |
| Číslo inzerátu | 1007272 |
| Úžitková plocha | 75 m² |
| Dostupné od | 1. 4. 2026 |
|---|---|
| Dispozícia | 3+1 |
| PENB | E - Nehospodárne |
| Cena za jednotku | 3 293 € / m2 |
Čo táto nehnuteľnosť ponúka?
| Balkón | |
| Výťah |
| Pivnica | |
| MHD 3 minúty pešo |
V okolí nehnuteľnosti nájdete

Predaj bytuBartningstr. 10 Darmstadt-Kranichstein Kranichstein Hessen 64289- 4+1
- 88 m²
289 000 € + 731 €


Predaj bytuHeinrich-Heine-Straße 27 Offenbach Offenbach am Main Hessen 63071- 3+1
- 78 m²
279 000 € + 374 €
Stále hľadáte to pravé?
Nastavte si strážneho psa. Ponuky vybrané na mieru dostanete súhrnne 1× denne e-mailom. S Premium profilom máte po ruke rovno 5 strážcov a keď sa niečo objaví, informujú vás obratom.












