
Predaj domu 4+1 • 154 m² bez realitkyBerlin Kaulsdorf Berlin 12621
Berlin Kaulsdorf Berlin 12621MHD 1 minúta pešo • ParkovanieTento exkluzívny mestský dom spája moderné bývanie, vysoko kvalitnú výstavbu a rodinne prívetivé usporiadanie – ideálny pre veľkú rodinu, ktorá kladie dôraz na komfort, pokoj a kvalitu.
Rodinný dom sa nachádza v berlínskom Kaulsdorfe a ponúka tak vysokú mieru súkromia. Dom bol postavený z kvalitného masívneho materiálu podľa nadštandardných parametrov a bude dokončený koncom roka 2025.
Kľúčové údaje na prvý pohľad
Pozemok: cca 430 m²
Obývateľná plocha: cca 154 m²
Býtná plocha: cca 135 m²
Užitná plocha: cca 19 m²
Izby: 4
Kúpeľne 2: hlavná kúpeľňa so sprchou a vaňou + hostinská toaleta so sprchou
Poschodia: prízemie, nadzemie a podkrovie
Vysokokvalitné vybavenie
• Trojnásobne zasklené okná
• Elektrické rolety
• Podlahové kúrenie v celom dome
• Kvalitný laminát a moderné dlaždice
• Veľké panoramatické okná pre priesvitné, svetlom naplnené miestnosti
• Priestranná rodinná kúpeľňa so sprchou a vaňou
• Hostinská toaleta so sprchou a oknom
• Moderná domáca technika
• Vlastná záhrada s terasou
Rodinný dom sa nachádza v tichej ulici pri Chemnitzer Straße, v príjemnej druhej rade – poloha, ktorá ideálne spája pokoj, súkromie a mestskú blízkosť. Vďaka absencii priameho cestného premávky si tu môžete vychutnať uvoľnené a rodinne prívetivé prostredie. Okolie je charakterizované množstvom zelene, ustálenými obytnými štruktúrami a atmosférou blízkou prírode.
Jazero Kaulsdorf sa nachádza v bezprostrednej blízkosti a pozýva na prechádzky, športové aktivity a relaxačné chvíle na čerstvom vzduchu. Zároveň ťažíte z výhodnej dopravnej dostupnosti a veľmi dobrej infraštruktúry, vrátane škôl, materských škôl, obchodných priestorov a verejnej dopravy v okolí.
Táto poloha ideálne spája bývanie v prírode s výhodami mestského života – dokonalé útočisko pre rodiny a všetkých, ktorí si cenia pokoj a kvalitu života.
Okolie je charakterizované upravenou obytnou zónou s jednopodlažnými a dvojrodinnými domami. Materské školy, základné školy, obchody pre každodenné potreby, ako aj lekári a lekárne sú dostupné veľmi rýchlo. Tiež možnosti oddychu a rekreácie sú v blízkosti a ponúkajú priestor na prechádzky, športové aktivity či rodinné výlety.
Vďaka dobrej dopravnej prípojnosti sa rýchlo a pohodlne dostanete do centra mesta, do okolitých štvrtí aj na okolie. Verejná doprava a dôležité dopravné tepny sú dobre prepojené, bez zásahu do pokojnej kvality bývania.
Táto lokalita je ideálna pre rodiny, ktoré ocenia pokojné bývanie v zeleni, no nechcú sa vzdať výhod mestskej infraštruktúry.
Autobusové spojenia:
V pešej vzdialenosti sa nachádza niekoľko autobusových zastávok, napríklad „Gerdastraße“ a „Erich-Baron-Weg“, ktoré obsluhujú rôzne linky ako 108, 169 a 269. Tieto autobusy spoľahlivo spájajú štvrť s okolitými mestskými časťami a poskytujú možnosti prestupu na S-Bahn, metro alebo iné autobusové linky.
Metro:
Najbližšia stanica metra je „Elsterwerdaer Platz“ (linka U5), ktorú je možné dosiahnuť za krátku dobu. Linkou U5 sa pohodlne a priamo dostanete do centra mesta (napríklad na Alexanderplatz) a na mnohé ďalšie zastávky.
Verejná doprava & doby cestovania
Metro – linka U5 – Elsterwerdaer Platz
Len niekoľko minút od domu sa nachádza pripojenie na linku U5, napríklad na staniciach „Elsterwerdaer Platz“ alebo „Kaulsdorf-Nord“. Linka U5 spája východný okraj mesta priamo s berlínskym centrom a ďalej až k hlavnému nádražiu.
Typické časy cestovania zo staníc U5 (Elsterwerdaer Platz / Kaulsdorf-Nord):
• Alexanderplatz: cca 27 minút linkou U5 bez prestupu.
• Berlín hlavná stanica: cca 35 minút z koncovej zastávky U5 do centra.
Linka počas dňa jazdí pravidelne, často každých 5–10 minút, a operuje od skorých ranných hodín až do neskorých nočných hodín.
Autobusové spojenia:
V okolí vstupu do metra obsluhuje viacero autobusových liniek – napríklad 191, 197, 269, 291, ako aj ďalšie linky a nočné autobusy (napr. N5, N91) – ktoré skvele dopĺňajú metro a priamo alebo s pohodlným prestupom spájajú ďalšie mestské časti.
Ďalšie spojenia:
V pešej vzdialenosti sú aj ďalšie zastávky autobusovej siete, ktoré umožňujú dobré spojenie s ďalšími stanicami S-Bahn (stanica S-Bahn: Kaulsdorf alebo Wuhletal) – ideálne pre rodiny a dochádzajúcich.
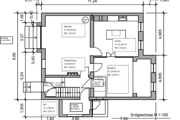
Prízemie – bývanie so štýlom
V prízemí vás privíta priestranná hala s elegantnými drevenými dizajnovými schodmi. Svetlý a otvorený obývací a jedálenský priestor s priestrannou kuchynskou zónou ponúka dostatok miesta pre vašu individuálnu vysnívanú kuchyňu a vedie priamo na terasu a do záhrady – ideálne pre rodinný život a spoločenské večery.
Táto úroveň je doplnená o hostinskú toaletu so sprchou a oknom a technicko-domácnosťovú miestnosť.
Nadzemie – útočisko pre rodinu
V nadzemí na vás čakajú tri dobre usporiadané spálne a moderná, mimoriadne priestranná kúpeľňa s dvoma oknami, sprchou a vaňou – pravá oáza pohody pre celú rodinu.
Praktické podkrovie – dodatočný úložný priestor
Ďalšou výhodou tohto domu je podkrovie, ktoré možno pohodlne využiť ako úložný priestor. Či už ide o sezónne veci, kufre alebo vybavenie pre hobby a šport, tu nájdu miesto všetky veci, ktoré nepotrebujete denne. Tým ostáva obytný priestor uprataný a optimálne využiteľný.
Prvý vklad do tohto novostaveného rodinného domu je niečo výnimočné: Všetko je nové, nedotknuté a čaká na to, aby bolo naplnené životom. Vôňa nových materiálov, priesvitné miestnosti a moderná architektúra vytvárajú od prvého okamihu pocit príchodu a domova.
Tu napíšete svoj vlastný príbeh, upravíte každý priestor podľa svojich predstáv a vychutnáte si istotu bývania v dome, ktorý bol postavený pre budúcnosť vašej rodiny. Domov, ktorý nadchne nielen dnes, ale bude vás sprevádzať celý život.
Dohodnite si ešte dnes termín prehliadky a zažite na mieste, čo robí tento dom tak výnimočným.
Tento domov čaká na to, aby ste ho objavili a naplnili životom – neváhajte, vaše nové začiatky začínajú práve tu!
Dohodnite si termín s vašou kontaktnou osobou (aj počas víkendu):
Helena Shatalova
017621781474
Parametre nehnuteľnosti
| Vek | Nad 50 rokov |
|---|---|
| Stav | Novostavba |
| Číslo inzerátu | 1006977 |
| Úžitková plocha | 154 m² |
| Celkové poschodia | 2 |
| Dostupné od | 4. 4. 2026 |
|---|---|
| Dispozícia | 4+1 |
| PENB | A - Mimoriadne úsporné |
| Plocha pozemku | 430 m² |
| Cena za jednotku | 5 600 € / m2 |
Čo táto nehnuteľnosť ponúka?
| Bezbariérový prístup | |
| MHD 1 minúta pešo |
| Parkovanie | |
| Terasa |
V okolí nehnuteľnosti nájdete
Stále hľadáte to pravé?
Nastavte si strážneho psa. Ponuky vybrané na mieru dostanete súhrnne 1× denne e-mailom. S Premium profilom máte po ruke rovno 5 strážcov a keď sa niečo objaví, informujú vás obratom.




























