
Predaj domu 4+1 • 168 m² bez realitkyBerlin Rahnsdorf Berlin 12589
Berlin Rahnsdorf Berlin 12589MHD 2 minúty pešo • ParkovanieVitajte vo vašom novom dome bez obťažovania: Predávame našu svetlom žiariacu vilu v žiadanej lokalite Berlin-Rahnsdorf priamo od súkromnej osoby ku súkromnej osobe. Tešte sa na 168 m² pôvodného šarmu staršej stavby na nádhernom, priestrannom záhradnom pozemku – a to kompletne zrekonštruovanom (strecha, fasáda a domáca technika) a bez provízie pre vás ako kupujúceho.
Žiadna provízia makléra (ušetríte približne 33 000 €)
Historický šarm staršej stavby s vysokými stropmi
Snový pozemok v blízkosti jazier (Rahnsdorf)
Už bola podaná žiadosť o optické vlákno
plus 30 000 € odkupného za kvalitné vybavenie, ako napr. vstavaná kuchyňa, krbový kachľový pec, osvetlenie a pod. Vaša výhoda: Vďaka oddelenému vyčísleniu ušetríte približne 1 800 € na dani z nadobudnutia nehnuteľnosti!
Ihneď k súťaženiu / podľa dohody
Láskyplne zrenovovaná, jedinečná vila v staršom štýle v blízkosti Müggelsee v Berlíne Rahnsdorf.
Umiestnená v chránenom prostredí, v druhej rade od ulice, pri Rahnsdorfer Mühlenfließ s nádherným výhľadom do zelene. Za vlastnou záhradou sa rozprestiera chránená vodná a vtáčia oblasť Mühlenfließ.
Vila z roku 1905, s rozšíreniami z 20. rokov 20. storočia, bola od roku 2018 kompletné zrenovovaná a s veľkou láskou k detailu kvalitne spracovaná.
Vďaka odborným poznatkom bolo zabudované ekologicky ideálne a klimaticky výnimočné spojenie steny s podlahovým kúrením a omietkou z hliny, kombinované s drevenými povrchmi, čo zabezpečuje perfektné vnútorné prostredie pri veľmi teplom aj studenom počasí bez vysokých energetických nárokov a nielen, že pôsobí esteticky. Vďaka vykonanej izolácii obálky budovy sa dosahuje spotreba energie len 104 kWh/m² ročne (budovacia trieda D).
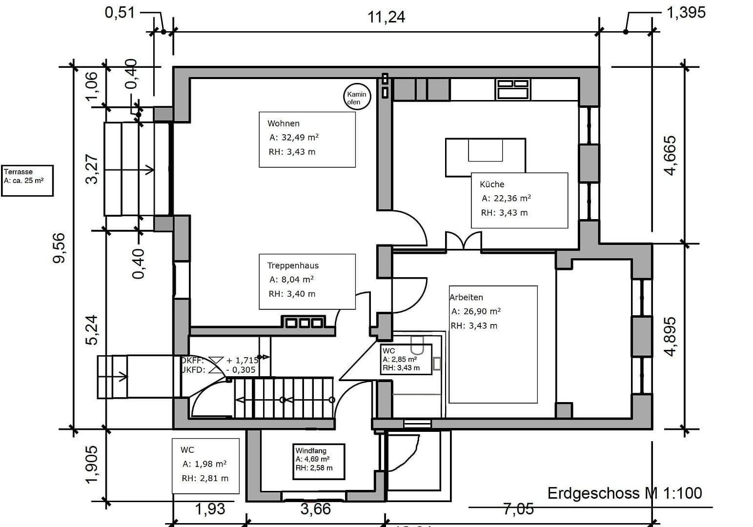
V prízemí sa nachádzajú priestranné priestory na bývanie, varenie a prácu, ktoré sú navzájom prepojené.
Prízemie je doplnené o malé WC, ktoré možno rozšíriť na kúpeľňu pre hostí.
Obývacia izba sa otvára cez veľké terasové okno k záhrade a ponúka výhľad do zelene. Na schodoch vedúcich k terase si môžete vychutnať západy slnka s pohárom vína, v tme zase sledovať hviezdy zo sedačky alebo lehátka. Krbový kachľový pec poskytuje útulnosť počas chladných dní.
Veľká záhrada ponúka priestor na hry a oddych, blízkosť chráneného vtáčieho územia zase prírodné kratochvilky. Často sa tu dajú pozorovať aj ďalšie návštevy zo sveta zvierat, ktoré vás zvádzajú k dlhému pobytu vonku.
Priestranná pracovňa (cca 24 m²) v prízemí ponúka dostatok miesta pre freelancerov a prácu z domu. Pripojenie optického vlákna už bolo podané.
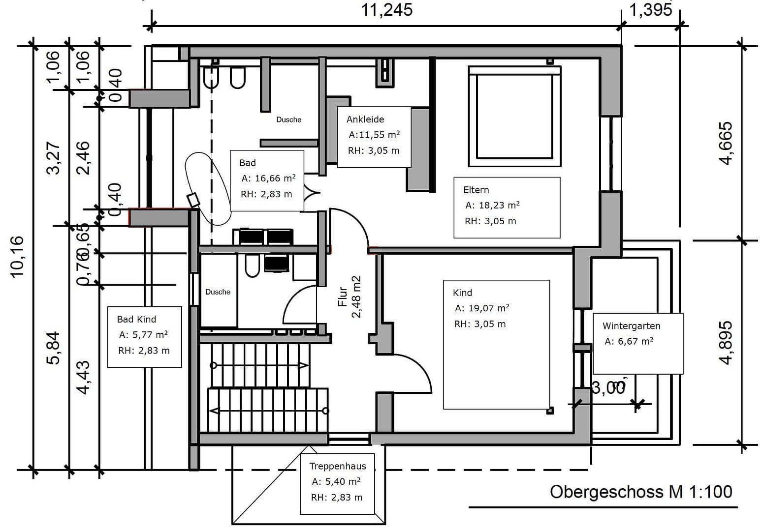
V hornom poschodí sú vybavené dve spálne a dve kúpeľne, ideálne pre rodičovské a detské izby. Aj tu bola použitá hliníková omietka a odhalená drevená konštrukcia strechy. Hlavná kúpeľňa s veľkým oknom do záhrady a s vyhradenou časťou na ležanie ponúka možnosť oddychu, čítania, pohody a pod. Detská izba disponuje balkónom so strechou.
V záhrade možno využiť záhradnú chatu ako kôlňu a dielňu alebo ju podľa potreby rozšíriť podľa vlastných predstáv.
Niekoľko ovocných a ozdobných stromov dopĺňa záhradu a na jar ponúka rozkvitnuté predstavenie.
Jedným z vrcholov horúcich dní je inštalovaný bazén, ktorý sa prirodzene začleňuje medzi stromy.
Plávanie v jazere alebo výlet na SUP možno začať pešo z Mohle pri Müggelsee.
V blízkosti centra mesta Rahnsdorf s lekárňou, poštou so papiernictvom, pekným obchodom s vínom a gurmánskymi delikatesami, pekárňou a kaviarňou v pešej vzdialenosti, ako aj ďalšími nákupnými možnosťami (supermarket, obchod s nápojmi, záhradné centrum). Vrcholom je aj reštaurácia/kaviareň s najkrajším západom slnka v Berlíne pri Müggelsee, ktorá je približne 10 minút chôdze. Rahnsdorf je ideálnym východiskovým bodom na výlety na bicykli, loďou alebo pešou túru cez lesy.
Základná škola sa nachádza približne 800 m, v okolí je niekoľko materských škôl, najbližšie stredné školy sú v Friedrichshagene.
Autobus a električka sú dostupné pešo (cca 5 min.); S-Bahn cca 15 minút pešo alebo 1 zastávkou autobusom.
Na krásnej Bölschestraße vo Friedrichshagene (cca 10 minút autom alebo električkou) nájdete butikové obchody, reštaurácie všetkých chutí a mnoho ďalších obchodných možností. Centrum mesta vám určite nebude chýbať!
nízka spotreba energie len 104 kWh/m² ročne v porovnaní s nerezonštruovanou starou stavbou s cca 250 kWh/m² ročne
Obnovená podlaha z drevených dosiek a renovované originálne dverové rámy
Nové okná: drevo-hliník
Pôvodné okenné rámy z dreva
Renovované drevené schody
Podlahové kúrenie a hliníková omietka
Energeticky zrekonštruované: Vonkajšie steny, strecha, podlahy
Viditeľná konštrukcia strechy/drevené trámy v hornom poschodí
Výška stropu v prízemí cca 3,40 m
Varnej doska Gas-Ceran s varnou ostrovčekom a barom ako centrálnym bodom pri oslavách
K dispozícii aj „balkónová“ fotovoltaická inštalácia
Krbový kachľový pec
Parametre nehnuteľnosti
| Vek | Nad 50 rokov |
|---|---|
| Dispozícia | 4+1 |
| PENB | D - Menej hospodárne |
| Plocha pozemku | 1 039 m² |
| Cena za jednotku | 5 351 € / m2 |
| Stav | Po rekonštrukcii |
|---|---|
| Číslo inzerátu | 1006450 |
| Úžitková plocha | 168 m² |
| Celkové poschodia | 2 |
Čo táto nehnuteľnosť ponúka?
| Balkón | |
| Parkovanie | |
| Terasa |
| Pivnica | |
| MHD 2 minúty pešo |
V okolí nehnuteľnosti nájdete
Stále hľadáte to pravé?
Nastavte si strážneho psa. Ponuky vybrané na mieru dostanete súhrnne 1× denne e-mailom. S Premium profilom máte po ruke rovno 5 strážcov a keď sa niečo objaví, informujú vás obratom.































