
Predaj bytu 4+1 • 90 m² bez realitkyStrandpromenade 6, , Hesensko
Tento nádherný 4-izbový penthouse na adrese Strandpromenade 6 pôsobí modernou architektúrou, výnimočným umiestnením a jedinečným výhľadom na jazero Rodgauer.
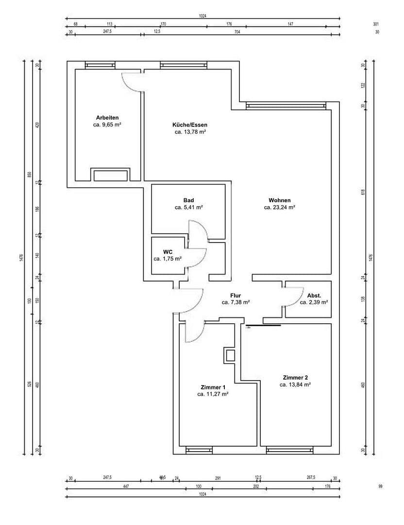
Byt sa nachádza na 13. poschodí udržiavaného obytného domu a je ľahko dostupný výťahom. Už pri vstupe upúta pozornosť priestranná, svetlá dispozícia. Veľký obývací a jedálenský priestor sa otvára prostredníctvom veľkých okien na spektakulárne panorámu nad mestom a jazerom.
So starostlivo navrhnutými tromi spálňami ponúka byt optimálne podmienky pre rodiny, prácu z domu, hostí či priestranné bývacie koncepty. Plne vybavená kúpeľňa s vaňou vás zve k oddychu, pričom samostatné hosťovské WC zvyšuje celkový komfort bývania.
Svetlé miestnosti, vzdušná dispozícia a výnimočný výhľad robia z tohto penthouse skutočnú oázu pohody na exkluzívnej lokalite.
K bytu prislúcha parkovacie miesto, ktoré stojí navyše 10 000 € – cenné plus v tejto obľúbenej rezidenčnej oblasti.
Byt sa nachádza na Strandpromenade v Rodgau-Niederroden, jednej z najžiadanejších adries regiónu. Priamo pri rodgauer badesee ponúkajú ideálne možnosti na oddych a rekreáciu prakticky práve za dverami.
Reštaurácie, možnosti nakupovania, lekári, školy, ako aj autobusové a vlakové spojenia sú rýchlo dostupné. Vďaka vynikajúcemu napojeniu na diaľnice je Frankfurt, Offenbach a celé Rhein-Main-územie ľahko dosiahnuteľné.
Dokonalá kombinácia prírody, mestského komfortu a výborných dopravných väzieb.
Penthouse na 13. poschodí
Výťah až na úroveň bytu
4 izby
3 spálne
Priestranný obývací a jedálenský priestor
Kúpeľňa s vaňou
Hosťovské WC
Veľké okná a veľa denného svetla
Parkovacie miesto (stojí navyše 10 000 €)
Tento penthouse ponúka mimoriadne bývacie prostredie, vynikajúci výhľad a obzvlášť žiadanú polohu. Je ideálny pre tých, ktorí ocenia exkluzívne bývanie nad strechami Niederroden – s priamym výhľadom na jazero a optimálnymi životnými podmienkami.
Parametre nehnuteľnosti
| Vek | Nad 50 rokov |
|---|---|
| Stav | Po rekonštrukcii |
| Číslo inzerátu | 998478 |
| Úžitková plocha | 90 m² |
| Dostupné od | 8. 3. 2026 |
|---|---|
| Dispozícia | 4+1 |
| PENB | E - Nehospodárne |
| Cena za jednotku | 2 767 € / m2 |
Čo táto nehnuteľnosť ponúka?
| Výťah | |
| MHD 4 minúty pešo |
| Parkovanie |
V okolí nehnuteľnosti nájdete



Predaj bytuBartningstr. 10 Darmstadt-Kranichstein Kranichstein Hessen 64289- 4+1
- 88 m²
289 000 € + 731 €
Stále hľadáte to pravé?
Nastavte si strážneho psa. Ponuky vybrané na mieru dostanete súhrnne 1× denne e-mailom. S Premium profilom máte po ruke rovno 5 strážcov a keď sa niečo objaví, informujú vás obratom.








