
Predaj bytu 3+1 • 95 m² bez realitky, Severné Porýnie - Westfálsko
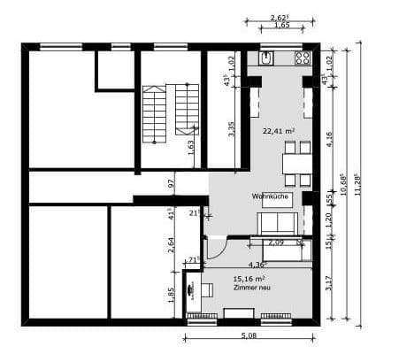
, Severné Porýnie - WestfálskoMHD 2 minúty pešo • Parkovanie • GarážTáto mimoriadne pekná a svetlá bytosť sa nachádza v 2. poschodí štvordružinného domu v pokojnej, no centrálnemu blízkej lokalite. Z obývacej/jedálenskej izby s prístupom na južno/východný balkón máte fantastický diaľkový výhľad. Byt je veľmi dobre zariadený a je veľmi vhodný pre jednotlivca, pár alebo rodinu s jedným dieťaťom. Okrem obývacej/jedálenskej izby byt disponuje aj spálňou, pracovňou alebo detskou izbou, kuchyňou, kúpeľňou s denným svetlom a dvoma oknami, WC, sprchou a vaňou, užitkovou miestnosťou s plynovým kotlom na poschodí, a je tu možnosť umiestniť práčku a sušičku. Prístup do bytu je cez dvere v 1. poschodí, kde sa nachádza malý predsieň s vešiakom. Cez schodisko do 2. poschodia sa dostanete k bytu. Pred dverami bytu v 2. poschodí sa nachádza užitková miestnosť a prístup na podkrovie, ktoré je čiastočne využívané ako úložný priestor. K bytu patrí aj pivnica. Mesačný domový poplatok je približne 170 €. Garáž je možné zakúpiť samostatne. Pred garážou sa navyše nachádza parkovacie miesto pre ďalšie vozidlo.
V spálni nájdete veľkú vstavanú skriňu s posuvnými dverami. Okná boli novo natreté. Drevená podlaha na balkóne bola čerstvo olejovaná a drevené obkladové prvky šikmice boli novo natreté. Krb v obývacej/jedálenskej izbe už nesmie byť používaný; prípadne môže byť demontovaný a, podľa potreby, môže sa na komín pripojiť krbový kachličkový ohrievač.
Nehnuteľnosť sa nachádza v centrálnej a dobre dostupnej obytné oblasti Gevelsbergu, neďaleko centra mesta. Obchody dennej potreby, kaviarne, reštaurácie, ako aj lekári a lekárne sú pohodlne dostupné pešo.
Aj rodiny majú z okolia úžitok: školy, materské školy a voľnočasové zariadenia sa nachádzajú v bezprostrednej blízkosti. Výborná dostupnosť verejnej dopravy a blízkosť diaľnic A1, A43 a A46 zabezpečujú ideálnu dostupnosť okolitých miest, ako sú Wuppertal, Hagen a Dortmund. Lokalita spája pokojné bývanie s mestskou blízkosťou, a tak ponúka vynikajúce podmienky pre bývajúcich aj pre investorov.
Parametre nehnuteľnosti
| Vek | Nad 50 rokov |
|---|---|
| Stav | Dobrý |
| Poschodie | 2. poschodie z 3 |
| PENB | C - Hospodárne |
| Cena za jednotku | 1 884 € / m2 |
| Dostupné od | 5. 3. 2026 |
|---|---|
| Dispozícia | 3+1 |
| Číslo inzerátu | 997752 |
| Úžitková plocha | 95 m² |
Čo táto nehnuteľnosť ponúka?
| Balkón | |
| Garáž | |
| MHD 2 minúty pešo |
| Pivnica | |
| Parkovanie |
V okolí nehnuteľnosti nájdete
Stále hľadáte to pravé?
Nastavte si strážneho psa. Ponuky vybrané na mieru dostanete súhrnne 1× denne e-mailom. S Premium profilom máte po ruke rovno 5 strážcov a keď sa niečo objaví, informujú vás obratom.






















