
Predaj bytu 2+1 • 57 m² bez realitkyDüsseldorf Bilk Nordrhein-Westfalen 40223
Düsseldorf Bilk Nordrhein-Westfalen 40223MHD 2 minúty pešo • Výťah • GarážTáto pôvabná 2-izbová bytosť s rozlohou cca 56,42 m² vás osloví premysleným pôdorysom, množstvom denného svetla a moderným pocitom bývania.
Priestranný obývací a jedálenský priestor s čiastočne otvorenou kuchyňou tvorí srdce bytu. Odtiaľ máte priamy prístup na tichý balkón – ideálne miesto na oddych po náročnom dni alebo na prvú rannú kávu.
Spálňa je optimálne navrhnutá a ponúka dostatok miesta pre veľkú posteľ a priestrannú skrinku.
Štýlovo zmodernizovaná kúpeľňa sa prezentuje v nadčasovom, neutrálnom dizajne a je vybavená vaňou – ideálna pre chvíle oddychu.
Byt bol v roku 2026 dôkladne zrekonštruovaný a je pripravený na okamžité nasťahovanie – stačí sa presťahovať a cítiť sa ako doma bez ďalších zásahov.
Vlastná pivnica a uzamykateľné garážové miesto v prízemí dodávajú bytu dodatočný komfort a robia z tejto ponuky ešte atraktívnejšiu.
Byt sa nachádza v oblasti Düsseldorf-Bilk – jednej z najobľúbenejších a najdynamičtějších štvrti hlavného mesta. Tu sa urbanistický životný štýl, ustálené susedstvo a vynikajúca infraštruktúra ideálne spájajú.
Všetky zariadenia pre každodenné potreby – od supermarketov, cez útulné kaviarne a rozmanité reštaurácie až po lekárov a lekárne – sú pohodlne dostupné pešo.
Vynikajúce spojenie s verejnou dopravou pomocou S-Bahn, električky a autobusu zabezpečuje krátke cesty do centra Düsseldorfu, na Heinrich-Heine-Universität Düsseldorf a do všetkých ďalších častí mesta.
Atraktívnu polohu dopĺňa množstvo zelených plôch v okolí, ktoré ponúkajú priestor na oddych, športovanie a pokojných prechádzok – ideálny kompenzačný prvok k mestskému životu.
Balkón
Personálny výťah
Garážové miesto v prízemí (s možnosťou uzamknutia)
Pivnica
Čiastočne otvorená kuchyňa
Moderná sprchovacia kúpeľňa
Vysoko kvalitné podlahové krytiny
Nové dvere
Čerstvo tapetované a natreté steny
Obnovená elektroinštalácia (2025)
Základné údaje na prvý pohľad:
Kúpna cena bytu vrátane garážového miesta: 299 000 €
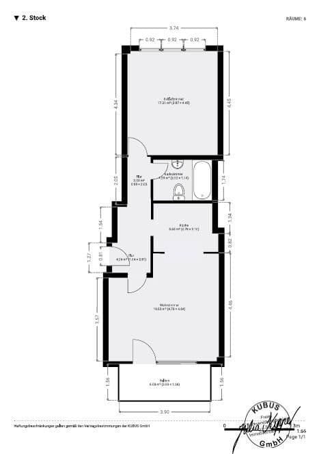
Obytnej plocha: cca 56,42 m²
Izby: 2
Poschodie: 2. nadzemné poschodie (s výťahom)
Mesačné poplatky: 286 €
Okamžitá k dispozícii
Bez provízie pre kupujúceho
Parametre nehnuteľnosti
| Vek | Nad 50 rokov |
|---|---|
| Stav | Po rekonštrukcii |
| Poschodie | 2. poschodie z 5 |
| PENB | E - Nehospodárne |
| Cena za jednotku | 5 246 € / m2 |
| Dostupné od | 9. 3. 2026 |
|---|---|
| Dispozícia | 2+1 |
| Číslo inzerátu | 996248 |
| Úžitková plocha | 57 m² |
Čo táto nehnuteľnosť ponúka?
| Balkón | |
| Pivnica | |
| Výťah |
| Bezbariérový prístup | |
| Garáž | |
| MHD 2 minúty pešo |
V okolí nehnuteľnosti nájdete



Predaj bytuUrdenbacher Dorfstrasse 34 Düsseldorf-Urdenbach Urdenbach Nordrhein-Westfalen 40593- 3+1
- 82 m²
328 000 € + 270 €

Stále hľadáte to pravé?
Nastavte si strážneho psa. Ponuky vybrané na mieru dostanete súhrnne 1× denne e-mailom. S Premium profilom máte po ruke rovno 5 strážcov a keď sa niečo objaví, informujú vás obratom.










