
Predaj bytu 2+1 • 60 m² bez realitkyBoschetsrieder Str. 63 München Obersendling Bayern 81379
Boschetsrieder Str. 63 München Obersendling Bayern 81379MHD 2 minúty pešo • Výťah • Parkovanie • GarážVitajte vo vašom štýlovo zmodernizovanom 2-izbovom byte v žiadanej mníchovskej štvrti Thalkirchen!
Táto nadčasová nehnuteľnosť z 90. rokov sa nachádza na 2. poschodí mimoriadne udržiavanej obytného komplexu a presvedčuje harmonickým spojením komfortu, svetla a mestskej životnej kvality.
Už pri vstupe pocítite príjemnú atmosféru bývania: veľké okná od podlahy až po strop v obývačke vytvoria ohromujúco svetlý priestor a dodajú bytu otvorený, priateľský pocit.
Špeciálnym vrcholem je kompletne novou zrekonštruovaná kúpeľňa, ktorá nielenže vizuálne zapôsobí svojou modernou výbavou a kvalitnými armatúrami, ale ponúka aj maximálny komfort.
Okolie tiež hovorí samo za seba: Tichý, avšak centrálny obytný komplex sa môže pochváliť vynikajúcou infraštruktúrou. Len cca 5 minút pešo sa dostanete na stanicu metra, čo zaručuje rýchle a pohodlné spojenie s mníchovským centrom.
Osobný výťah vás komfortne dopraví priamo zo súkromného miesta v podzemnej garáži až k dverám bytu. K dispozícii je tiež samostatný suterénny priestor.
Byt je momentálne spoľahlivo prenajatý a dosahuje mesačný nájom (bez zahrnutého vykurovania) vo výške 1.760 €, čo ho robí mimoriadne atraktívnym pre kapitálových investorov.
Lokalita – mestsky prepojená, ale zároveň obklopená zeleňou
Ulica Boschetsriederstraße patrí medzi najžiadanejšie rezidenčné adresy na juhu Mníchova – spája totiž osobitým spôsobom mestskú dynamiku s upokojujúcim pokojom.
Jedným z hlavných kvalitatívnych znakov tejto lokality je chránené, zeleňou upravené nádvorie, ktoré obyvateľom ponúka súkromnú oázu oddychu. Tu sa vytvára pocit bývania, ktorý je v Mníchove čoraz vzácnejší: uvoľnený, pokojný, ale zároveň priamo v centre diania.
Výborné dopravné spojenie
Stanice metra a prímestského vlakov sú vzdialené len pár minút chôdze a zabezpečujú rýchle a priamé spojenie do mníchovského centra aj do zvyšku mesta. Aj autom budete profitovať z optimálneho spojenia s Mestským obiehacím okruhom a okolnými diaľnicami.
Najlepšia infraštruktúra v bezprostrednom okolí
Blízkosť základných služieb je komfortná a rozmanitá:
Supermarkety, pekárne, lekárne a ďalšie možnosti nakupovania nájdete v bezprostrednej blízkosti. K tomu sa pridáva atraktívny výber reštaurácií, kaviarní a lokálnych trhov, ktoré štvrť oživujú a dodávajú jej autentický šarm.
Kvalita života pre všetky generácie
Kombinácia zelených odpočinkových priestorov, ustáleného susedstva a mestskej infraštruktúry robí z Boschetsriederstraße prvotriednu lokalitu pre bývanie pre všetky vekové kategórie – či už pre vlastníkov alebo kapitálových investorov.
Veľkorysá okná od podlahy až po strop v obývačke
Pre mimoriadne svetlú atmosféru s množstvom denného svetla a otvoreným pocitom priestoru.
Slnečný balkón s prístupom z obývacej izby alebo spálne
Ideálny pre relaxačné chvíle na čerstvom vzduchu – flexibilne využiteľný a harmonicky začlenený do celkového konceptu bývania.
Plynové centrálne kúrenie s klasickými radiátormi
Efektívna a osvedčená vykurovacia technika so spoľahlivým zásobením teplom.
Laminátová podlaha v kvalitnej parketovej optike
Ľahko udržiavateľná, odolná a vizuálne príťažlivá – spája estetiku s praktickosťou každodenného používania.
Moderná kúpeľňa so sprchou a WC
Funkčne a súčasne navrhnutá – prehľadne usporiadaná a komfortne využiteľná.
Integrovaná zabudovaná kuchyňa
Harmonicky začlenená do obytného priestoru – ideálna pre spoločenské bývanie a optimálne využitie priestoru.
Osobný výťah s priamym prístupom do podzemnej garáže
Komfortný prístup do bytu – bez bariér a s úľavou pre každodenný život.
Duplexové parkovacie miesto v podzemnej garáži
Chránené parkovanie v dome – čo je v Mníchove mimoriadne výhodou pre lokalitu a hodnotu (plus 19.500 EUR).
Parametre nehnuteľnosti
| Vek | Nad 50 rokov |
|---|---|
| Stav | Po rekonštrukcii |
| Poschodie | 2. poschodie z 5 |
| PENB | C - Hospodárne |
| Cena za jednotku | 8 983 € / m2 |
| Dostupné od | 9. 3. 2026 |
|---|---|
| Dispozícia | 2+1 |
| Číslo inzerátu | 995799 |
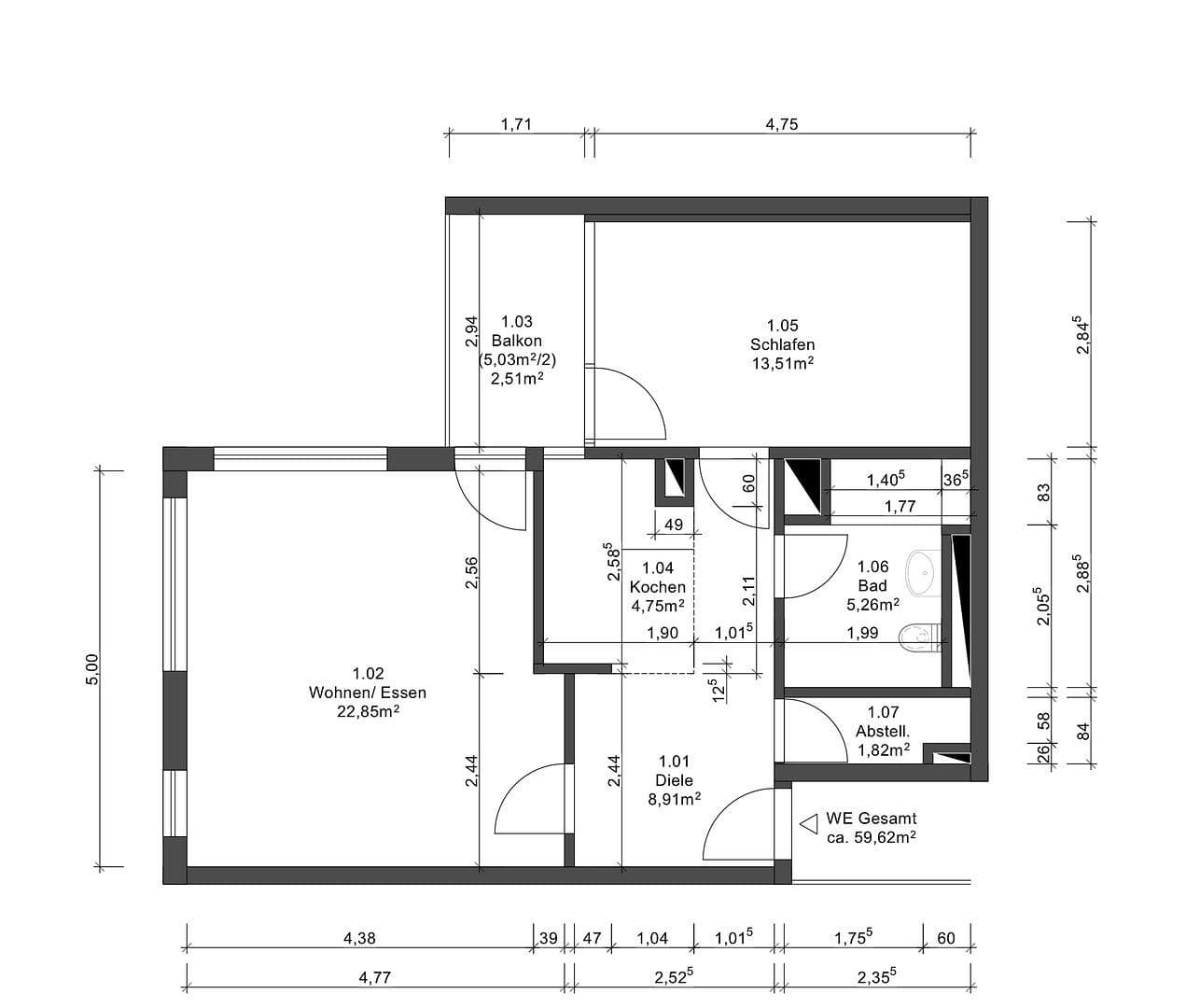
| Úžitková plocha | 60 m² |
Čo táto nehnuteľnosť ponúka?
| Balkón | |
| Garáž | |
| Parkovanie |
| Pivnica | |
| Výťah | |
| MHD 2 minúty pešo |
V okolí nehnuteľnosti nájdete
Stále hľadáte to pravé?
Nastavte si strážneho psa. Ponuky vybrané na mieru dostanete súhrnne 1× denne e-mailom. S Premium profilom máte po ruke rovno 5 strážcov a keď sa niečo objaví, informujú vás obratom.


















