
Predaj domu • 291 m² bez realitky, Hesensko
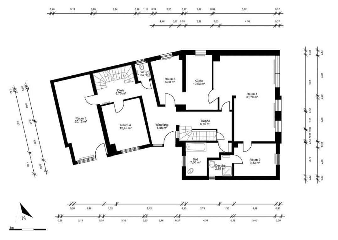
, HesenskoMHD 1 minúta pešo • Parkovanie • GarážTento zaujímavý dom s približne 291 m² obytného priestoru a 14 izbami sa nachádza v historickom jadre Stockstadt am Rhein. Objekt pozostáva zo staršieho objektu, ktorý potrebuje rekonštrukciu, s dvoma poschodiami a podkrovinou (približne 181 m²), a z udržiavanej prístavby (okolo 110 m²) z 80. rokov. V prístavbe sú 4 izby s balkónom, kuchyňa, kúpeľňa a toaleta pre hostí, ktoré sú po drobných kozmetických opravách okamžite k dispozícii. Starší objekt je možné jednoduchými opatreniami oddeliť od prístavby, čím vzniknú dve plnohodnotné obytné jednotky s veľkým priestorom pre rôzne koncepcie využitia. Doteraz boli obe časti využívané spoločne ako jeden veľký obytný dom.
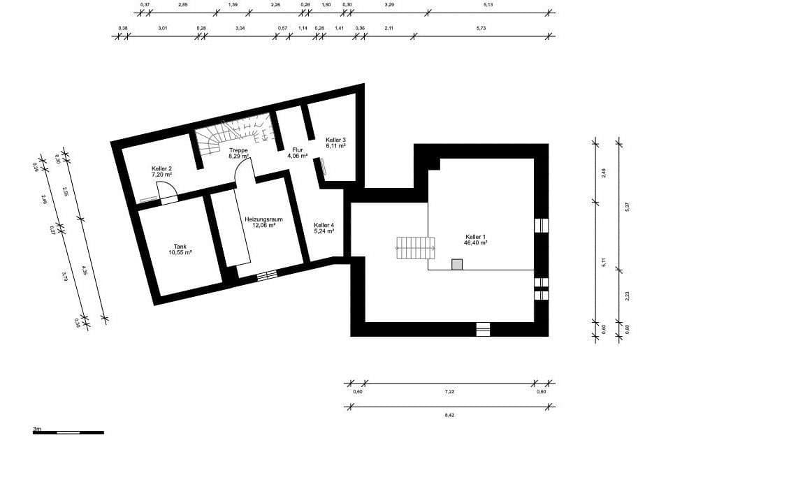
Chránený dvor ponúka priestor pre vonkajšie sedenie a taktiež miesta na parkovanie. Je tu aj garáž. Dom je podzemný, čo poskytuje ďalší úložný priestor. Dom je okamžite k dispozícii a je ideálny pre rodiny, ako viacgeneračný dom alebo na oddelenie do dvoch samostatných obytných domov pripomínajúcich dvojdom.
Stockstadt am Rhein je obec v okrese Groß-Gerau v Hesensku. Poloha zabezpečuje dobré spojenie s okolitými mestami a solídnu občiansku vybavenosť. V blízkosti sú obchody pre každodenné potreby, lekári a školy. Okolie láka na rekreačné aktivity vonku vďaka blízkosti prírodnej rezervácie Kühkopf-Knoblochsaue.
Obec je zastávkou na Riedbahn Frankfurt–Mannheim a do Darmstadtu vedie aj autobusová linka. Starší objekt potrebuje kompletnú rekonštrukciu. Vybavenie v prístavbe zodpovedá štandardom 80. rokov a je v podstate okamžite použiteľné.
Parametre nehnuteľnosti
| Stav | Pred rekonštrukciou |
|---|---|
| Úžitková plocha | 291 m² |
| Celkové poschodia | 2 |
| Číslo inzerátu | 993304 |
|---|---|
| Plocha pozemku | 292 m² |
| Cena za jednotku | 1 540 € / m2 |
Čo táto nehnuteľnosť ponúka?
| Balkón | |
| Garáž | |
| MHD 1 minúta pešo |
| Pivnica | |
| Parkovanie | |
| Terasa |
V okolí nehnuteľnosti nájdete
Stále hľadáte to pravé?
Nastavte si strážneho psa. Ponuky vybrané na mieru dostanete súhrnne 1× denne e-mailom. S Premium profilom máte po ruke rovno 5 strážcov a keď sa niečo objaví, informujú vás obratom.










