
Predaj bytu 2+1 • 60 m² bez realitkyBoschetsrieder Str. 63 München Obersendling Bayern 81379
Boschetsrieder Str. 63 München Obersendling Bayern 81379Výťah • Parkovanie • GarážHerzlich willkommen in Ihrer stilvoll modernisierten 2-Zimmer-Wohnung im begehrten Münchner Stadtteil Thalkirchen!
Vitajte vo svojej štýlovo zmodernizovanej 2-izbovej bytovom v žiadanej mníchovskej štvrti Thalkirchen!
Diese zeitlose Immobilie aus den 1990er Jahren befindet sich im 2. Obergeschoss einer äußerst gepflegten Wohnanlage und überzeugt durch ein harmonisches Zusammenspiel aus Komfort, Licht und urbaner Lebensqualität.
Táto nadčasová nehnuteľnosť z 90. rokov sa nachádza v 2. nadzemnom podlaží mimoriadne udržiavaného obytného komplexu a oslní vás harmonickým súladom komfortu, svetla a mestského životného štýlu.
Bereits beim Betreten spürt man das angenehme Wohnambiente: große bodentiefe Fensterfronten im Wohnzimmer schaffen eine beeindruckend helle Atmosphäre und verleihen der Wohnung ein offenes, freundliches Raumgefühl.
Už pri vstupe pocítite príjemnú atmosféru bývania: veľké okná od podlahy po strop v obývacej izbe vytvárajú ohromujúco svetlú atmosféru a dodávajú bytu otvorený, priateľský pocit priestoru.
Ein besonderes Highlight ist das vollständig neu sanierte Badezimmer, das mit hochwertigen Armaturen und moderner Ausstattung nicht nur optisch begeistert, sondern auch maximalen Komfort bietet.
Osobitným lákadlom je kompletne zrekonštruovaná kúpeľňa, ktorá nielen očaruje svojím vzhľadom vďaka vysoko kvalitným armaturám a modernému vybaveniu, ale zároveň ponúka maximálny komfort.
Auch das Umfeld spricht für sich: Die ruhige und dennoch zentrale Wohnanlage punktet mit bester Infrastruktur. In nur ca. 5 Gehminuten erreichen Sie die U-Bahn, wodurch die Münchner Innenstadt schnell und bequem angebunden ist.
Aj okolie hovorí samo za seba: Pokojný, no zároveň centrálny obytný komplex sa vyznačuje najlepšou infraštruktúrou. Len za približne 5 minút pešo dosiahnete stanicu metra, ktorá rýchlo a pohodlne spája s mníchovským centrom.
Ein Personenaufzug bringt Sie komfortabel vom zur Wohnung gehörenden Tiefgaragenstellplatz direkt bis vor Ihre Wohnungstür. Zusätzlich steht ein separates Kellerabteil zur Verfügung.
Osobný výťah vás pohodlne dopraví od vášho podzemného parkovacieho miesta priamo až k dverám bytu. Navyše je k dispozícii samostatný pivničný priestor.
Die Wohnung ist aktuell zuverlässig vermietet und erzielt eine monatliche Kaltmiete von 1.760 €, was sie für Kapitalanleger äußerst attraktiv macht.
Byt je momentálne stabilne prenajatý a prináša mesačný nájom (bez zahrnutých nákladov) vo výške 1 760 €, čo z neho robí mimoriadne atraktívnu investíciu pre kapitálových investorlov.
Lage – Urban angebunden, grün eingebettet
Poloha – Mestsky prístup, zapadnutá v zelenej prírode
Die Boschetsriederstraße zählt zu den gefragtesten Wohnadressen im Münchner Süden – und vereint auf besondere Weise urbane Dynamik mit wohltuender Ruhe.
Ulica Boschetsrieder patrí medzi najžiadanejšie adresy bývania na juhu Mníchova – a spája jedinečným spôsobom mestskú dynamiku s upokojujúcim pokojom.
Ein zentrales Qualitätsmerkmal dieser Lage ist der geschützte, grün gestaltete Innenhof, der den Bewohnern eine private Rückzugsoase bietet. Hier entsteht ein Wohngefühl, das in München selten geworden ist: entspannt, ruhig und dennoch mitten im Geschehen.
Hlavnou kvalitatívnou črtou tejto polohy je chránený, zeleňou upravený vnútorný dvor, ktorý obyvateľom ponúka súkromnú oázu oddychu. Tu vzniká pocit bývania, aký je v Mníchove čoraz vzácnejší: uvoľnený, pokojný a zároveň priamo v centre diania.
Exzellente Verkehrsanbindung
Vynikajúce dopravné spojenie
Die U-Bahn- und S-Bahn-Stationen sind in wenigen Gehminuten erreichbar und gewährleisten eine schnelle, direkte Verbindung in die Münchner Innenstadt sowie in das gesamte Stadtgebiet. Auch mit dem Auto profitieren Sie von einer optimalen Anbindung an den Mittleren Ring und die umliegenden Autobahnen.
Stanice metra a S-Bahn sú dostupné pešo len v niekoľkých minútach, čo zaručuje rýchle a priame spojenie s mníchovským centrom aj so zvyškom mesta. Aj autom profitujete z optimálneho napojenia na Stredný okruh a okolité diaľnice.
Beste Infrastruktur im direkten Umfeld
Najlepšia infraštruktúra v bezprostrednom okolí
Die Nahversorgung ist komfortabel und vielseitig:
Bližšie zásobovanie je pohodlné a rozmanité:
Supermärkte, Bäckereien, Apotheken und weitere Einkaufsmöglichkeiten befinden sich in unmittelbarer Nähe. Ergänzt wird das Angebot durch eine attraktive Auswahl an Restaurants, Cafés und lokalen Märkten, die das Viertel lebendig und authentisch machen.
Supermarkety, pekárne, lekárne a ďalšie možnosti nákupov sa nachádzajú v bezprostrednej blízkosti. Ponuku dopĺňa atraktívny výber reštaurácií, kaviarní a miestnych trhov, ktoré dodávajú štvrti živý a autentický charakter.
Lebensqualität für alle Generationen
Kvalita života pre všetky generácie
Die Kombination aus grünen Rückzugsflächen, gewachsener Nachbarschaft und urbaner Infrastruktur macht die Boschetsriederstraße zu einem erstklassigen Wohnstandort für alle Altersgruppen – ob Eigennutzer oder Kapitalanleger.
Kombinácia zelených útočísk, ustáleného susedstva a mestskej infraštruktúry robí z ulice Boschetsrieder prvotriedne miesto pre bývanie pre všetky vekové kategórie – či už pre vlastné bývanie alebo pre kapitálových investorov.
Großzügige bodentiefe Glasfronten im Wohnzimmer
Štedre okná od podlahy po strop v obývacej izbe
Für ein außergewöhnlich helles Wohnambiente mit viel Tageslicht und einem offenen Raumgefühl.
Pre mimoriadne svetlú atmosféru bývania s množstvom denného svetla a otvoreným pocitom priestoru.
Sonniger Balkon mit Zugang vom Wohn- oder Schlafzimmer
Slnečný balkón s prístupom z obývacej izby alebo spálne
Ideal für entspannte Stunden im Freien – flexibel nutzbar und harmonisch in das Wohnkonzept integriert.
Ideálny pre odpočinkové chvíle vonku – flexibilne využiteľný a harmonicky integrovaný do konceptu bývania.
Gas-Zentralheizung mit klassischen Heizkörpern
Kotle s plynovým centrálnym kúrením a klasickými radiátormi
Effiziente und bewährte Heiztechnik mit zuverlässiger Wärmeversorgung.
Efektívna a osvedčená vykurovacia technika so spoľahlivým zásobovaním teplom.
Laminatboden in hochwertiger Parkettoptik
Laminátová podlaha vo vysokej parketovej optike
Pflegeleicht, robust und optisch ansprechend – verbindet Ästhetik mit Alltagstauglichkeit.
Jednoduchá na údržbu, odolná a esteticky príťažlivá – spája krásu s praktickosťou pre každodenný život.
Modernes Duschbad mit WC
Moderná kúpeľňa so sprchou a WC
Funktional und zeitgemäß gestaltet – klar strukturiert und komfortabel nutzbar.
Funkčne a moderné navrhnuté – prehľadne rozvrhnuté a pohodlne využiteľné.
Offen integrierte Einbauküche
Otvorená integrovaná kuchyňa
Harmonisch in den Wohnbereich eingebunden – ideal für kommunikatives Wohnen und eine optimale Raumnutzung.
Harmonicky začlenená do obývacej miestnosti – ideálna pre spoločenské bývanie a optimálne využitie priestoru.
Personenaufzug mit direktem Zugang zur Tiefgarage
Osobný výťah s priamym prístupom do podzemného parkoviska
Komfortables Erreichen der Wohnung – barrierearm und alltagserleichternd.
Pohodlný prístup do bytu – bezbariérový a uľahčujúci každodenný život.
Duplex-Tiefgaragenstellplatz
Duplexové podzemné parkovacie miesto
Geschütztes Parken im Haus – besonders in München ein erheblicher Standort- und Wertvorteil (zzgl. 19.500 EUR).
Chránené parkovanie priamo v budove – najmä v Mníchove predstavuje výraznú výhodu lokality a hodnoty (plus 19 500 EUR).
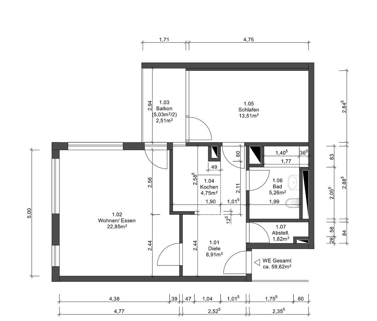
Parametre nehnuteľnosti
| Vek | Nad 50 rokov |
|---|---|
| Stav | Po rekonštrukcii |
| Poschodie | 2. poschodie z 5 |
| PENB | C - Hospodárne |
| Cena za jednotku | 8 983 € / m2 |
| Dostupné od | 20. 2. 2026 |
|---|---|
| Dispozícia | 2+1 |
| Číslo inzerátu | 993059 |
| Úžitková plocha | 60 m² |
Čo táto nehnuteľnosť ponúka?
| Balkón | |
| Garáž | |
| Parkovanie |
| Pivnica | |
| Výťah |
V okolí nehnuteľnosti nájdete
Stále hľadáte to pravé?
Nastavte si strážneho psa. Ponuky vybrané na mieru dostanete súhrnne 1× denne e-mailom. S Premium profilom máte po ruke rovno 5 strážcov a keď sa niečo objaví, informujú vás obratom.


















