
Predaj bytu 3+kk • 109 m² bez realitkyNürnberg Schafhof Bayern 90411
Nürnberg Schafhof Bayern 90411MHD 1 minúta pešo • Výťah • GarážTu je preklad textu do slovenčiny:
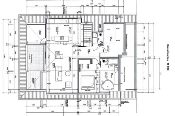
V blízkosti Marienbergparku na ulici Bessemerstraße sa nachádza tento krásny penthouse byt so 3,5 izbami, situovaný v absolútne pokojnej lokalite a umiestnený v 4. poschodí/strešnom poschodí, ktoré je prístupné výťahom.
Predaj prebieha súkromne, priamo od majiteľa.
Prosím, žiadne dopyty od maklérov!
Byt disponuje južnou/východnou terasou s prístupom cez okná v obývacej izbe, spálni a kancelárii. Pri obývacej izbe je veľká elektrická markíza. Obývacia/jedálenská izba, spálňa a kancelária majú parkety zo skutočného dreva, zatiaľ čo kuchyňa je obložená dlažbou.
Ďalšia severozápadná terasa je prístupná cez kuchyňu.
Všetky okná sú dvojsklové a vybavené elektrickými žalúziami.
Spálňa je vybavená klimatizáciou. Kúpeľňa a úložný priestor majú okno.
V kuchyni je inštalovaná veľmi kvalitná, 5 roky stará zabudovaná kuchyňa Nolte Flair so zabudovanými spotrebičmi značky Miele.
Obývacia izba, jedáleň, spálňa a kancelária majú vďaka šikmému strešnému stropu výšku miestnosti okolo 3,00 m na strane okna.
Penthouse byt má podlahové kúrenie s individuálne elektricky ovládanými miestnosťami a je vykurovaný cez centrálnu kúrenie / diaľkové kúrenie.
Energetický preukaz: Trieda V / 68 kWh / diaľkové kúrenie / rok výstavby 2008 / trieda B
K bytu patrí aj podzemné parkovacie miesto (z najlepšej polohy, priamo pri vchodových dverách domu k výťahu), rovnako ako uzamykateľný, neprezerateľný sklepný priestor.
Lokalita penthouse bytu v Nürnbergu Schoppershof je ideálna, s linkou metra Herrenhütte (2 minúty pešo), nákupné možnosti (2 minúty pešo, Aldi, Lidl a Edeka). Marienbergpark je vzdialený 5 minút chôdze. Vďaka severovýchodnej mestskej polohe máte rýchly prístup do centra Nürnbergu, ako aj do Fürthu alebo Erlangeru.
Uvedené nájomné poplatky pokrývajú fixné náklady bytu a podzemnej garáže cez správu domu vo výške 298 EUR, pričom diaľkové kúrenie stojí navyše 110 EUR a elektrina 50 EUR.
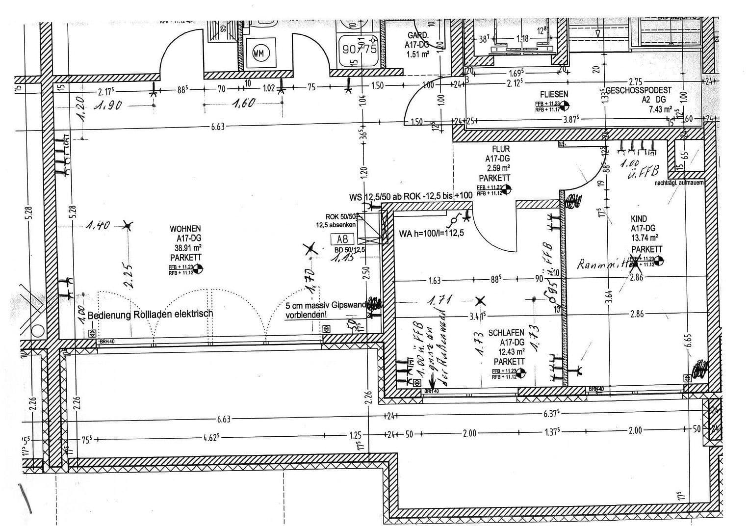
Výpočet obytných priestorov:
38,91 m² obytného/jedálenského priestoru
09,44 m² kuchyne
12,43 m² spálne
13,74 m² kancelárie/detskej izby
07,08 m² kúpeľne
02,59 m² chodby
01,52 m² šatníka
01,89 m² úložného priestoru
13,65 m² terasa (južná/východná) ½ 27,31 m²
08,48 m² terasa (severozápadná) ½ 16,96 m²
Celková plocha: 109,73 m²
Byt je možné ohliadnuť po predložení príslušného dôkazu o likvidite (napr. bankové potvrdenie) a bude voľný od 31. marca 2026.
Lokalita penthouse bytu v Nürnbergu Schoppershof je ideálna, s linkou metra Herrenhütte (2 minúty pešo), nákupné možnosti (2 minúty pešo, Aldi, Lidl a Edeka), nákupné centrum Mercado je vzdialené 5 minút pešo a Marienbergpark je tiež 5 minút pešo. V bezprostrednom okolí sa nachádzajú školy a krytý bazén. Vďaka severovýchodnej mestskej polohe máte rýchly prístup do centra Nürnbergu, ako aj do Fürthu či Erlangeru.
Byt ponúka vysoko kvalitné vybavenie s podlahovým kúrením, parketami z pravého dreva a dlažbou, elektrickými opaľovacími systémami, podlažnými posuvnými oknami v obytných priestoroch a kuchyni. Pri obývacej izbe je veľká elektrická markíza. V obývacej/jedálenskej izbe, spálni a kancelárii/detskej izbe sú vyššie stropy. Spálňa je vybavená klimatizáciou. Kúpeľňa má sprchu, vaňu, prípojku pre práčku a okno. Úložný priestor má okno. K dispozícii sú 2 terasy (južná/východná a severozápadná).
Parametre nehnuteľnosti
| Vek | Nad 50 rokov |
|---|---|
| Stav | Veľmi dobrý |
| Poschodie | 4. poschodie z 1 |
| PENB | B - Veľmi úsporné |
| Cena za jednotku | 5 495 € / m2 |
| Dostupné od | 1. 4. 2026 |
|---|---|
| Dispozícia | 3+kk |
| Číslo inzerátu | 992922 |
| Úžitková plocha | 109 m² |
Čo táto nehnuteľnosť ponúka?
| Bezbariérový prístup | |
| Garáž | |
| MHD 1 minúta pešo |
| Pivnica | |
| Výťah |
V okolí nehnuteľnosti nájdete
Stále hľadáte to pravé?
Nastavte si strážneho psa. Ponuky vybrané na mieru dostanete súhrnne 1× denne e-mailom. S Premium profilom máte po ruke rovno 5 strážcov a keď sa niečo objaví, informujú vás obratom.

























