
Predaj domu 4+1 • 120 m² bez realitky, Šlezvicko-Holštajnsko
, Šlezvicko-HolštajnskoMHD 2 minúty pešo • Parkovanie • GarážTento pôvabný radový koncový dom so split-level architektúrou z roku 1963 sa nachádza v pokojnej obytnom lokalite vo Wedeli, v príjemnej blízkosti obľúbeného rekreačného územia Klövensteen. Nehnuteľnosť stojí na priestrannom rohovom pozemku s rozlohou cca 733 m² a ponúka obytnú plochu približne 120 m², pričom v podkroví je možnosť ďalšieho využitia, čo otvára mnoho možností pre individuálne prispôsobenie. Obývacia plocha bola naposledy zmeraná v roku 1995 na cca 142 m². Aktuálny výpočet obytných priestorov ešte príde.
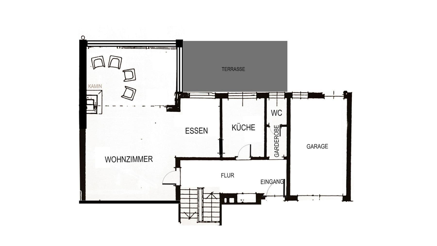
Obývacia zóna a rozloženie priestorov
Jedinečná split-level architektúra dodáva domu otvorenú a zaujímavú štruktúru s posunutými úrovňami bývania, čo vytvára pocit priestrannosti. Celkovo sú na viacerých úrovniach k dispozícii štyri izby. V dôsledku špecifickej konštrukcie je dom len čiastočne s podkroví; tri existujúce podzemné miestnosti sú zariadené pre komfortné bývanie a dajú sa rôzne využiť, napríklad ako hobby, pracovné alebo úložné priestory. Jednou z dominánt nehnuteľnosti je priestranný, svetlom naplnený obývací priestor s krbom a veľkou posuvnou sklenenou stenou, ktorá poskytuje pekný výhľad do záhrady a vytvára sviežu, priateľskú atmosféru. Z prilehlého jedálneho priestoru má kuchyňa priamy vstup na terasu – ideálne pre pohodlné každodenné využitie alebo pri hostení návštev. Na prízemí je k dispozícii aj hosťovská toaleta.
Na prvom poschodí sa nachádza priestranná spálňa, detská izba a kúpeľňa so svetlom prichádzajúcim z okien. Zo spálne je prístup na prilehlý balkon.
Druhé poschodie ponúka ďalšiu prerobenú miestnosť, ktorá sa nedávno využívala ako televízna a hosťovská izba, malý výklenok a tretiu kúpeľňu, čím poskytuje ešte viac priestoru.
Z druhého poschodia vedie na podkrovie, ktoré je už čiastočne izolované. Tu sú možnosti využitia úplne otvorené.
Pozemok a vonkajší priestor
Exteriér zaujme idylickou, starostlivo udržiavanou záhradou s veľkým dôrazom na súkromie. Juhozápadná terasa s markízou obzvlášť pozýva na oddych v popoludňajších a večerných hodinách. Okrem toho sa na pozemku nachádza aj záhradný rybník (cca 15 m²), ktorý však momentálne vyžaduje trochu starostlivosti.
Ponuku prakticky dopĺňa aj garáž s malým podkroví a najmenej jedno vonkajšie parkovacie miesto pred domom. Ulica, v ktorej sa dom nachádza, je obytná a má nízky objem premávky, čo zaručuje tiché prostredie.
Stav
V interiéri domu sú funkčne riešené kuchyňa a kúpeľne, avšak celkový stav už je v dôsledku veku a vyžaduje rekonštrukciu. Vstavaná kuchyňa (vrátane sporáka, chladničky a umývačky riadu) pochádza pravdepodobne z raných 2000-tych rokov, konkrétne údaje o modernizácii však nie sú k dispozícii.
Celkový stav nehnuteľnosti prevažne zodpovedá roku výstavby a starším modernizačným štandardom. Okná na prvom a druhom poschodí boli obnovené začiatkom 2000-tych rokov, zatiaľ čo veľké sklenené fasády v obývacej izbe pravdepodobne pochádzajú ešte z obdobia pridania prístavby (80-tych rokov). Strecha je izolovaná, no v oblasti obývacej izby je známa netesnosť, ktorú je potrebné odstrániť pri sanácii. V dôsledku dlhodobého prázdneho stavu od Veľkej noci 2025 a občasného vypnutia kúrenia došlo navyše k tvorbe vlhkosti v suteréne.
Kúrenie a energie
Dom je vykurovaný plynovým kotlom z konca 90-tych rokov, ktorého údržba prebehla naposledy v roku 2025. Okrem toho krb v obývacej izbe poskytuje príjemný alternatívny zdroj tepla a vytvára atmosféru príjemného bývania. Energetický preukaz ešte zatiaľ nie je k dispozícii, ale bude vyhotovený v rámci predaja.
Lokalita
Nehnuteľnosť sa nachádza v pokojnej, žiadanej a prevažne obytnom lokalite v mestskej časti Wedel, na severe Schleswig-Holsteinu. Ulica Haidbrook je pokojnou prístupovou cestou, kde dominujú rodinné domy a radové domy, v starostlivo udržiavanej štvrti.
Wedel sám o sebe je atraktívne malé mesto s približne 34 000 obyvateľmi priamo pri rieke Labe a patrí do metropolitnej oblasti Hamburk. Mesto je známe vysokou kvalitou života, vynikajúcou infraštruktúrou a prírodou obklopeným umiestnením.
Dopravné spojenie
Centrum Wedelu a stanica S-Bahn na linke S1 sú ľahko dostupné, pričom ponúkajú priame spojenie do Hamburku (napr. Altona a centrum) ako aj ku hamburskému letisku.
Okrem toho je rýchlo dostupná aj federálna cesta B431, čo umožňuje dobré prepojenie s regionálnou cestnou sieťou.
Infraštruktúra a služby
V bezprostrednom okolí sa nachádza množstvo obchodov pre denné potreby, lekárne, ordinácie, kaviarne a reštaurácie, ako aj rôzne služby a zásobovacie ponuky.
Materské školy, základné aj stredné školy sú tiež ľahko dostupné, čo robí lokalitu mimoriadne atraktívnou pre rodiny.
Voľný čas a rekreácia
Wedel ponúka pestrú ponuku voľnočasových aktivít:
– prechádzkové a cyklistické cesty pozdĺž rieky Labe,
– jachtový prístav s nádychom morskej atmosféry,
– rôzne športové a voľnočasové kluby,
– rekreačné oblasti ako lesné plochy a parky.
Parametre nehnuteľnosti
| Vek | Nad 50 rokov |
|---|---|
| Stav | Pred rekonštrukciou |
| Číslo inzerátu | 990724 |
| Plocha pozemku | 733 m² |
| Cena za jednotku | 4 583 € / m2 |
| Dostupné od | 17. 2. 2026 |
|---|---|
| Dispozícia | 4+1 |
| Úžitková plocha | 120 m² |
| Celkové poschodia | 2 |
Čo táto nehnuteľnosť ponúka?
| Balkón | |
| Garáž | |
| MHD 2 minúty pešo |
| Pivnica | |
| Parkovanie | |
| Terasa |
V okolí nehnuteľnosti nájdete
Stále hľadáte to pravé?
Nastavte si strážneho psa. Ponuky vybrané na mieru dostanete súhrnne 1× denne e-mailom. S Premium profilom máte po ruke rovno 5 strážcov a keď sa niečo objaví, informujú vás obratom.

































