
Predaj bytu 2+1 • 49 m² bez realitkyArnethgasse 63 Wien 16. Bezirk Wien 1160
Arnethgasse 63 Wien 16. Bezirk Wien 1160MHD 2 minúty pešo • VýťahByt je aktuálne v rekonštrukcii a bude dokončený v apríli. Všetky fotografie pochádzajú z už dokončeného bytu s rovnakým vybavením a približne rovnakým pôdorysom.
Byt zaujme premysleným koncepčným vybavením, modernou technikou a funkčným rozložením priestorov. V rámci kompletnej rekonštrukcie budú obnovené všetky inštalácie (elektrina a inštalácie), budú inštalované nové vnútorné dvere a štýlovo obložená kúpeľňa so samostatným WC – oboje vybavené modernými 30 × 60 cm keramickými obkladovými dlaždicami.
Obývacie miestnosti predstavujú elegantnú parketovú podlahu v štýle vidieckeho dreva, ktorá vytvára teplú a príjemnú atmosféru. Nové trojsklá okná a moderné LED stropné osvetlenie v predsieni, kuchyni a kúpeľni doladia premyslené interiérové vybavenie.
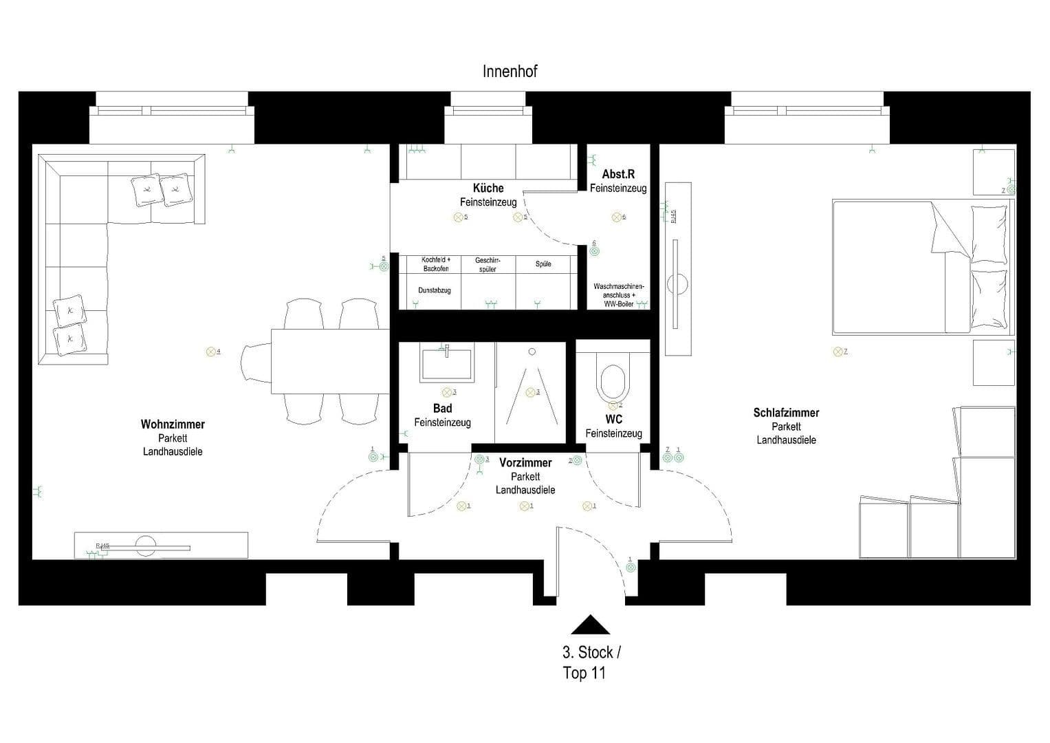
Rozloženie priestorov je prehľadne štruktúrované: Izby sú centrálne prístupné zo vstupnej časti. Odtiaľ sa dostanete priamo do spálne, obývačky, ako aj do kúpeľne a WC. Ku kuchyni je naviazaný úložný priestor s prípojkou pre práčku, čo poskytuje dodatočné úložné možnosti.
Aj praktická stránka presvedčí: K bytu patrí veľkorysý sklepný priestor pre ďalšie úložisko.
Kuchyňa je pripravená so všetkými prípojkami, takže si môžete individuálne zrealizovať svoj osobný kuchynský sen. Na požiadanie môže byť k dispozícii aj návrh kuchyne.
Nehnuteľnosť na adrese Arnethgasse 63 vyniká excelentnou dostupnosťou verejnej dopravy: V pešej vzdialenosti nájdete niekoľko možností verejnej dopravy, ktoré zaručujú priamy prístup do centra mesta a ďalších oblastí.
Dopravné spojenie:
Približne 150 m od bytu sa nachádza tramvajová zastávka „Redtenbachergasse“, ktorá vás priamo dopraví do centra mesta (Schottentor). S autobusovými linkami 46A a 46B sa rýchlo dostanete do blízkeho rekreačného parku Wilheminenberg. Aj stanica metra a rýchlaky Ottakring je vzdialená len niekoľko minút chôdze (približne 500 m). Za 7 minút cestovania dosiahnete Bahnhofcity WienWest a nákupnú ulicu Mariahilferstraße.
Nakupovacie možnosti v okolí:
Len pár minút chôdze od bytu sa nachádzajú Ottakringer Straße a Thaliastraße, jedna z najobľúbenejších miestnych nákupných ulíc v 16. obvode, kde nájdete pestrú ponuku obchodov.
Rekreačná oblasť Ottakringer Wald:
V bezprostrednom okolí bytu sa nachádza množstvo zelených útočísk, napríklad Ottakringer Wald s dobre vybudovanou sieťou chodníkov, ako aj pripojenie na mestskú turistickú trasu č. 4. Táto rekreačná oblasť ponúka množstvo lesných ihrísk, grilovacích miest a zaujímavých pamiatok, napríklad zámok Wilhelminenberg alebo Jubilejnú vežu.
HARO parketová podlaha z dubového dreva v štýle vidieckeho dreva
Moderná keramická obloha v kúpeľni, WC, kuchyni a úložnom priestore
Stropné osvetlenie s LED bodmi v predsieni, kúpeľni a kuchyni
Nové trojsklá okná
Sanitačný porcelán značky LAUFEN Pro
Sprchový systém od Grohe s teplomerom, dažďovou sprchou a ručnou sprchou
Moderná sprchová vaňa značky LAUFEN Pro
Sklo sprchového kúta s nanovrstvou a bezpečnostným sklom (ESG)
Vypínače, zásuvky a sieťové zásuvky od spoločnosti Berker
MNPV GmbH
Predaj a kúpa nehnuteľností, prenájom a realitné poradenstvo
FN 649248b
Obchodný register: Obchodný súd vo Viedni
E-mail kontakt: office (at) mnpv.at
Parametre nehnuteľnosti
| Vek | Nad 50 rokov |
|---|---|
| Stav | Po rekonštrukcii |
| Poschodie | 3. poschodie z 5 |
| PENB | C - Hospodárne |
| Cena za jednotku | 5 204 € / m2 |
| Dostupné od | 13. 4. 2026 |
|---|---|
| Dispozícia | 2+1 |
| Číslo inzerátu | 989578 |
| Úžitková plocha | 49 m² |
Čo táto nehnuteľnosť ponúka?
| Pivnica | |
| MHD 2 minúty pešo |
| Výťah |
V okolí nehnuteľnosti nájdete
Stále hľadáte to pravé?
Nastavte si strážneho psa. Ponuky vybrané na mieru dostanete súhrnne 1× denne e-mailom. S Premium profilom máte po ruke rovno 5 strážcov a keď sa niečo objaví, informujú vás obratom.





















