
Predaj domu 4+1 • 127 m² bez realitky, Severné Porýnie - Westfálsko
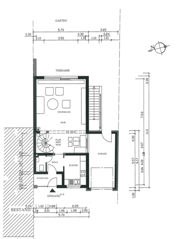
, Severné Porýnie - WestfálskoMHD 1 minúta pešo • Parkovanie • GarážVáš nový domov vstúpite cez predsieň – praktické, keď je pes mokrý a čižmy špinavé. Pokračujete do chodby, z ktorej sú prístupné hostínske WC a kuchyňa. Tieto priestory sú obložení dlažbou.
Cesta vedie priamo do obývacej/jedálenského priestoru. Tam sa nachádza masívna dubová parketa a je k dispozícii pripojenie k krbu (zobrazený krb nie je súčasťou predaja), takže si môžete počas zimy dopriať dodatočnú útulnosť.
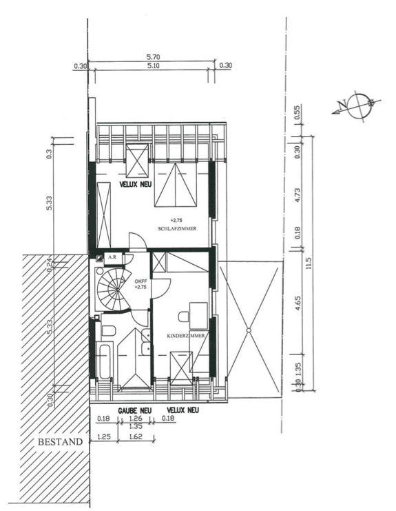
Cez krivolakové schody sa dostanete do vyšších poschodí. Na hornom podlaží sa nachádzajú dve spálne, pričom jedna z nich je veľmi veľká a môže byť v prípade potreby rozdelená na dve časti pomocou priečky. Kúpeľňa bola v roku 2018 rozsiahlo zrenovovaná a kvalitne vybavená. Bola v nej inštalovaná podlahové kúrenie. Aj horné podlažie je vybavené parketami z pravého dreva.
Zateplený podkrovný priestor ponúka dostatok miesta pre ďalšiu spálňu alebo domácu kanceláriu.
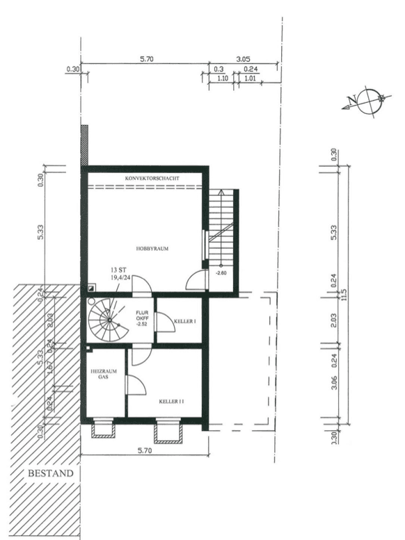
Koret disponuje veľkou miestnosťou s vlastným vstupom do záhrady, oknom a kúrením, ktorú využívame ako druhú kanceláriu. Pomocou jednoduchej priečky bol vytvorený dodatočný úložný priestor. V korete sa nachádza aj zásobáreň, práčovňa (vrátane sprchy) a malá kotolňa pre kúrenie. Pripojenie pre optické vlákno už bolo inštalované.
Z obývacej izby sa dostanete na prístrešovanú terasu a do záhrady. Záhrada bola pred dvoma rokmi oddelená od susedov oplocením a ešte prechádza úpravou – tu je tak dostatok miesta pre vaše vlastné nápady na zelenú oázu. Na zavlažovanie slúži studňa a ďalším lákadlom je tzv. rigola – jednoducho povedané, znižuje náklady na odvod dažďovej vody.
V záhrade sa nachádza aj veľká záhradná chata z masívneho dreva, ktorá však potrebuje starostlivé ruky. Táto chata patrí k domu. Keďže však stojí na novej hranici pozemku, sused na dobrovoľnej báze získal malý priestor na uskladnenie vecí. Zo záhrady máte prístup do garáže.
Pred domom sú štyri parkovacie miesta. Už žiadne zbytočné hľadanie voľného miesta – dokonca aj obytný automobil by sa tam zmestil. Kto pozná Neuss, vie, aké výhody ponúka obľúbená štvrť Reuschenberg.
Dopravné spojenie:
• Priamy prístup k diaľniciam A57 a A46.
• Dobré spojenie s MHD: Autobusové a vlakové linky sú ľahko dostupné.
Rozvoj štvrte:
Reuschenberg prechádza zmenou:
• Čoraz viac mladých rodín sa sťahuje do štvrte.
• Mnoho domov je modernizovaných.
• Všetky generácie tu žijú spoločne.
Nákupné možnosti:
• Obchody dennej potreby sú dostupné pešo.
• Veľké obchody s potravinami dosiahnete za niekoľko minút autom.
• Centrum Neussu je vzdialené približne desať minút a Rheinpark-Center je vzdialené desať minút autom.
Vzdelávacie a opatrovateľské možnosti (pre rodiny):
• V štvrti sa nachádzajú dve materské školy a dve základné školy.
• Cez diaľnicu sa rýchlo (krátky presun) dostanete do Pomony, kde nájdete ďalšie materské školy a stredné školy.
Voľný čas pre deti:
• Detská farma Selikum (dostupná pešo).
• Bazén, ľadová hala a množstvo ihrísk v bezprostrednej blízkosti.
• Reuschenberger Busch ponúka priestor na príjemné prechádzky.
Voľný čas pre dospelých:
• Oblúbené saunové centrum WellNeuss (pri Reuschenberger See) je len pár minút vzdialené.
Poloha domu:
• Dom sa nachádza v slepej uličke Lupinenstraße bez prechodnej premávky – ideálne, aby deti mohli bezpečne hrať na ulici.
• Náš pes si pravidelne užíva večerné slnečné lúče pred domom.
Týmto umiestnením získate nielen optimálnu infraštruktúru, ale aj živé prostredie pre rodiny, páry a milovníkov zvierat.
Stručne:
• Nie je to novostavba, ale osvedčený, solídne postavený dom.
• Väčšina plánovaných prác je kozmetického charakteru (maľovanie, drobné úpravy).
• Kto chce viac investovať, môže objekt samozrejme ďalej modernizovať podľa vlastných predstáv.
Prečo sme si dom zamilovali:
• Sťahovanie a pohodlie: Dom je možné ihneď obývať s minimálnym úsilím – základná konštrukcia už poskytuje útulný domov.
• Pohodlie v každom ročnom období: V zime si môžete zapáliť krb a v lete si užívať slnko v záhrade.
Rekonštrukcie a modernizácie:
• Všetky zmeny je možné realizovať počas obývania, akonáhle získate cit pre dom. Môžete sa teda najprv nasťahovať a potom zistiť, čo by ste chceli zmeniť.
• Posledná energetická obnova: rok 2003.
• Obnova horného kúpeľne: rok 2018.
Týmto dom nielen ponúka solídny základ, ale aj možnosť doladiť ho podľa vášho vlastného vkusu – bez námahy, akú prináša novostavba.
Ide o posunutý radový koncový dom. Príslušný pozemok je rozdelený podľa spoluvlastníctva na rovnaké časti – toto delenie je notársky overené.
Reálne rozdelenie pozemku by mohlo okamžite zvýšiť jeho hodnotu. Tento krok sme sa však zámerne nerozhodli uskutočniť, pretože by bolo potrebné zrútiť záhradnú chatu, ktorá stojí priamo na hranici.
Máte záujem?
• Prehliadka: Ak vás dom zaujal, neváhajte nás kontaktovať. Dohodneme si termín prehliadky.
• Vzhľadom na karnevalové dni začíname s prehliadkami od 20. februára.
• Ďalší postup: Všetky ďalšie kroky budú prebiehať na základe osobnej dohody.
Tešíme sa na váš kontakt!
Parametre nehnuteľnosti
| Vek | Nad 50 rokov |
|---|---|
| Stav | Dobrý |
| Číslo inzerátu | 988985 |
| Úžitková plocha | 127 m² |
| Celkové poschodia | 2 |
| Dostupné od | 1. 6. 2026 |
|---|---|
| Dispozícia | 4+1 |
| PENB | C - Hospodárne |
| Plocha pozemku | 404 m² |
| Cena za jednotku | 4 213 € / m2 |
Čo táto nehnuteľnosť ponúka?
| Pivnica | |
| Parkovanie | |
| Terasa |
| Garáž | |
| MHD 1 minúta pešo |
V okolí nehnuteľnosti nájdete
Stále hľadáte to pravé?
Nastavte si strážneho psa. Ponuky vybrané na mieru dostanete súhrnne 1× denne e-mailom. S Premium profilom máte po ruke rovno 5 strážcov a keď sa niečo objaví, informujú vás obratom.































