
Predaj domu 6+1 • 137 m² bez realitkyHugo-Lang-Bogen 13 München Neuperlach Bayern 81735
Tento moderný novostaviteľský radový dom ponúka približne 137 m² obytných priestorov vďaka premyslenému pôdorysu, svetlým obytným častiam a vysoko kvalitnému vybaveniu. Dom sa rozprestiera na dvoch podlažiach a ponúka ideálnu kombináciu komfortu, funkčnosti a štýlového bývania.
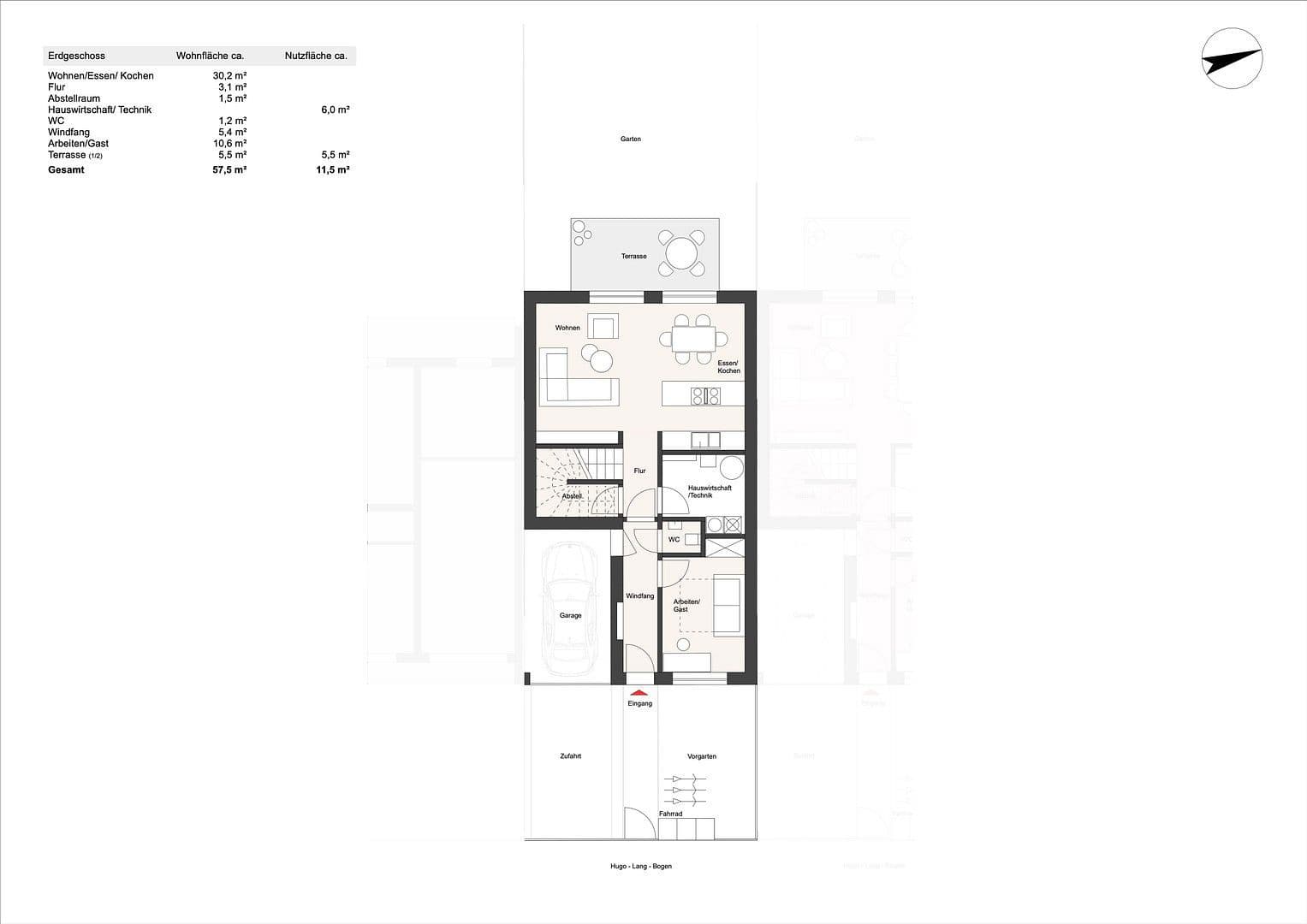
V prízemí vás privíta priestranný otvorený obývací a jedálenský priestor s otvorenou kuchyňou. Veľké okná od podlahy po strop zabezpečujú dostatok denného svetla a priamy výhľad na terasu a záhradu, čím sa interiér a exteriér harmonicky spájajú. Samostatné WC a izba pre hostí poskytujú ďalšiu flexibilitu. Integrovaná garáž, ako aj samostatná práčovňa a technická miestnosť dopĺňajú túto úroveň a zabezpečujú praktický komfort v každodennom živote.
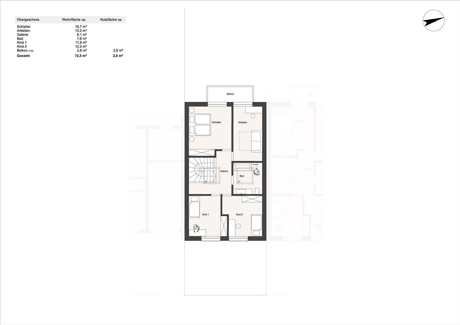
Na hornom poschodí sa nachádzajú dve detské izby, veľká rodičovská spálňa, kúpeľňa a pracovňa, ktorá môže byť flexibilne využitá ako domácia kancelária alebo hobby miestnosť. Aj tu veľké okná prispievajú k svetlej a priateľskej atmosfére.
Dom disponuje vlastnou záhradou, priestrannou terasou a balkónom s vonkajším posedením, kde si môžete vychutnať západ slnka orientovaný na západ – ideálne pre oddychové chvíle vonku.
Tento radový dom spája moderné bývanie s premyslenou architektúrou, svetlými miestnosťami a súkromným vonkajším priestorom. Kombinácia otvoreného usporiadania, veľkých okien a vysoko kvalitného vybavenia ho robí dokonalým domovom pre rodiny a páry, ktoré si cenia mestské bývanie s vysokou kvalitou života.
Nehnuteľnosť sa nachádza v urbanom a dobre dostupnom obytnom prostredí Neuperlach, ktoré zaujme krátkou vzdialenosťou k obchodom, školám a verejnej doprave. Okolie je charakteristické vyváženou zmesou moderných obytných komplexov, zelených plôch a dobre rozvinutej miestnej obchodnej infraštruktúry. Štvrť ponúka príjemnú mestskú kvalitu bývania spojenú s vysokou každodennou funkčnosťou.
V pešej vzdialenosti je k dispozícii množstvo obchodných príležitostí, supermarketov, pekární, lekární a rôznych služieb. Niekoľko materských škôl a základných škôl sa nachádza v bezprostrednom okolí, čo robí lokalitu mimoriadne atraktívnou najmä pre rodiny. Parky a zelené plochy v okolí poskytujú relaxačné útočiská a pozývajú na voľnočasové aktivity vonku.
Doprava verejnou dopravou je veľmi dobrá: Zastávka autobusu sa nachádza len niekoľko minút chôdze. Odtiaľ je rýchly prístup k staniciam metra Neuperlach Zentrum a Neuperlach Süd, ktoré poskytujú priame spojenia do centra Mníchova. Cez Karl-Marx-Ring a Zehntfeldstraße je lokalita výborne prepojená s mestskou cestnou sieťou. Diaľnica A8 a Stredný kruh sú dostupné v krátkej dobe jazdy, čo ponúka flexibilitu pre dochádzajúcich a podnikateľov.
Neuperlach patrí medzi najväčšie a najlepšie vybavené sídliská vo východnej časti Mníchova. Táto štvrť vyniká širokou ponukou nákupných centier, športových možností, zdravotnej starostlivosti a gastronómie. Zároveň existuje výborné spojenie s okolitými štvrťami aj s okolím Mníchova.
Táto lokalita ponúka dobre dostupné a každodenne funkčné obytné prostredie s vynikajúcou infraštruktúrou. Kombinácia zelených plôch, modernej mestkej výstavby a rýchlej dostupnosti robí túto adresu mimoriadne atraktívnou pre rodiny aj pre pracujúcich a podnikateľov.
Vysokokvalitné vybavenie:
• Masívna monolitická tehličková stavba pre najlepšiu tepelnú izoláciu a dlhú životnosť
• KfW 55 štandard pre nízke náklady na energiu
• Podlahové kúrenie vo všetkých miestnostiach
• Vysokokvalitný parket z masívneho dreva
• Veľkoformátové obklady v kúpeľniach a WC
• Okenné parapety z prírodného kameňa (granit)
• Elektrické rolety pre komfort a bezpečnosť
• Značkové sanitárne zariadenia od renomovaných výrobcov
Tento projekt predstavuje exkluzívnu realizáciu právne osvedčeného bývacieho konceptu – vyvinutého v úzkej spolupráci so skúsenými architektmi, certifikovanými znalcami nehnuteľností a hodnotiteľmi pozemkov, marketingovými expertmi, ako aj so stavebným poradcom a zodpovedným pracovníkom vykonávajúcej stavebnej firmy.
Pozemkové stavebné náklady, ako napríklad pripojovacie poplatky, zemné práce, demolície starej stavby alebo úprava vonkajších priestorov, sú už zahrnuté v cene domu. Výraz „kľúčové odovzdanie“ teda znamená skutočne kľúčové odovzdanie, bez toho, aby ste sa museli starať o ďalšie náklady alebo organizačné záležitosti.
Náš poradenský tím vám ponúka nezávislého finančného experta, ktorý vám vytvorí individuálne prispôsobený finančný koncept podľa vašich potrieb. Tým získate tie najlepšie trhové podmienky a optimálne využitie všetkých aktuálnych dotačných možností. Táto exkluzívna služba je pre našich klientov zahrnutá v rozsahu poskytovaných služieb a je bez poplatku.
Všetky poskytnuté informácie sú založené na údajoch od predávajúceho. Za správnosť a úplnosť týchto informácií nemožno prevziať zodpovednosť. Medzipesánia a prípadné omyly si vyhradzujeme. Vizualizácie môžu obsahovať nadštandardné vybavenie s príplatkom.
Parametre nehnuteľnosti
| Dispozícia | 6+1 |
|---|---|
| Úžitková plocha | 137 m² |
| Cena za jednotku | 9 635 € / m2 |
| Číslo inzerátu | 987614 |
|---|---|
| Plocha pozemku | 323 m² |
Čo táto nehnuteľnosť ponúka?
| Balkón | |
| MHD 1 minúta pešo |
| Garáž | |
| Terasa |
V okolí nehnuteľnosti nájdete
Stále hľadáte to pravé?
Nastavte si strážneho psa. Ponuky vybrané na mieru dostanete súhrnne 1× denne e-mailom. S Premium profilom máte po ruke rovno 5 strážcov a keď sa niečo objaví, informujú vás obratom.

















