
Prenájom bytu 2+kk • 78 m² bez realitkyHeißener Straße 88 Mülheim an der Ruhr Mülheim an der Ruhr Nordrhein-Westfalen 45468
Heißener Straße 88 Mülheim an der Ruhr Mülheim an der Ruhr Nordrhein-Westfalen 45468MHD 2 minúty pešo • VýťahPríchod. Nádych. Byť doma.
#Svetlý 2,5-izbový byt s juhozápadným balkónom a výťahom v srdci Mülheimu.
Niekedy to ucítite už pri vstupe: Tu by som mohol ostať.
Tento starostlivo udržiavaný 2,5-izbový byt v Mülheim-Eppinghofen spája mestský život s únikom do zelene – ideálny pre tých, ktorí oceňujú krátke vzdialenosti a zároveň si prajú zažiť pokoj.
Bývanie s pocitom
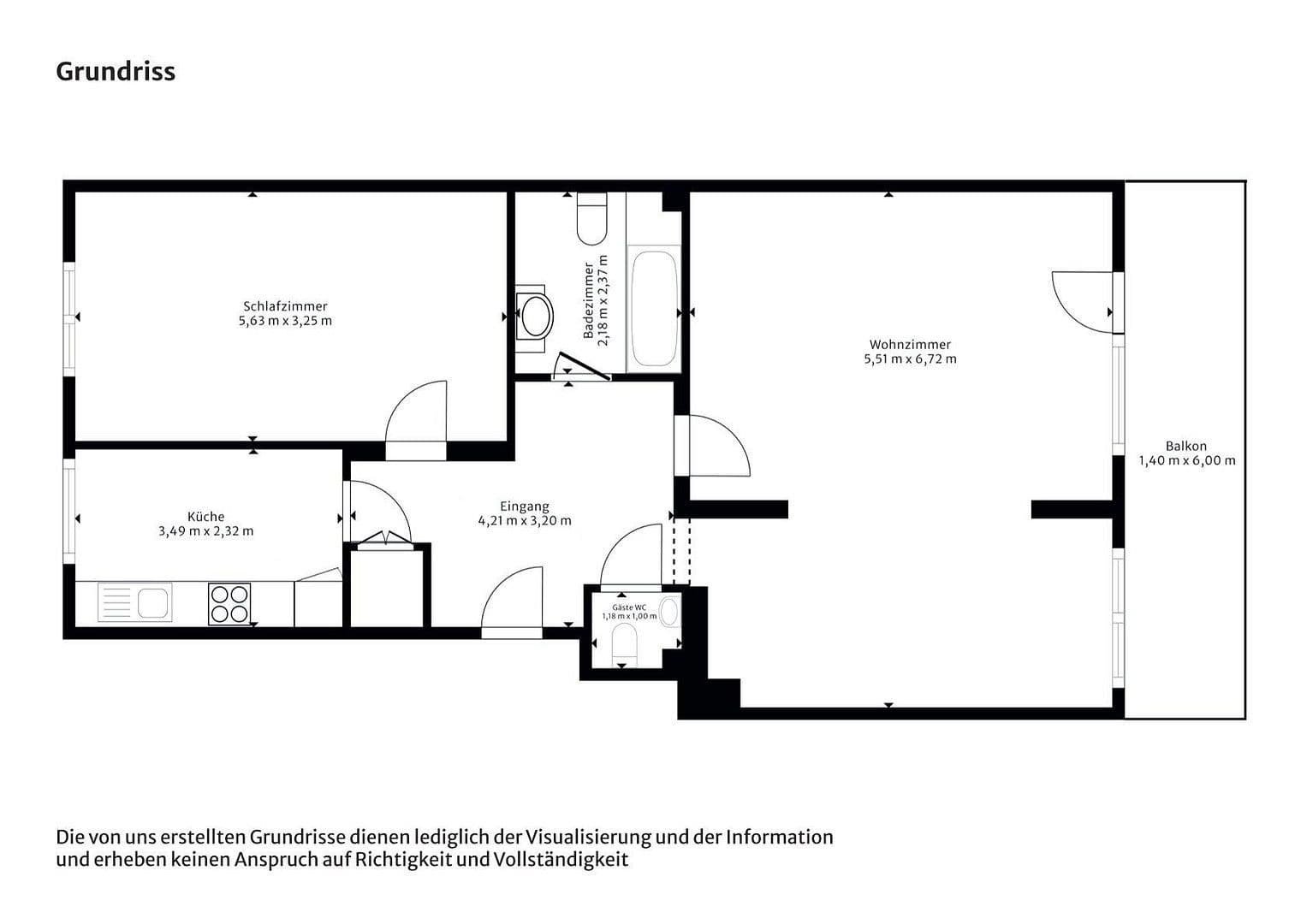
Na 77,4 m² vás čaká premyslený pôdorys s množstvom svetla a priestorom na pohodlie. Priestranná obývačka sa otvára na juhozápadný balkón, kde si môžete vychutnávať slnečné popoludnia a relaxačné večery.
Parketové podlahy v obývacej izbe a chodbe vytvárajú príjemnú atmosféru, zatiaľ čo veľká moderná kuchyňa je už pripravená na spoločné varenie, rozhovory a pôžitok.
Kúpeľňa s vaňou, samostatné hosťovské WC, úložná komora v byte aj vlastná sklepná miestnosť ponúkajú dodatočné pohodlie v každodennom živote.
Byt sa nachádza v 1. poschodí veľmi udržiavaného domu s výťahom. Obzvlášť príjemné:
Podlaha v spálni a steny budú zrekonštruované podľa vašich predstáv. Môžete si vytvoriť ďalšiu izbu oddelením časti obývačky alebo si vychutnať mimoriadne priestrannú obývačku – tu sa naozaj dá zabývať a prispôsobiť si domov.
Pre koho je tento byt ideálny?
• Pary všetkých vekových kategórií
• Malé rodiny s jedným dieťaťom
• Pracujúci alebo dôchodcovia
Žiť tam, kde je všetko nablízku
Lokalita spája to najlepšie z oboch svetov: centrálne umiestnenie a prítomnosť zelene.
Nakupovanie zvládnete pešo za pár minút, zatiaľ čo Mülheimské centrum so svojimi obchodmi, kaviarňami a reštauráciami dosiahnete pohodlne za približne 15 minút.
Či už kino, mestská hala, Ringlokschepen alebo prechádzka v MüGa parku – všetko máte doslova priamo pred dverami. Pozdĺž rieky Ruhr nájdu milovníci prírody a aktívni ľudia ideálne podmienky na prechádzky, beh či cyklistiku.
Vďaka veľmi dobrej MHD (autobus cca 500 m, hlavná stanica cca 800 m) sú rýchlo dostupné aj mestá Essen, Duisburg, Oberhausen (každé cca 20 minút) ako aj Düsseldorf (cca 30 minút) – ideálne pre dochádzajúcich do práce.
Vybavenie na prvý pohľad
• 2,5 izby, s možnosťou premeny na 3 samostatné izby
• Veľký balkón s juhozápadnou orientáciou
• Veľká, moderná vstavaná kuchyňa
• Kúpeľňa s vaňou
• Samostatné hosťovské WC
• Veľká úložná komora v byte
• Sklepná miestnosť
• Práčovňa
• Veľmi udržiavaný dom a schodisko
• Pohodlný výťah
Prečo tento byt?
Pretože ponúka viac než len obytnú plochu.
Tu si vychutnáte slnečné popoludnia na juhozápadnom balkóne, priestrannú obývačku s teplým parketom a veľkú, modernú kuchyňu, ktorá už čaká na spoločné chvíle. Miestnosti sú premyslené, dom je veľmi udržiavaný a vďaka výťahu ľahko dostupný.
Centrálna poloha uľahčuje každodenný život, zatiaľ čo zelené nádvoria, rieka Ruhr a MüGa park poskytujú rovnováhu. Obzvlášť príjemné: Byt bude zrekonštruovaný podľa vašich predstáv – domov, ktorý sa prispôsobí vášmu životu.
Teraz sa ozvite
Tento byt by mohol byť presne tým, čo hľadáte.
Neváhajte a pošlite nám už dnes svoju dopyt – tešíme sa, že vám tento krásny byt osobne ukážeme.
Parametre nehnuteľnosti
| Vek | Nad 50 rokov |
|---|---|
| Dispozícia | 2+kk |
| Číslo inzerátu | 984805 |
| Úžitková plocha | 78 m² |
| Stav | Po rekonštrukcii |
|---|---|
| Poschodie | 1. poschodie z 4 |
| PENB | D - Menej hospodárne |
| Cena za jednotku | 11 € / m2 |
Čo táto nehnuteľnosť ponúka?
| Balkón | |
| Výťah |
| Pivnica | |
| MHD 2 minúty pešo |
V okolí nehnuteľnosti nájdete


Prenájom bytuRellinghauser Straße 115 Essen Südviertel Nordrhein-Westfalen 45128- 2+kk
- 66 m²
980 € + 160 €


Stále hľadáte to pravé?
Nastavte si strážneho psa. Ponuky vybrané na mieru dostanete súhrnne 1× denne e-mailom. S Premium profilom máte po ruke rovno 5 strážcov a keď sa niečo objaví, informujú vás obratom.



















