
Prenájom bytu 3+1 • 109 m² bez realitkyHochederstraße 9 München Harlaching Bayern 81545
Hochederstraße 9 München Harlaching Bayern 81545MHD 4 minúty pešoAdresa: Hochederstraße 9
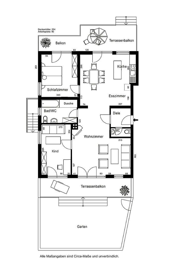
109 m² obytného priestoru s vlastnou záhradou, dvoma krytými terasami (východ & západ), hobby miestnosťou a skutočnou drevenou kachľou – len 5 minút pešo od lesa Perlacher Forst. Tento svetlý byt na vyššom poschodí spája vzťah k prírode s mestskou infraštruktúrou v jednej z najžiadanejších lokalít Mníchova, situovanej v absolútne pokojnej obytnej ulici.
Cez chodbu s vlastným WC pre hostí vstúpite do priestrannej obývacej a jedálenskej časti. Vďaka oknám od podlahy až po strop na oboch stranách je tento priestor mimoriadne svetlý a vyzýva k oddychu. V lete si vychutnáte slnko na východnej a západnej terase, zatiaľ čo v zime vám skutočná drevená kachľa zabezpečí útulnú atmosféru.
Odtiaľ sa otvárajú ďalšie miestnosti: otvorená kuchyňa bola v roku 2024 kompletne zrekonštruovaná a harmonicky zapadá do obývacej časti – ideálna pre spoločné varenie a rodinný život. Z obývacej izby potom vedú dvere do vysoko kvalitnej master kúpeľne s vaňou a samostatnou sprchou a do dvoch ďalších izieb. Ako spálňa, tak aj detská izba majú priamy prístup na vonkajší priestor – jasný plus pre rodiny.
Starostlivo udržiavaná vlastná malá záhrada je prístupná cez východnú terasu; cez západnú terasu sa dostanete do spoločného záhradného priestoru.
Ponuku dopĺňa vykurovaná hobby miestnosť (cca 11 m²) s prípojkou pre práčku v suteréne (samotný byt totiž prípojku pre práčku nemá). Miestnosť je svetlá, má okno, dlažbou krytú podlahu, drevený strop, umývadlo a prípojku pre práčku. Je uzamykateľná a kedykoľvek prístupná.
K bytu nepatrí vlastné parkovacie miesto; v pokojnej obytnej ulici sú však dobré parkovacie možnosti.
*************
Prehliadky bytu sa konajú 20. / 21. februára. Presný termín obdržíte po pozitívnej odozve na vašu dopyt.
Mestska štvrť Harlaching/Menterschwaige patrí medzi najexkluzívnejšie obytné oblasti na juhu Mníchova. Vyvýšená terasa susedí na západe priamo s rozľahlými Isarauen a východným brehom rieky Isar. Na juhu sa mestské hranice plynule spájajú smerom k Grünwaldu a na juhovýchode sa k bytu pripája jeden z najväčších lesných areálov Mníchova, Perlacher Forst.
V bezprostrednom okolí sa nachádza množstvo obchodov, reštaurácií, kaviarní, pivných záhrad, lekární a ambulancií. Všetky dôležité vzdelávacie inštitúcie – od materských škôl cez základné školy až po dve gymnáziá – sú pohodlne dostupné.
Doprava je výborná: Mníchovské centrum dosiahnete autom za približne 15 minút. Tramvajové linky 15 a 25 ako aj metro linky U1 a U2 zabezpečujú dobré spojenie s verejnou dopravou. Cez diaľničný okruh východ (A99) existuje aj rýchle regionálne spojenie na letisko Mníchov a do predalpských regiónov.
Na voľný čas a šport ponúka okolie mimoriadne širokú ponuku: tenis, jazda na koni, záhrada Hellabrunn, ako aj množstvo trás na beh, bicykel alebo prechádzky pozdĺž rieky Isar a v Perlacher Forst. Isarauen a breh rieky sú dostupné pešo za pár minút a ponúkajú ideálne podmienky pre prírodný odpočinok a rodinné aktivity.
Na prvý pohľad:
Slnko od východu až po západ
- Raňajky na východnej terase
- Večera na západnej terase
- Obe kryté a priestranne navrhnuté
Útulná atmosféra
- Drevená kachľa v obývacej časti (nie elektrická imitácia!)
- Okna od podlahy až po strop na oboch stranách
- Parket (obnovený v rokoch 2019/2020)
Ideálne pre rodiny
- Navyše spoločný záhradný priestor
- 2 kúpeľne (master kúpeľňa + WC pre hostí)
- Pokojná obytna ulica, nie priechodová
Vybavenie bytu:
- dve priestranné, kryté terasy (východ/západ)
- vlastná záhrada (s právom na exkluzívne využitie)
- navyše spoločný záhradný priestor
- vysoko kvalitné a moderné vybavenie
- otvorená obývacia kuchyňa
- zabudovaná kuchyňa (rekonštruovaná v roku 2024) s kuchynským ostrovom, keramickou varnou doskou, umývačkou riadu, rúrou a kombináciou chladničky s mrazničkou
- drevená kachľa v obývacej miestnosti
- master kúpeľňa s vaňou a samostatnou sprchou
- WC pre hostí
- parketová podlaha, modernizovaná v roku 2026
- hobby miestnosť
Poznámka:
Byt sa prenajíma nenamietkovane. Zobrazený nábytok slúži výlučne ako príklad zariadenia. 3D vizualizácie sú ilustračné a môžu sa líšiť od skutočného stavu bytu.
Parametre nehnuteľnosti
| Vek | Nad 50 rokov |
|---|---|
| Stav | Po rekonštrukcii |
| Číslo inzerátu | 984606 |
| Úžitková plocha | 109 m² |
| Dostupné od | 1. 3. 2026 |
|---|---|
| Dispozícia | 3+1 |
| PENB | D - Menej hospodárne |
| Cena za jednotku | 22 € / m2 |
Čo táto nehnuteľnosť ponúka?
| Pivnica | |
| Terasa |
| MHD 4 minúty pešo |
V okolí nehnuteľnosti nájdete
Stále hľadáte to pravé?
Nastavte si strážneho psa. Ponuky vybrané na mieru dostanete súhrnne 1× denne e-mailom. S Premium profilom máte po ruke rovno 5 strážcov a keď sa niečo objaví, informujú vás obratom.























