
Predaj bytu 3+kk • 87 m² bez realitkyGelsenkirchen Horst Nordrhein-Westfalen 45899
Gelsenkirchen Horst Nordrhein-Westfalen 45899MHD 5minút pešo • Výťah • GarážVitajte vo vašom novom domove v Gelsenkirchen-Horst – modernom, bezbariérovom 3,5-izbovom byte, ktorý ideálne spája svetlo, komfort a funkcionalitu. Dva kryté balkóny (balkón + loggia), kvalitné podlahové kúrenie a okná od podlahy po strop vytvárajú príjemný pocit z bývania s množstvom denného svetla a priestorom na oddych.
Tu si vychutnáte tiché bývanie s krátkymi vzdialenosťami – ideálne pre páry, malé rodiny alebo ľudí, ktorí kladú dôraz na bezbariérové, komfortné bývanie.
Rozloženie a vybavenie
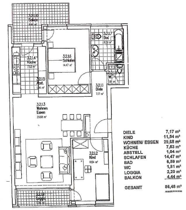
Byt o rozlohe 86,48 m² zaujme starostlivo premysleným rozložením:
• Priestranná obývacia izba s jedálenskou časťou – svetlá, otvorená a s prístupom na malý balkón
• Spálňa s oknami od podlahy po strop a prístupom na veľký balkón
• Detská alebo hosťovská izba s balkónovými dverami
• Samostatná kuchyňa (so spotrebičmi, recirkulačným odsávačom, vonkajším odťahom)
• Kúpeľňa s prirodzeným denným svetlom, vybavená sprchou (Grohe Regendusche, 2021), vaňou s masážnou funkciou a dvoma oknami
• Hosťovské WC s odsávacím ventilátorom
• Chodba s komfortným rozložením
Celý byt je vybavený podlahovým kúrením.
Všetky okná majú elektrické žalúzie (nové 2021), pričom kúpeľňa disponuje manuálnymi roletami s popinákom.
Dva balkóny pre každý okamih dňa
Kryté balkóny rozširujú váš obytný priestor do exteriéru:
• Menší balkón (z obývačky a detskej izby) je ideálny na rannú kávu.
• Veľký balkón (z kuchyne a spálne) ponúka priestor pre útulný kútik na sedenie alebo jedálenský stôl pre štyroch – perfektný pre teplé letné večery.
Komfort v každodennom živote
• Miesto v podzemnej garáži s wallboxom (11 kW, 2023) priamo pri vstupe – pohodlné nastupovanie a vystupovanie zaručené
• Skladová miestnosť (5,48 m²) a priestor pre umiestnenie práčky a sušičky
• Spoločná záhrada s pieskoviskom a miesta na sedenie
• Úložisko na bicykle a výťah k dispozícii
• DSL a káblové pripojenie vrátane diaľkového odpočtu meračov
Modernizácie a stav
Byt bol pravidelne modernizovaný a nachádza sa vo veľmi udržiavanom, ihneď nasťahovateľnom stave:
• 2021: elektrické žalúzie, nové podlahy (v obývačke, spálni a detskej izbe), sprchový systém (Grohe)
• 2023: wallbox v podzemnej garáži
• 2025: digitálny merač elektriny
• Podaná žiadosť o balkónovú solárnu elektráreň (orientácia na východ, cca 500–600 kWh ročne) – možnosť vlastného využitia
Spoločenstvo vlastníkov je veľmi dobre zorganizované:
Veľmi dobrá rezerva na údržbu zabezpečuje dlhodobú istotu.
Mesačný poplatok za správu domu (vrátane kúrenia, vody, rezervy, výťahu, upratovania chodieb, čistenia podzemnej garáže, zimnej údržby, starostlivosti o záhradu) je 476,00 € pri aktuálnom počte troch osôb.
Záver
Tento byt spája komfort, kvalitu a vynikajúcu polohu.
Brezbariérovosť, moderné vybavenie, dva balkóny a miesto v podzemnej garáži s wallboxom z neho robia ideálny domov pre náročných kupujúcich, ktorí si cenia udržiavané, bezstarostné bývanie.
Tu vás nečaká žiadny kompromis, ale byt, ktorý spája komfort a radosť zo života.
Centrálne a zelené
Gelsenkirchen-Horst zaujme príjemnou kombináciou prírody, kultúry a mestských vymožeností.
Historický zámok Horst s parkom, komunitným centrom a mestskou knižnicou sa nachádza len pár minút chôdze.
Obchody ako Netto, Rossmann, dm, Penny a REWE sú pohodlne dostupné pešo.
Školy, materské školy, lekári a lekárne sú v bezprostrednej blízkosti.
Zastávka Schloss Horst (cca 6 minút pešo) ponúka spojenie do Essenu, Bottropu, Gladbecku a centra Gelsenkirchen.
Blízky Nordsternpark pozýva na prechádzky, cyklistiku a kultúrne podujatia – skvelá ponuka pre oddych a voľný čas.
Hlavné prednosti na prvý pohľad
• Bezbariérový, svetlý 3,5-izbový byt
• Dva kryté balkóny
• Miesto v podzemnej garáži s 11 kW wallboxom
• Podlahové kúrenie vo všetkých miestnostiach
• Moderné kúpeľňové vybavenie s regenduschem a vaňou s whirlpool funkciou
• Udržiavané spoločenstvo vlastníkov s vysokou rezervou
• Centrálna poloha v Gelsenkirchen-Horst – všetko dostupné pešo
• Podaná žiadosť o balkónovú solárnu elektráreň (2025)
Kompletný balík bez starostí vrátane upratovania chodieb, čistenia podzemnej garáže, zimnej údržby a výťahu
Parametre nehnuteľnosti
| Vek | Nad 50 rokov |
|---|---|
| Dispozícia | 3+kk |
| Číslo inzerátu | 979683 |
| Úžitková plocha | 87 m² |
| Stav | Dobrý |
|---|---|
| Poschodie | 2. poschodie |
| PENB | C - Hospodárne |
| Cena za jednotku | 2 759 € / m2 |
Čo táto nehnuteľnosť ponúka?
| Balkón | |
| Pivnica | |
| Výťah |
| Bezbariérový prístup | |
| Garáž | |
| MHD 5 minút pešo |
V okolí nehnuteľnosti nájdete

Predaj bytuNachbarsweg 7 Mülheim an der Ruhr Saarn Nordrhein-Westfalen 45481- 3+1
- 95 m²
229 000 € + 260 €

Stále hľadáte to pravé?
Nastavte si strážneho psa. Ponuky vybrané na mieru dostanete súhrnne 1× denne e-mailom. S Premium profilom máte po ruke rovno 5 strážcov a keď sa niečo objaví, informujú vás obratom.




















