
Prenájom bytu 4+1 • 100 m² bez realitkyHradeckých, Praha - Nusle
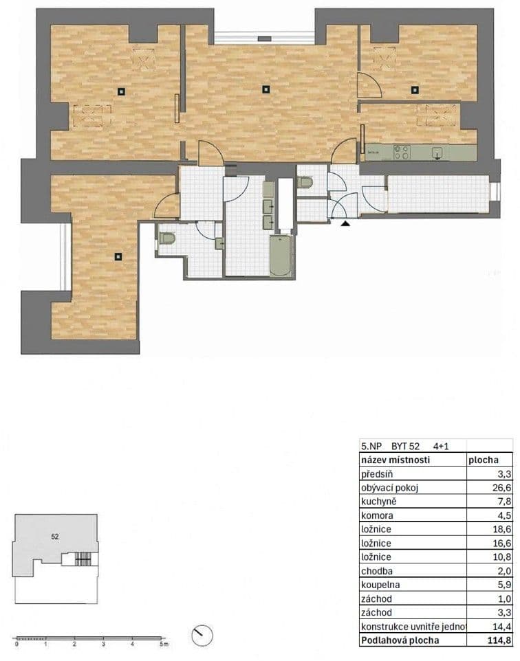
Nabízím k pronájmu velmi pěkný a prostorný byt 4+1 v 5. patře činžovního domu (cihla), 100 m2, podkroví, bez výtahu, bez balkonu, zařízený nábytkem, max. pro 4 dospělé osoby. V bytě jsou neprůchozí pokoje.
Praha 4, metro Pražského povstání;
Kuchyňská linka je vybavena sklokeramickou varnou deskou, elektrickou troubou, mikrovlnnou troubou, myčkou a lednicí s mrazákem.
Koupelna s vanou a se sprchovou zástěnou, 2x umyvadlo, 2x samostatné WC, 5.pokoj nebo skladovací komora. K dispozici je pračka a sušička.
Podlahy plovoucí a dlažba. Okna plastová trojskla z roku 2025, s roletami. Střešní okna stíněná vně roletou a uvnitř termožaluzií.
K dispozici je společná zahrada.
Parkování na ulici, modrá a fialová zóna 8:00-20:00.
Dům se nachází v bezprostřední blízkosti metra, 10 minut chůze do zeleně (Kavčí hory, Vyšehrad). Lokalita s dobrou občanskou vybaveností (Tesco, Penny, OC Arkády) a dopravní dostupností MHD.
K nastěhování ihned.
Energetický štítek budovy G, budova z roku 1937
Nájem: 35.000,-
Poplatky (voda, el, plyn, odpad, úklid): 4.860,-
Kauce: 1 měsíční nájem
Pro více informací a sjednání prohlídky mne prosím kontaktujte skrz zprávy či komunikační platformu.
Parametre nehnuteľnosti
| Dostupné od | 5. 1. 2026 |
|---|---|
| Výstavba budov | Tehla |
| Vybavené | Vybavené |
| Číslo inzerátu | 977720 |
| Úžitková plocha | 100 m² |
| Stav | Veľmi dobrý |
|---|---|
| Dispozícia | 4+1 |
| Poschodie | Prízemie |
| Umiestnenie | Stredisko |
| Cena za jednotku | 350 CZK / m2 |
Čo táto nehnuteľnosť ponúka?
| Parkovanie |
V okolí nehnuteľnosti nájdete
Stále hľadáte to pravé?
Nastavte si strážneho psa. Ponuky vybrané na mieru dostanete súhrnne 1× denne e-mailom. S Premium profilom máte po ruke rovno 5 strážcov a keď sa niečo objaví, informujú vás obratom.


















