
Prenájom bytu 4+kk • 110 m² bez realitkyČeskoslovenské armády, Praha - Bubeneč
Dovoluji si nabídnout k dlouhodobému pronájmu nadstandardní rekonstruovaný byt v 2.p. bytového domu s výtahem v Bubenči. K nastěhování 1.3.2026.
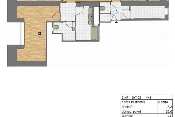
Dispozice 4+kk (+ vstupní hala, komora). Celková podlahová plocha 110m2. Dispozice viz přiložený plánek.
Vybavení: vstupní dvoukřídlové dveře s bezpečnostním systémem Next (zasunovací závory, vestavné panty). Ústřední topení s tělesy Korado s temostatickými hlavicemi, kondenzační kotel Bosch se zásobníkem teplé užitkové vody, teplota řízena prostorovým termostatem v pokoji.
Kuchyně IKEA : vestavěné spotřebiče – myčka Bosch, záruka do 10/2028, sklokeramická varná deska, trouba, mikrovlnná trouba, digestoř s venkovním odtahem. Volně stojící 70 cm kombinovaná chladnice Bosch a dvě samostatné skříňky. Vestavná 5-dílná skříň se zrcadly a nástavci v ložnici. Umyvadlo, sprchový kout v koupelně, s prostorem pro připojením 60 cm pračky.
Zrcadlo a věšáková stěna ve vstupní hale. Úložná dvoudveřová skříň v komoře. Okna z kuchyně a obýváku jsou orientována do ulice, obě ložnice do klidného dvora. Všechny místnosti mají osvětlovací tělesa, plovoucí laminátové podlahy, dlažby v koupelně a WC, okna s trojskly, garnyže, závěsy a záclony.
Byt bude předán se zařízením dle popisu výše.
Přípojka internetu/TV exUPC Vodafone, přívod dle potřeby lze volit do všech místností.
Bytový vodoměr. Balkon společný s protilehlým bytem orientovaný do dvora pro případné sušení prádla. Parkovací místo pro jeden vůz ve dvoře. Kamerový záznamový systém ze dvora a domu, vstup do domu přes čipy, domácí telefon ke vstupu, poštovní schránka. Zákaz : kouření v bytě a chování velkého psa.
Cena pronájmu: 37.900,- Kč za měsíc, záloha na služby 800,-Kč/osobu/měsíc, elektroměr a plynoměr je umístěn na spol. chodbě a bude převeden na nájemníka. Jednoměsíční kauce 38.900,- + výše záloh služeb dle počtu osob, slouží i jako rezervace před podpisem NS.
Pozn: - možnost pronájmu samostatné zděné suché uzamykatelné místnosti 2,7 m2 (sklepa) v suterénu domu za 600,- Kč/měsíc
Vyúčtování záloh do března následujícího roku, při vyšší spotřebě vody než 30 m3/os./rok je nutné zálohu navýšit.
Prohlídky a podpis NS přímo s jediným majitelem domu.
Pozn.: Ulice Čs. armády kolem domu bude revitalizována pro další snížení dopravy, vč. úpravy chodníků, laviček, výsadby stromů, apod., viz :
https://praha6.cz/cs/assets/rozvoj_uzemni_plan/prilohy/a_pruvodni_zprava_0370d5081d.pdf
https://praha6.cz/rozvoj-uzemni-plan/rozvoj_21_66287.html
Parametre nehnuteľnosti
| Dostupné od | 1. 3. 2026 |
|---|---|
| Výstavba budov | Tehla |
| Vybavené | Čiastočne |
| Číslo inzerátu | 695983 |
| PENB | G - Mimoriadne nehospodárne |
| Úžitková plocha | 110 m² |
| Stav | Veľmi dobrý |
|---|---|
| Dispozícia | 4+kk |
| Poschodie | 2. poschodie |
| Vlastníctvo | Osobné |
| Umiestnenie | Tichá časť |
| Cena za jednotku | 345 CZK / m2 |
Čo táto nehnuteľnosť ponúka?
| Balkón 2 m² | |
| Výťah | |
| MHD 1 minúta pešo |
| Pivnica | |
| Parkovanie |
V okolí nehnuteľnosti nájdete
Stále hľadáte to pravé?
Nastavte si strážneho psa. Ponuky vybrané na mieru dostanete súhrnne 1× denne e-mailom. S Premium profilom máte po ruke rovno 5 strážcov a keď sa niečo objaví, informujú vás obratom.




















