
Predaj bytu 2+1 • 66 m² bez realitkyAm Weiher Unterschleißheim Unterschleißheim Bayern 85716
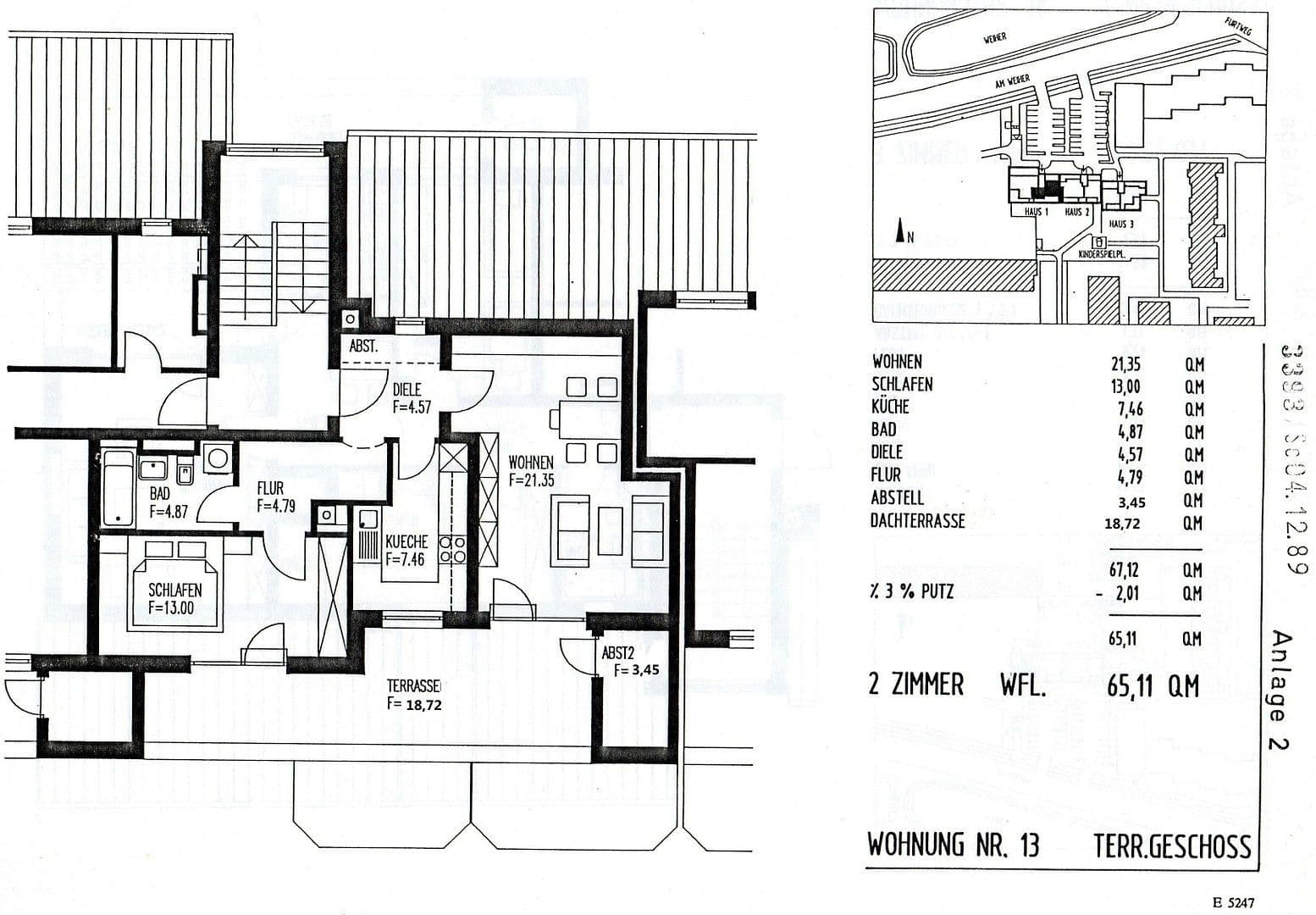
Celková plocha 78,2 m² (strešná terasa a úložný priestor počítané len napol) zodpovedá 65,11 m² obytného priestoru.
Kúpna cena na rokovanie 399 500,-; mesačný poplatok bytu 362 €
Parkovacie miesto v podzemnej garáži: 25 500,-; mesačný poplatok podzemnej garáže 26 €
Novo zrekonštruovaná podzemná garáž
Energetická spotreba: 135,4 kWh
Dvojizbový byt sa nachádza v treťom z troch poschodí udržiavaného viacrodinného domu so 34 byty, postaveného v roku 1990.
V blízkosti rekreačnej oblasti/kúpaliska.
Obývacia izba a spálňa s priamym vstupom na strešnú terasu
Kuchyňa: Kvalitná zabudovaná ALNO kuchyňa v tvare U je vybavená elektrickou sporákom/keramickou doskou, digestořou, umývačkou riadu, kombinovanou chladničkou/mrazničkou a veľkým oknom smerom na terasu.
Spálňa cca 13 m² s veľkou skriňou (rozmery cca 240/230/60 cm – šírka/výška/hĺbka)
Kúpeľňa: vaňa, umývadlo, WC, pripojenie pre práčku
Obývacia izba cca 22 m²
Vlastná pivnica cca 6 m²
Veľmi slnečná strešná terasa cca 22 m² je orientovaná na juh/západ a disponuje samostatným úložným priestorom.
Všetky okná majú žalúzie.
Spoločný pivničný priestor pre bicykle, mincové práčky a sušičky.
Parametre nehnuteľnosti
| Vek | Nad 50 rokov |
|---|---|
| Stav | Dobrý |
| Poschodie | 3. poschodie z 3 |
| PENB | E - Nehospodárne |
| Cena za jednotku | 6 053 € / m2 |
| Dostupné od | 22. 12. 2025 |
|---|---|
| Dispozícia | 2+1 |
| Číslo inzerátu | 975005 |
| Úžitková plocha | 66 m² |
Čo táto nehnuteľnosť ponúka?
| Pivnica | |
| MHD 7 minút pešo |
| Garáž | |
| Terasa |
V okolí nehnuteľnosti nájdete
Stále hľadáte to pravé?
Nastavte si strážneho psa. Ponuky vybrané na mieru dostanete súhrnne 1× denne e-mailom. S Premium profilom máte po ruke rovno 5 strážcov a keď sa niečo objaví, informujú vás obratom.















