
Predaj bytu 3+1 • 100 m² bez realitkyTogostr. Berlin Wedding Berlin 13351
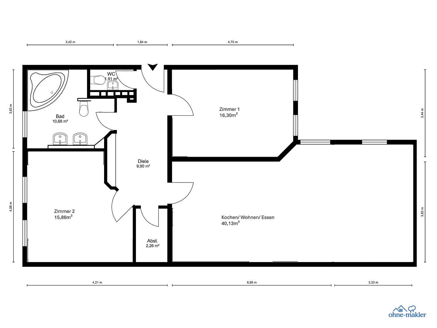
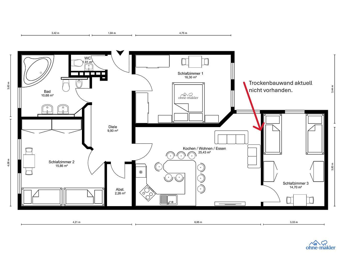
Togostr. Berlin Wedding Berlin 13351MHD 3 minúty pešoTento štýlovo modernizovaný byt v historickej budove sa nachádza v 3. nadzemnom podlaží pokojného záhradného domu v berlínskeho obytného zoskupenia na Togostraße (v blízkosti Seestr.) s perfektným dopravným spojením. Vďaka oknám na oboch stranách je byt krásne svetlý. S obytnou plochou 100 m² a flexibilným pôdorysom momentálne ponúka tri priestranné izby vrátane obývacej kuchyne – návrat k pôvodnému rozdeleniu na 4 izby je v obývačke bez problémov možný jednoduchej priehradou zo sádrokartónu.
Byt bol komplexne zrekonštruovaný v roku 2009 a spája kúzlo starostavby s komfortom novostavby. Dlaždice a parkety, omietnuté steny, oddelený stropný prvok s nepriamym osvetlením a moderné okná vytvárajú elegantnú obytnú atmosféru. Priestranná kúpeľňa ponúka sprchu a rohovú vaňu. Kuchyňa môže byť využitá ako obývacia kuchyňa, alebo môže byť zabudovaná v priestrannom spálni – príslušné prípojky sú k dispozícii.
Ulica Togostraße je pokojnou cyklistickou ulicou v srdci Berlína, Wedding, obklopenou ihriskami, zelenými plochami a kultúrnymi zariadeniami, ako sú galérie a kaviarne. Dopravné spojenie je výborné: linka metra U6 (Seestraße) a električka M13 sú vzdialené len 500 m. Nájazd na diaľnicu cez Seestraße zabezpečuje rýchle pripojenie autom. Nakupovacia zóna Müllerstraße a parky Rehberge, Schillerpark a Plötzensee s kúpaliskom sa nachádzajú v bezprostrednej blízkosti.
3–4 izby (flexibilný pôdorys)
Veľká kúpeľňa s denným svetlom + hostinská toaleta
Úložná komora + vstavaná skriňa
Sklad v pivnici (cca 10 m²)
Rok výstavby: 1910, modernizácia: 2009
Virtuálna prehliadka: Matterport 3D tour
Obývacia izba s množstvom svetla a priestoru:
Priestranná obývacia časť s bielymi dlaždicami, viacerými oknami a integrovaným stropným osvetlením – ideálna pre spoločenské chvíle alebo ako kombinovaný obývací/jedálenský priestor.
Moderná kuchyňa s ostrovom a kvalitnými spotrebičmi:
Otváracia zabudovaná kuchyňa s tmavou pracovnou doskou, bielymi frontami a varnou linkou – perfektná pre nadšených kuchárov a rodiny.
2x svetlé spálne alebo kancelária s parketami:
Veľa denného svetla cez dve okná, príjemný teplý odtieň dreva na podlahe – flexibilne využiteľné ako spálňa, kancelária alebo detská izba.
Priestranná kúpeľňa s komfortným vybavením:
Dvojité umývadlo, vaňa a sprcha, okno prinášajúce denné svetlo a moderné dlaždice – skutočný klenot.
Chodba s úložným priestorom a osvetlením:
Priestranný vstupný priestor so vstavanou skriňou a integrovaným osvetlením – funkčný a štýlový.
Zelený nádvorie s cyklostojanmi:
Pokojný dvor so sedacími miestami, stromami a „Kreuzberger Bügeln“ pre bicykle – mestské bývanie s možnosťou oddychu.
Hostinská toaleta a úložná komora sú k dispozícii.
Byt sa predáva priamo majiteľkou – bez provízie. Je ideálny pre rodiny, páry alebo ako štýlový mestský byt s možnosťou home office. Pokojný nádvorie, flexibilné rozloženie priestorov a vysoko kvalitné vybavenie robia z tejto ponuky zriedkavú príležitosť v centrálnej lokalite.
Parametre nehnuteľnosti
| Vek | Nad 50 rokov |
|---|---|
| Dispozícia | 3+1 |
| Číslo inzerátu | 974882 |
| Úžitková plocha | 100 m² |
| Stav | Po rekonštrukcii |
|---|---|
| Poschodie | 3. poschodie |
| PENB | D - Menej hospodárne |
| Cena za jednotku | 4 800 € / m2 |
Čo táto nehnuteľnosť ponúka?
| Pivnica |
| MHD 3 minúty pešo |
V okolí nehnuteľnosti nájdete
Stále hľadáte to pravé?
Nastavte si strážneho psa. Ponuky vybrané na mieru dostanete súhrnne 1× denne e-mailom. S Premium profilom máte po ruke rovno 5 strážcov a keď sa niečo objaví, informujú vás obratom.




























