
Predaj domu 3+1 • 112 m² bez realitkyHamburg Bramfeld Hamburg 22175
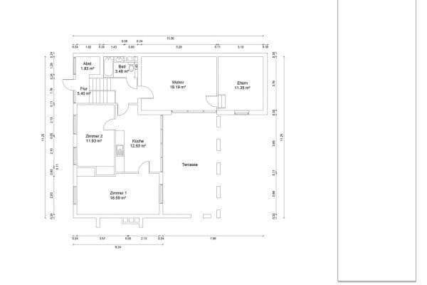
Tento pôvabný radový dom v obľúbenom hamburskom mestskom štvrti Bramfeld ponúka ideálne podmienky pre páry s jedným dieťaťom, ktoré si cenia moderný domov so záhradou. Na ploche približne 111 m² obytného priestoru, z toho okolo 32 m² v zariadenej podkroví, sa otvára premyslený koncept miestností s dostatkom priestoru pre život, prácu a relaxáciu.
V prízemí tvorí otvorená obývacia, jedálenská a kuchynská časť srdce domu. Veľké okná zabezpečujú svetlú a priateľskú atmosféru a vytvárajú priamy prechod na slnečnú juhozápadnú terasu a do záhrady – ideálne pre spoločné popoludnia, hry na čerstvom vzduchu alebo pokojných večerov.
Poschodie ponúka dve dobre usporiadané spálne a modernú kúpeľňu s vaňou – ideálne ako izba pre rodičov a dieťa. Zariadená podkrovie je výborná ako home office, herňa alebo osobný útočisko.
Ďalší komfort poskytuje plne využiteľný suterén s ďalšou sprchovacou kúpeľňou, ktorý sa optimálne dá využiť ako priestor pre hostí, prácu alebo koníčky. Tento atraktívny dom dopĺňa aj garáž v pešej vzdialenosti, ktorá vám umožní pohodlné parkovanie.
Pokojná, zelená obytná lokalita v Hamburgu-Bramfeld s vynikajúcou infraštruktúrou. Obchodné možnosti, materské školy a školy sú pešo dostupné. Veľmi dobré spojenie MHD zabezpečuje nedaleká autobusová linka 17 s rýchlou dostupnosťou na linku U1 a do centra mesta. V bezprostrednej blízkosti nájdete početné parky, športové a rekreačné možnosti.
Ročne sa platí členský príspevok vo výške približne 125,00 EUR do WOHNGEMEINSCHAFT KARLSHOHE e.V. Tento členský príspevok zostáva platný aj pri zmene vlastníka.
Parametre nehnuteľnosti
| Vek | Nad 50 rokov |
|---|---|
| Dispozícia | 3+1 |
| PENB | E - Nehospodárne |
| Plocha pozemku | 106 m² |
| Cena za jednotku | 3 741 € / m2 |
| Stav | Po rekonštrukcii |
|---|---|
| Číslo inzerátu | 972836 |
| Úžitková plocha | 112 m² |
| Celkové poschodia | 3 |
Čo táto nehnuteľnosť ponúka?
| Pivnica | |
| Terasa |
| MHD 5 minút pešo |
V okolí nehnuteľnosti nájdete
Stále hľadáte to pravé?
Nastavte si strážneho psa. Ponuky vybrané na mieru dostanete súhrnne 1× denne e-mailom. S Premium profilom máte po ruke rovno 5 strážcov a keď sa niečo objaví, informujú vás obratom.














