
Predaj bytu 4+kk • 92 m² bez realitkySokolovská, Praha - Karlín
Sokolovská, Praha - KarlínČiastočne vybavené • Balkón 4 m²Nabízíme k prodeji prostorný a útulný byt 4+kk o celkové výměře 92,29 m² (včetně balkonu). Byt se nachází v 1. a 2. nadzemním podlaží kompletně rekonstruovaného činžovního domu v samém centru Karlína.
Jsme umělecky založená rodina a byt jsme si upravovali tak, aby byl krásný, praktický a příjemný k životu. Najdete tu ručně vyráběné mozaiky v kuchyni a na parapetech, spoustu dřeva, krbová kamna a další detaily, které vytvářejí příjemnou atmosféru.
Díky promyšleným úložným prostorům a velké knihovně je byt ideální i pro rodiny. Po domluvě je možné ponechat veškeré vybavení včetně piana.
Byt je orientovaný do zadní části dvora. Sousedé vstupují schodištěm v přední části domu, což zajišťuje soukromí a tiché prostředí. Přesto jste v centru dění – dvě minuty od metra, tramvají i veškeré občanské vybavenosti.
K dispozici je satelitní připojení (vhodné například pro cizince). Dům je zabezpečen kamerovým systémem.
Ve dvoře lze krátkodobě parkovat při vykládání nákupu atd. Po domluvě je možné dlouhodobě pronajmout jedno parkovací místo. Ve dvoře jsou pouze tři, takže je zde minimální provoz. Jinak klasicky parkování na ulici.
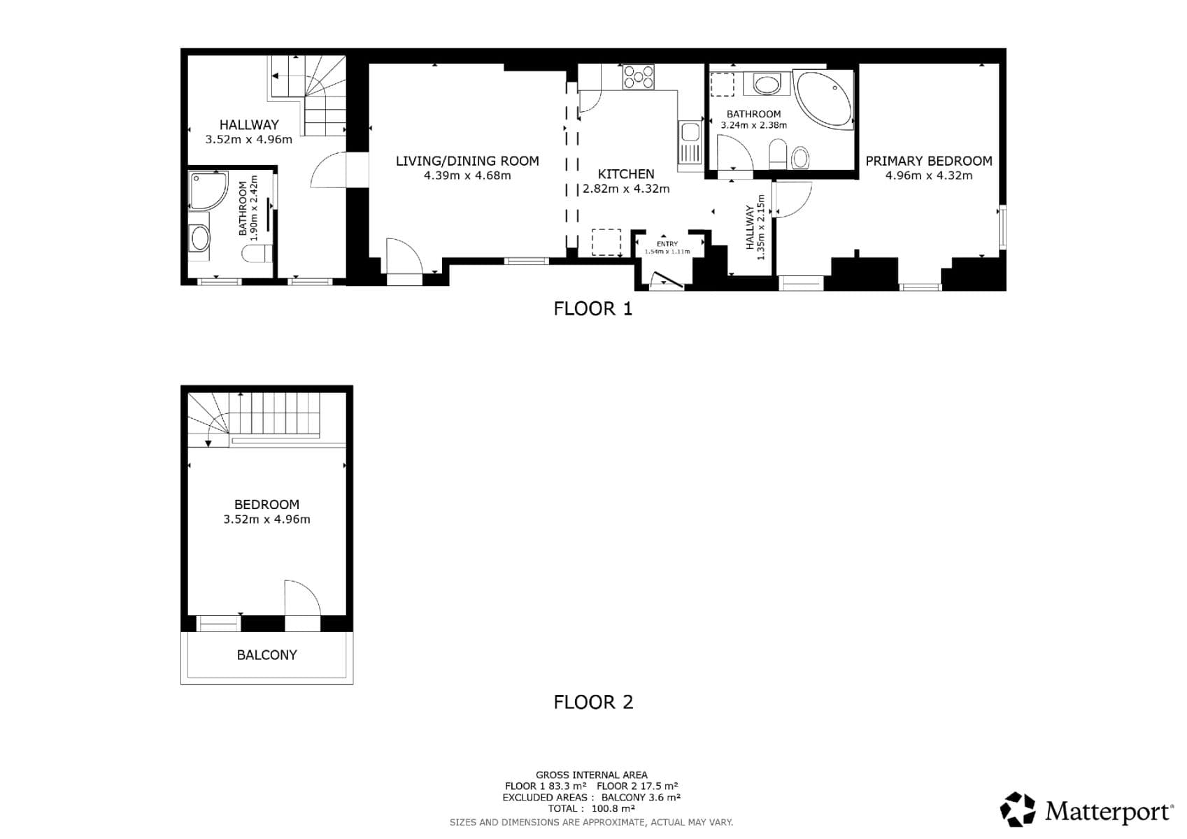
Dispozici bytu si nejlépe představíte v přiloženém plánku ve fotogalerii.
Díky rozložení místností je možné byt také stavebně rozdělit na dvě jednotky 2+kk, což může být zajímavé z investičního hlediska.
Karlín nabízí skvělé možnosti pro každodenní život. Vše je v docházkové vzdálenosti – školy, školky, kavárny, restaurace i řeka, která je ideální na procházky.
Byt prodáváme, protože naše rodina už prostorově vyrostla. S vážným zájemcem se rádi domluvíme na ceně.
Realitky prosím nevolejte.
Provozní náklady (počítáno pro 2 dospělé a 2 děti):
• Zálohy na služby: 3 823 Kč
• Elektřina: 1 530 Kč
• Plyn: 2 260 Kč
• Internet: satelit
SVJ je bez dluhů.
Byt je v osobním vlastnictví a lze jej financovat hypotékou.
V případě zájmu o prohlídku prosím napište e-mail. Na vyžádání zašleme i veškeré dokumenty, včetně energetického štítku.
We offer for sale a spacious and cozy 4+kk apartment with a total area of 92.29 m² (including the balcony), located on the 1st and 2nd floors of a renovated tenement house in the popular Karlín district.
The apartment has undergone tasteful renovations and features high-quality materials, handmade mosaics, a fireplace stove, extensive storage space, and a large bookshelf. Its layout is suitable for families as well as for investment purposes – the apartment can be structurally divided into two separate 2+kk units.
The apartment faces a quiet inner courtyard with no through traffic from other residents of the building. The building is secured by a camera system, and there is the option of short-term parking in the courtyard. Upon agreement, a long-term parking space can also be arranged.
The neighborhood offers excellent civic amenities: schools, kindergartens, shops, restaurants, cafes, as well as metro and tram stops are within walking distance. The Vltava River and cycle paths are just a few minutes away on foot.
Operating costs (for 4 persons):
• Service deposits: 3,823 CZK
• Electricity: 1,530 CZK
• Gas: 2,260 CZK
• Internet: Satellite
The apartment is privately owned, free of legal encumbrances, and can be financed with a mortgage.
For more information and to arrange a viewing, please send an e-mail.
Real estate agencies, please do not call.
Parametre nehnuteľnosti
| Dostupné od | 1. 3. 2026 |
|---|---|
| Konštrukcia budovy | Tehla |
| Vybavené | Čiastočne |
| Číslo inzerátu | 970886 |
| PENB | D - Menej hospodárne |
| Úžitková plocha | 92 m² |
| Stav | Veľmi dobrý |
|---|---|
| Dispozícia | 4+kk |
| Poschodie | 1. poschodie z 4 |
| Vlastníctvo | Osobné |
| Umiestnenie | Centrum mesta |
| Cena za jednotku | 152 174 CZK / m2 |
Čo táto nehnuteľnosť ponúka?
| Balkón 4 m² |
V okolí nehnuteľnosti nájdete
Stále hľadáte to pravé?
Nastavte si strážneho psa. Ponuky vybrané na mieru dostanete súhrnne 1× denne e-mailom. S Premium profilom máte po ruke rovno 5 strážcov a keď sa niečo objaví, informujú vás obratom.






















