
Predaj domu 5+1 • 141 m² bez realitky, Brandenbursko
Objektový popis
Predaj priamo od vlastníka – žiadne provízie makléra!
Vitajte vo vašej novej oáze pohody v Eichwalde pri Berlíne – kúzelnom, zelenom mieste na jazere Zeuthen. Tu vznikol moderný rodinný dom (novostavba 2025) so záhradou, ktorý dokonale spája pokoj, komfort a individualitu.
Záhrada ešte nie je dokončená, a preto ponúka veľa priestoru pre vlastné dizajnové nápady – či už prírodne ladené, rodinne prívetivé alebo nenáročné na údržbu.
Len pár minút pešo vás oddeľuje od vody aj každodenného zhonu:
• 3 minúty k kúpalisku pri jazere Zeuthen
• 1 minúta k najbližšej autobusovej zastávke
Domov pre rodiny, milovníkov prírody a vodných športov, ktorí hľadajú niečo výnimočné.
________________________________________
Vybavenie
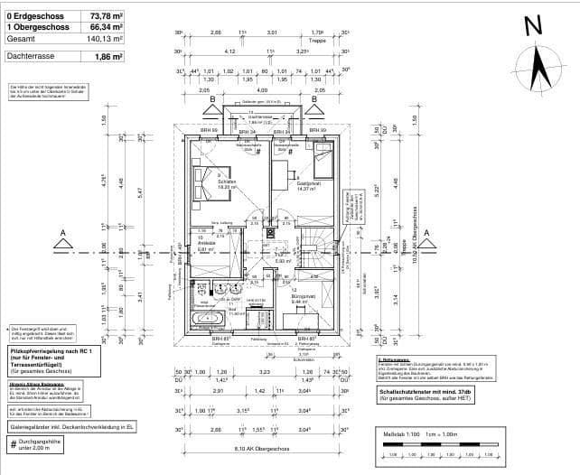
Dom bol postavený podľa najnovších energetických predpisov (EnEV 2024) a zaujme premysleným usporiadaním priestorov, kvalitnými materiálmi a najmodernejšou technikou.
Prízemie:
• Svetlý, priestranný obývací a jedálenský priestor s podlahovými oknami
• Pripravené pripojenie pre krbový kachľový ohrievač
• Prístup na terasu cez výčrepný výklenok
• Priestranná obytná kuchyňa s priestorom pre individuálne prevedenie (kuchyňa môže byť realizovaná podľa vlastných predstáv)
• Hosťovské sprchové kúpeľne so špičkovými sanitárnymi prvkami
• Technická miestnosť s najmodernejšou technikou
Poschodie:
• Dve spálne/hostinské izby, každá s prístupom na balkón
• Navyše šatňa a kancelária / home office
• Veľká rodinná kúpeľňa s:
o Vaňou
o Veľkou sprchou
o Dvojitým umývadlom
o Starostlivo vybranými obkladačkami a značkovými batériami
Technika a energia:
• Rok výstavby 2024 / dokončenie 2025
• Energeticky efektívne podľa najnovších štandardov
• Pripravenosť pre fotovoltaickú inštaláciu (sú pripravené prázdne potrubia)
• Podlahové kúrenie, moderná vykurovacia technika, optické pripojenie
• Všetky mediálne prípojky podľa aktuálneho stavu techniky
Lokalita, lokalita, lokalita – len 3 minúty do jazera Zeuthen!
Začnite deň so východom slnka nad vodou – alebo si vychutnajte výhľad priamo z jednej z balkónových izieb vo vašom novom domove.
Eichwalde je pravá idylka!
Nachádzajúce sa na prahu metropol a v zelenej zóne okolo, patrí Eichwalde, ako obec bez štatútu, k okresu Dahme-Spreewald. Poloha na juhozápadnom okraji Berlína ponúka dokonalú kombináciu prírody, oddychu a blízkosti mesta.
Rodinný dom sa nachádza v pokojnej vedľajšej ulici, len 3 minúty chôdze od jazera Zeuthen resp. rieky Dahme. Okolie je charakteristické upravenými rodinnými domami na priestranných pozemkoch, v čistej obytné štvrti bez priejazdového premávky – tu si vychutnáte pokoj, súkromie a vidiecku atmosféru.
V letných mesiacoch je blízke kúpalisko obľúbeným cieľom pre plavcov a vodných športovcov, kým počas zimných mesiacov nastupuje blahodárne ticho. Prechádzky pozdĺž Havellandskej cesty alebo pozdĺž brehu Dohme pozývajú na spomalenie tempa.
Pozdĺž vody sa nachádzajú útulné reštaurácie, kaviarne a maríny – ideálne pre majiteľov lodí, jachte a nadšencov stand-up paddle boardingu. Takmer žiadna oblasť okolo Berlína nenabízí toľko možností pre voľný čas a prírodné zážitky priamo za dverami.
Dopravné spojenie a infraštruktúra:
Len pár metrov od domu sa nachádza autobus smerom na S-Bahn stanicu Zeuthen a S-Bahn stanicu Königs Wusterhausen. Napriek blízkosti všetkých dopravných spojení leží dom príjemne pokojne v vedľajšej ulici.
S-Bahn stanica Eichwalde je približne 7 minút na bicykli alebo 5 minút autom. Odtiaľ vám linky S8 a S46 rýchlo a priamo prevezú do Berlinu-Westend, Südkreuz alebo Königs Wusterhausen.
V okolí nájdete všetko pre každodenné potreby:
Supermarkety, lekárne, pekárne, reštaurácie, materské školy a školy. Humboldt Gymnázium Eichwalde sa nachádza v blízkosti, rovnako ako početné materské školy a základné školy v okolitých obciach Schulzendorf, Zeuthen a Schmöckwitz.
Pre väčšie nákupy a víkendové výlety sa ponúkajú A10 Center vo Wildau (cca 12 minút autom) alebo obchodné centrum Waltersdorf s IKEA a mnohými ďalšími špecializovanými obchodmi.
Automobilom sa dostanete do:
• Berlin-Alexanderplatz približne za 35 minút
• Kurfürstendamm približne za 35 minút
Tu, na juhozápadnom okraji metropol, vás čaká dedinsko-idylická obytná lokalita s vysokou hodnotou oddychu – pokojná, zelená a zároveň vynikajúco dostupná.
Miesto, kde žijete v súlade s ročnými obdobiami a tešíte sa každý deň na návrat domov.
Vybavenie
Dom bol postavený podľa najnovších energetických predpisov (EnEV 2024) a zaujme premysleným usporiadaním priestorov, kvalitnými materiálmi a najmodernejšou technikou.
Prízemie:
• Svetlý, priestranný obývací a jedálenský priestor s podlahovými oknami
• Pripravené pripojenie pre krbový kachľový ohrievač
• Prístup na terasu cez zimnú záhradu / výklenok
• Priestranná obytná kuchyňa s priestorom pre individuálne prevedenie
• Hosťovská sprchová kúpeľňa so špičkovými sanitárnymi prvkami
• Technická miestnosť s najmodernejšou technikou
Poschodie:
• Dve spálne/hostinské izby, každá s prístupom na balkón
• Navyše šatňa a kancelária / home office
• Veľká rodinná kúpeľňa s:
o Vaňou
o Veľkou sprchou
o Dvojitým umývadlom
o Starostlivo vybranými obkladačkami a značkovými batériami
Technika a energia:
• Rok výstavby 2024 / dokončenie 2025
• Energeticky efektívne podľa najnovších štandardov
• Pripravenosť pre fotovoltaickú inštaláciu (sú pripravené prázdne potrubia)
• Podlahové kúrenie, moderná vykurovacia technika, optické pripojenie
• Všetky mediálne prípojky podľa aktuálneho stavu techniky
Prílohy / dokumentácia
K objektu sú úplne pripravené všetky stavebné a plánovacie podklady:
• Architektonické výkresy, stavebná dokumentácia a kompletný priebeh výstavby
• Všetky faktúry od inštalatérov a remeselníckych firiem
• Kompletné schématické a inštalačné plány
• Detailné pódiové plány a opisy vybavenia objektu
Tým je celý proces vzniku domu transparentne a preukázateľne zdokumentovaný.
Parametre nehnuteľnosti
| Vek | Nad 50 rokov |
|---|---|
| Dispozícia | 5+1 |
| PENB | A - Mimoriadne úsporné |
| Plocha pozemku | 525 m² |
| Cena za jednotku | 5 312 € / m2 |
| Stav | Novostavba |
|---|---|
| Číslo inzerátu | 970791 |
| Úžitková plocha | 141 m² |
| Celkové poschodia | 1 |
Čo táto nehnuteľnosť ponúka?
| Balkón | |
| MHD 6 minút pešo |
| Parkovanie | |
| Terasa |
V okolí nehnuteľnosti nájdete
Stále hľadáte to pravé?
Nastavte si strážneho psa. Ponuky vybrané na mieru dostanete súhrnne 1× denne e-mailom. S Premium profilom máte po ruke rovno 5 strážcov a keď sa niečo objaví, informujú vás obratom.









