
Prenájom bytu 2+1 • 55 m² bez realitkyNa Petřinách, Praha - Veleslavín
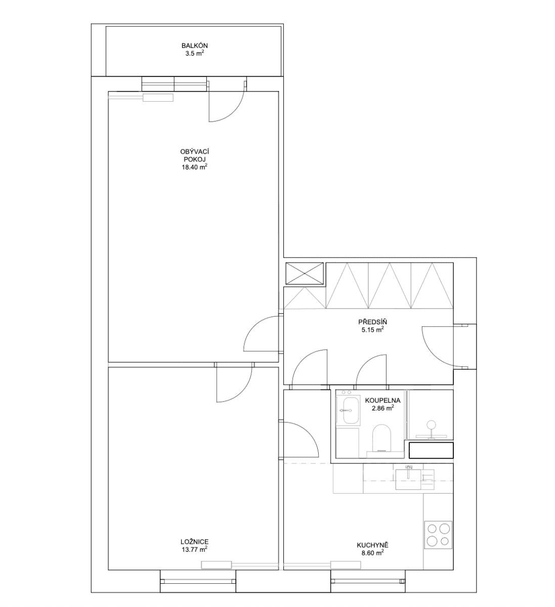
Na Petřinách, Praha - VeleslavínMHD 1 minúta pešo • Čiastočne vybavené • Výťah • Parkovanie • Balkón 3,5 m² • Pivnica 2 m²Vyžaduje sa overenie bezdlžnostiNabízíme k pronájmu světlý byt 2+1 o rozloze 55 m², který prošel rekonstrukcí v roce 2022. Byt se nachází ve 3. patře bytového domu s výtahem v ulici Na Petřinách.
Dispozice bytu nabízí vstupní chodbu se zabudovaným úložným prostorem, kuchyni s novou kuchyňskou linkou (vestavěná lednice, elektrická trouba, indukční deska, myčka), koupelnu s WC (sprchový kout, pračka) a dvě obytné místnosti. Byt bude předán nevybavený volným nábytkem. Na chodbě a v kuchyni je nová dubová podlaha, v obytných místostech původní skládáné parkety, v koupelně dlažba.
Orientace bytu je severo-jižní a poskytuje dostatek denního světla. Výhled z ložnice je do klidného, zeleného vnitrobloku, výhled z obývacího pokoje dohlíží na silnici. Díky balkónu je dopravní hluk eliminivaný na minimum.
Ulice Na Petřinách nabízí bydlení v klidné a zelené části města s výbornou občanskou vybaveností. Lokalita vyniká skvělou dopravní dostupností – stanice metra A - Petřiny, tramvaj i autobus jsou jen pár kroků, díky čemuž se rychle dostanete do centra i na letiště. V bezprostředním okolí najdete obchody (supermarket Billa, Lidl, DM drogerie), kavárny (Kiosek, Sladká dílna, pekárna Hvězda), restaurace, školy, školky i zdravotnická zařízení. V těsné blízkosti je obora Hvězda i park Ladronka pro volnočasové vyžití. Atraktivitu místa podtrhuje bezpečná a příjemná atmosféra tradiční rezidenční čtvrti.
Parkování je možné před domem v rámci modrých zón. K bytu je možné předat i malou sklepní kój o rozloze 2 m². V rámci bytového domu je k dispozici společná kočárkárna, dílna a sušárna.
Byt je ideální pro jednotlivce, pár nebo menší rodinu, kteří hledají příjemné bydlení s vynikající dopravní dostupností a plnou občanskou vybaveností.
Nájem 22.000,- | Poplatky cca 6.000,- | Kauce 22.000,-
Byt je k nastěhování od 1.2.2026. Preferujeme dlouhodobý pronájem, minimálně 12 měsíců. V poplatcích zahrnuto: elektřina, topení, voda, domovní poplatky, svoz odpadu. Možnost wifi připojení, internet si řeší nájemce po své ose.
V případě zájmu o prohlídku či další informace mě prosím kontaktujte prostřednictvím zpráv na této platformě.
Parametre nehnuteľnosti
| Dostupné od | 1. 2. 2026 |
|---|---|
| Výstavba budov | Panel |
| Vybavené | Čiastočne |
| Číslo inzerátu | 968551 |
| Úžitková plocha | 55 m² |
| Stav | Veľmi dobrý |
|---|---|
| Dispozícia | 2+1 |
| Poschodie | 3. poschodie z 7 |
| Umiestnenie | Rezidencie |
| Cena za jednotku | 400 CZK / m2 |
Čo táto nehnuteľnosť ponúka?
| Balkón 3,5 m² | |
| Výťah | |
| Domáci miláčikovia vítaní |
| Pivnica 2 m² | |
| Parkovanie | |
| MHD 1 minúta pešo |
V okolí nehnuteľnosti nájdete
Stále hľadáte to pravé?
Nastavte si strážneho psa. Ponuky vybrané na mieru dostanete súhrnne 1× denne e-mailom. S Premium profilom máte po ruke rovno 5 strážcov a keď sa niečo objaví, informujú vás obratom.





















