
Inzerát už nie je v ponuke
Predaj bytu 3+kk • 75 m² bez realitkySodener Straße 38 Berlin Wilmersdorf Berlin 14197
Sodener Straße 38 Berlin Wilmersdorf Berlin 14197MHD 2 minúty pešoByt sa nachádza v prvom poschodí pamätného obytného komplexu z roku 1928, zapadnutého do pokojnej vedľajšej ulice. Nebýva tu priechodová premávka, ani hluk z ulice či od susedov.
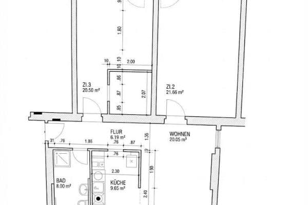
Byt má obytnú plochu 75 m² a skladá sa z obývacej izby spojené s spálňou, dvoch malých izieb, priestrannej jedálenskej kuchyne, denného kúpeľne a chodby.
Okrem toho ponúka balkon orientovaný na juhozápad a veľkú pivnicu zabezpečenú kovovými dverami.
Byt je okamžite k dispozícii a môže byť individuálne zrekonštruovaný podľa vlastných predstáv.
Vnútorný obytný priestor je možné upraviť podľa vlastného uváženia; priečne steny nie sú nosné a môžu byť premiestnené.
Predpisy chránenej pamiatky sa vzťahujú len na fasádu obytného komplexu.
Majitelia obytného komplexu venovali veľkú starostlivosť udržiavaniu objektu.
Správa domu pracuje profesionálne a spoľahlivo.
Bezpečnostný zamykací systém bol nedávno obnovený a zahŕňa prístupy do pivnice a na dvor.
Do domu sa vstupuje cez pevné kovové dvere do udržiavaného schodiska s červeným kobercem, čo podčiarkuje historickú atmosféru objektu.
Za oceľou spevnenými dverami bytu je prístup do svetlých miestností možný z centrálnej chodby. Balkon je pripojený k obývacej izbe.
V chodbě sa za vstavanými dverami skrine nachádza praktický, malý úložný kút.
Malé izby je možné využiť ako detskú izbu, kanceláriu, izbu pre hostí alebo ako priestor pre koníčky.
Byt si vyžaduje rekonštrukciu;
naposledy boli vymenené okenné otvory na dvore.
Parkovanie je možné zadarmo na prilehlých obytných uliciach.
Byt sa nachádza v centre mesta, v štvrti Schmargendorf okresu Berlín-Wilmersdorf, na veľmi pokojnej vedľajšej ulici bez priechodovej premávky.
Obytná štvrť s buržoáznym charakterom je poznačená ustálenými obytnými štruktúrami, udržiavanými historickými budovami a dobrou kombináciou maloobchodu a gastronómie.
Bežná miestna ponuka so službami ako lekári, lekárne, kaviarne, materské školy, školy, množstvo športových zariadení a kultúrnych centier je zabezpečená.
Vzdialenosť k verejnej doprave je pešo dostupná.
Spomenúť treba aj blízkosť Grunewaldu so svojimi jazerami, Botanickej záhrady, Slobodnej univerzity Berlín, nákupných ulíc Schloßstraße, Kurfürstendamm a centra Berlína-Mitte.
Lokalita je atraktívna pre rodiny, páry aj jednotlivcov.
Kvalita bývania je nadštandardná.
Verejná hromadná doprava:
- S-Bahn Hohenzollerndamm: cca 8 minút pešo
- Stanica metra Heidelberger Platz (U3): cca 10 minút pešo
- Stanica metra Konstanzer Straße (U7): cca 12 minút pešo
- Autobusové zastávky v bezprostrednej blízkosti (2–5 minút pešo)
Prístup individuálnej dopravy:
- Mestská diaľnica A100: cca 5 minút jazdy
- A115: cca 10 minút jazdy
- Kurfürstendamm: cca 8 minút jazdy
- Berlin-Mitte: cca 10 minút jazdy
Ďalšie vybavenie:
- Ryžované parkety v obývacej izbe
- Originálne drevené podlahy vo zvyšných izbách
- Priestranná jedálenská kuchyňa so vstavanou skriňou a dvoma spiatočne zodpovedajúcimi zásobovacími miestnosťami
- Obložený balkon s juhozápadnou orientáciou
- Kúpeľňa s oknom a priestorom pre vaňu alebo sprchu
- Vstavané dverové skrine pred úložným kútom pri vstupe
- Spevnené vstupné dvere bytu so železom
- Obnovené okenné otvory na dvore
- Ústredné kúrenie (plyn)
- Pivnica, 5 m², zabezpečená kovovými dverami
Parametre nehnuteľnosti
| Vek | Nad 50 rokov |
|---|---|
| Stav | Pred rekonštrukciou |
| Poschodie | 1. poschodie z 2 |
| Úžitková plocha | 75 m² |
| Dostupné od | 19. 12. 2025 |
|---|---|
| Dispozícia | 3+kk |
| Číslo inzerátu | 953972 |
| Cena za jednotku | 5 267 € / m2 |
Čo táto nehnuteľnosť ponúka?
| Balkón | |
| MHD 2 minúty pešo |
| Pivnica |
V okolí nehnuteľnosti nájdete
Stále hľadáte to pravé?
Nastavte si strážneho psa. Ponuky vybrané na mieru dostanete súhrnne 1× denne e-mailom. S Premium profilom máte po ruke rovno 5 strážcov a keď sa niečo objaví, informujú vás obratom.




