
Prenájom bytu 2+1 • 70 m² bez realitkySokolovská, Praha - Libeň
Nabízíme IHNED částečně ZAŘÍZENÝ ZREKONSTRUOVANÝ útulný a prostorný byt 2+1 v 1. patře domu PÁR KROKŮ OD METRA PALMOVKA. Jedná se o pronájem přímo od majitelů domu.
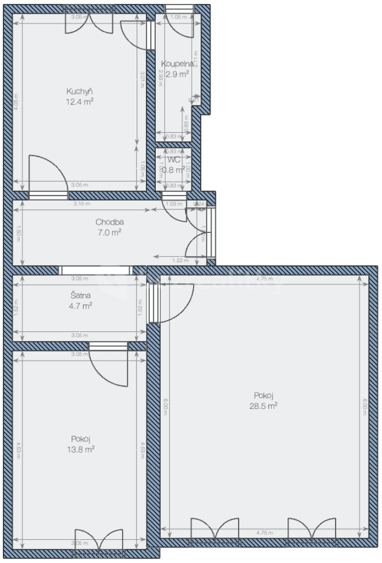
Celková výměra je 70 m2. Byt se nachází V UDRŽOVANÉM ČINŽOVNÍM DOMĚ. Orientace bytu je JV/SZ.
V kuchyni je PLNĚ ZAŘÍZENÁ KUCHYŇSKÁ LINKA (varná deska + digestoř, horkovzdušná trouba, kombinovaná chladnička, vestavná myčka, vestavná pračka). Na podlaze je vinylová podlaha.
V bytě jsou dále dvě velké neprůchozí ložnice, na podlaze v nich jsou dřevěné parkety, dobře udržovatelné. V bytě je navíc v průchozí šatně velká vestavná šatní skříň.
V koupelně je sprcha a umyvadlo, WC s umyvadlem je samostatné.
V předsíni je umístěn domovní komunikátor. Na podlaze je vinylová podlaha.
Ohřev teplé vody zajišťuje bojler, vytápění bytu pak elektrické topné panely s akumulací. V koupelně je elektrický infrazářič.
Zajímavým bonusem je INTERNETOVÁ PŘÍPOJKA 50/10 Mbps V CENĚ pronájmu.
Byt je 3 MINUTY CHŮZE OD METRA Palmovka. Obchodní obslužnost v místě je skvělá.
DŮM, ve kterém se byt nachází, JE MALÝ (8 bytů) a je průběžně udržovaný. V domě bydlí stálí nájemníci, kterým záleží na domě i slušných sousedských vztazích; dům je tedy ČISTÝ A BEZPEČNÝ. Ve SPOLEČNÝCH PROSTORÁCH domu je provozován KAMEROVÝ SYSTÉM SE ZÁZNAMEM.
BYT JE K DISPOZICI IHNED, smlouva se uzavírá na dva roky s možností prodloužení. Nájemné je 28.000 Kč plus záloha na služby 750 Kč na osobu. Vratná kauce je 50.000 Kč. Elektřina se převádí na nájemce.
NEWLY RENOVATED partly FURNISHED 2 BEDROOM APARTMENT (70 sqm) located just 3 MINUTES WALK from Palmovka subway station on the 1st floor of a SMALL well maintanted HOUSE (8 flats) with long-term reliable residents. Rent directly from the landlord. CCTV surveillance of common areas.
INTERNET CONNECTION INCLUDED (50/10 Mbps).
Layout
EQUIPPED KITCHEN including oven, cooktop, big fridge, built in dishwasher, built in washing machine. TWO BEDROOMS. Bathroom with shower. Separate toilet. Built-in wardrobe in the walk-in closet.
Electric boiler and heating.
AVAILABLE NOW. 12 months tenancy agreement (minimum). Rent 21.500CZK, electricity not included. 750 CZK per month and per person for utilities deposit. Refundable deposit 43.000 CZK.
Parametre nehnuteľnosti
| Dostupné od | 13. 1. 2026 |
|---|---|
| Výstavba budov | Tehla |
| Vybavené | Čiastočne |
| Prevedenie | Štandardné |
| Číslo inzerátu | 677533 |
| PENB | G - Mimoriadne nehospodárne |
| Umiestnenie | Tichá časť |
| Cena za jednotku | 400 CZK / m2 |
| Stav | Veľmi dobrý |
|---|---|
| Dispozícia | 2+1 |
| Poschodie | 1. poschodie z 3 |
| Vykurovanie | Elektrické |
| Vlastníctvo | Osobné |
| Rekonštrukcia | Kompletné |
| Úžitková plocha | 70 m² |
Čo táto nehnuteľnosť ponúka?
| MHD 3 minúty pešo |
V okolí nehnuteľnosti nájdete
Stále hľadáte to pravé?
Nastavte si strážneho psa. Ponuky vybrané na mieru dostanete súhrnne 1× denne e-mailom. S Premium profilom máte po ruke rovno 5 strážcov a keď sa niečo objaví, informujú vás obratom.



















