
Prenájom bytu 2+1 • 42 m² bez realitkyHumpolecká, Praha - Krč
Pronájem bytu 2+1 – Humpolecká ulice, Praha 4 – Pankrác
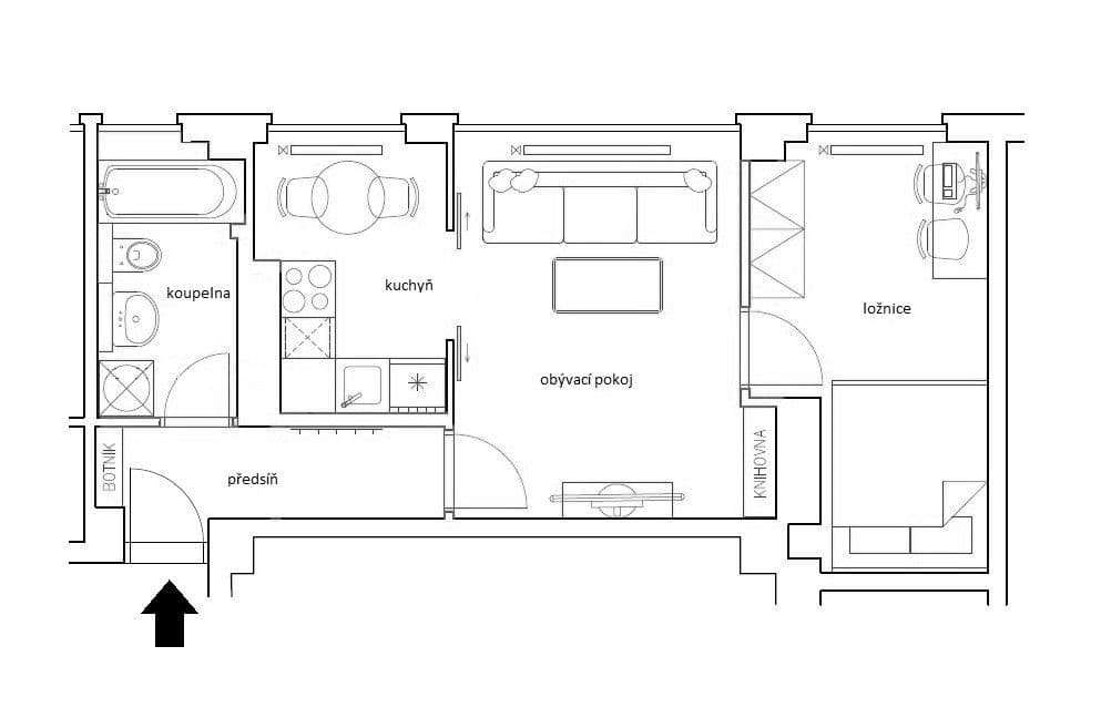
Nabízím k pronájmu zrekonstruovaný byt 2+1 v klidné části ulice Humpolecká, pouhých 400 metrů od stanice metra Pankrác. Byt se nachází v 1. patře (2. NP) udržovaného domu a má příjemný výhled do zahrady.
Byt je orientován na jihozápad, díky čemuž je po celý den hezky prosvětlený. V obývacím pokoji a ložnici jsou dřevěné parkety, v předsíni, koupelně a kuchyni je praktická velkoformátová dlažba.
Byt prošel kompletní rekonstrukcí v roce 2021, od té doby zde dosud spokojeně bydlel mladý pár. Vytápění zajišťuje nový plynový kotel umístěný v koupelně. K bytu náleží prostorný sklep o velikosti cca 4 m². Nájemníci mohou rovněž využívat společnou zahradu domu. Byt je částečně vybaven – k dispozici je kuchyňská linka s lednicí, troubou, myčkou a indukční varnou deskou. Po dohodě je možné odkoupit od současných nájemníků šatní skříň, knihovnu a textilní žaluzie v oknech.
Byt je vhodný pro jednu až dvě osoby.
Zálohy na služby (elektřina, plyn, voda, úklid společných prostor a odvoz odpadu) činí 3 500 Kč měsíčně. Dosavadní nájemníci měli pravidelně mírné přeplatky, které jim byly každoročně vraceny.
Kauce: 2 měsíční nájmy (48 000 Kč).
Nájem: 24 000 Kč
V případě zájmu prosím do zpráv napište odpovědi na následující otázky:
1. Kolik lidí by v bytě bydlelo?
2. Jak dlouho předpokládáte, že byste v bytě zůstal/a?
3. Máte nebo plánujete domácí mazlíčky?
4. Kouříte?
Další fotky budou dostupné v příštím týdnu, případně pošlu do zpráv.
Apartment for Rent 2+1 – Humpolecká Street, Prague 4 – Pankrác
I offer for rent a renovated 2+1 apartment located in a quiet part of Humpolecká Street, just 400 meters from Pankrác metro station. The apartment is situated on the 1st floor (2nd above-ground floor) of a well-maintained building and offers a pleasant view of the garden.
The apartment is southwest-facing, ensuring plenty of natural light throughout the day. The living room and bedroom feature wooden parquet floors, while the hallway, bathroom, and kitchen are fitted with practical large-format tiles.
The apartment underwent a complete renovation in 2021 and has since been happily occupied by a young couple. Heating is provided by a new gas boiler located in the bathroom. The apartment includes a spacious cellar of approximately 4 m². Tenants may also use the shared garden of the building. The apartment is partially furnished and includes a fitted kitchen with a refrigerator, oven, dishwasher, and induction cooktop. By agreement, it is possible to purchase a wardrobe, bookcase, and textile blinds from the current tenants.
The apartment is suitable for one to two people.
Monthly utility advances (electricity, gas, water, cleaning of common areas, and waste collection) amount to CZK 3,500. The current tenants regularly had small overpayments, which were refunded annually.
Security deposit: 2 months’ rent (CZK 48,000)
Rent: CZK 24,000 per month
If you are interested, please send a message answering the following questions:
1. How many people would live in the apartment?
2. How long do you expect to stay in the apartment?
3. Do you have or plan to have pets?
4. Do you smoke?
More pictures will be available next week, or I can send some pictures directly to messages.
Parametre nehnuteľnosti
| Dostupné od | 1. 2. 2026 |
|---|---|
| Výstavba budov | Tehla |
| Vybavené | Čiastočne |
| Prevedenie | Luxusné |
| Číslo inzerátu | 673840 |
| PENB | D - Menej hospodárne |
| Umiestnenie | Tichá časť |
| Cena za jednotku | 571 CZK / m2 |
| Stav | Po rekonštrukcii |
|---|---|
| Dispozícia | 2+1 |
| Poschodie | 2. poschodie z 5 |
| Vykurovanie | Plynové |
| Vlastníctvo | Osobné |
| Rekonštrukcia | Kompletné |
| Úžitková plocha | 42 m² |
Čo táto nehnuteľnosť ponúka?
| Pivnica 4 m² |
| MHD 2 minúty pešo |
V okolí nehnuteľnosti nájdete
Stále hľadáte to pravé?
Nastavte si strážneho psa. Ponuky vybrané na mieru dostanete súhrnne 1× denne e-mailom. S Premium profilom máte po ruke rovno 5 strážcov a keď sa niečo objaví, informujú vás obratom.








