
Predaj domu 5+1 • 145 m² bez realitkyDarmstadt Darmstadt Hessen 64285
Darmstadt Darmstadt Hessen 64285MHD 2 minúty pešo • ParkovanieNa predaj je udržiavaný obytný dom v centrálnom umiestnení v Darmstadte, v obľúbenom štvrti Bessungen.
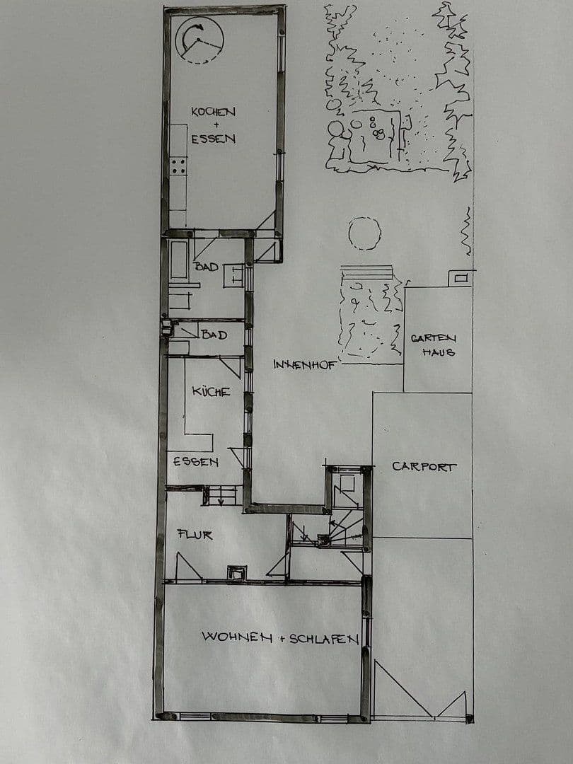
Približne 297 m² veľký pozemok je zastavaný so šarmantným hlavným domom z roku 1900 a prístavbou z roku 1961. Nehnuteľnosť je momentálne rozdelená na tri bytové jednotky a je vhodná ako pre kapitálových investorov na prenájom, tak aj pre vlastných užívateľov.
Hlavný dom pozostáva z dvoch bytových jednotiek s celkovou obytnou plochou cca 75 m², prípadne môže byť zariadený ako jedna jednotka so spálňou a kúpeľňou hore a obývacou a jedálňou dole. Dodatočné WC so svetlom denného svetla sa nachádza na medziposchodí medzi prízemím a podkrovím.
Prístavba má samostatný vstup a ponúka na dvoch úrovniach obytnú plochu cca 65 m². Malá strešná terasa a zimná záhrada atraktívne dopĺňajú túto ponuku bývania.
Jednoduchým odstránením medzipredných dverí je možné záujemcom ľahko spojiť predný a zadný dom do jednej jednotky.
Všetky byty sú vybavené kuchynskými linkami, ktorých prevzatie je možné po dohode. Kuchyne a kúpeľne boli naposledy modernizované v roku 2020, čo podčiarkuje udržiavaný celkový stav nehnuteľnosti. Strechy prístavby a zimnej záhrady a niekoľko okien boli obnovené v roku 2003.
K objektu patrí aj carport, pred ním druhé parkovacie miesto, sklady, prístrešok pre bicykle a odpadkové koše, ako aj záhrada s rybníkom na zadnej časti pozemku, ktorá pôsobí ako zelená oáza na oddych v meste.
Výborná dostupnosť verejnej dopravy a centrálny umiestnenie robia túto nehnuteľnosť mimoriadne atraktívnou.
Nehnuteľnosť sa nachádza v obľúbenom Jugendstil štvrti Darmstadtu Bessungen, neďaleko od parku Orangerie so svojimi barokovými prvkami. Štvrť je obľúbená pre svoju centrálnu a zároveň pokojné obytné lokalitu. Obchody, reštaurácie, všetky školy, materské školy a zariadenia dennej potreby sú dostupné pešo. Výborná dostupnosť verejnej dopravy a blízkosť centra Darmstadtu sú veľkou výhodou pre bývanie, prácu a voľný čas.
2-FH resp. tri obytné jednotky
• Vybavené kuchynské linky vo všetkých bytoch (prevzatie po dohode)
• Modernizované kúpeľne s denným osvetlením a kuchyne (2020)
• Samostatné hostinské WC v hlavnom dome
• Podlahy z korku, parkety, dlažby
• Krbová pec
• Strešná terasa v prístavbe
• Priestranná pivnica s klenutým sklepom
• Carport a druhé parkovacie miesto
• 2 sklady, záhrada s rybníkom
• Samostatný vstup do prístavby
Parametre nehnuteľnosti
| Vek | Nad 50 rokov |
|---|---|
| Dispozícia | 5+1 |
| PENB | G - Mimoriadne nehospodárne |
| Plocha pozemku | 297 m² |
| Cena za jednotku | 4 482,76 € / m2 |
| Stav | Dobrý |
|---|---|
| Číslo inzerátu | 1015290 |
| Úžitková plocha | 145 m² |
| Celkové poschodia | 2 |
Čo táto nehnuteľnosť ponúka?
| Balkón | |
| Parkovanie | |
| Terasa |
| Pivnica | |
| MHD 2 minúty pešo |
V okolí nehnuteľnosti nájdete
Stále hľadáte to pravé?
Nastavte si strážneho psa. Ponuky vybrané na mieru dostanete súhrnne 1× denne e-mailom. S Premium profilom máte po ruke rovno 5 strážcov a keď sa niečo objaví, informujú vás obratom.






















