
Predaj domu 6+1 • 140 m² bez realitkyHoelscherweg 5 Darmstadt Arheilgen Hessen 64291
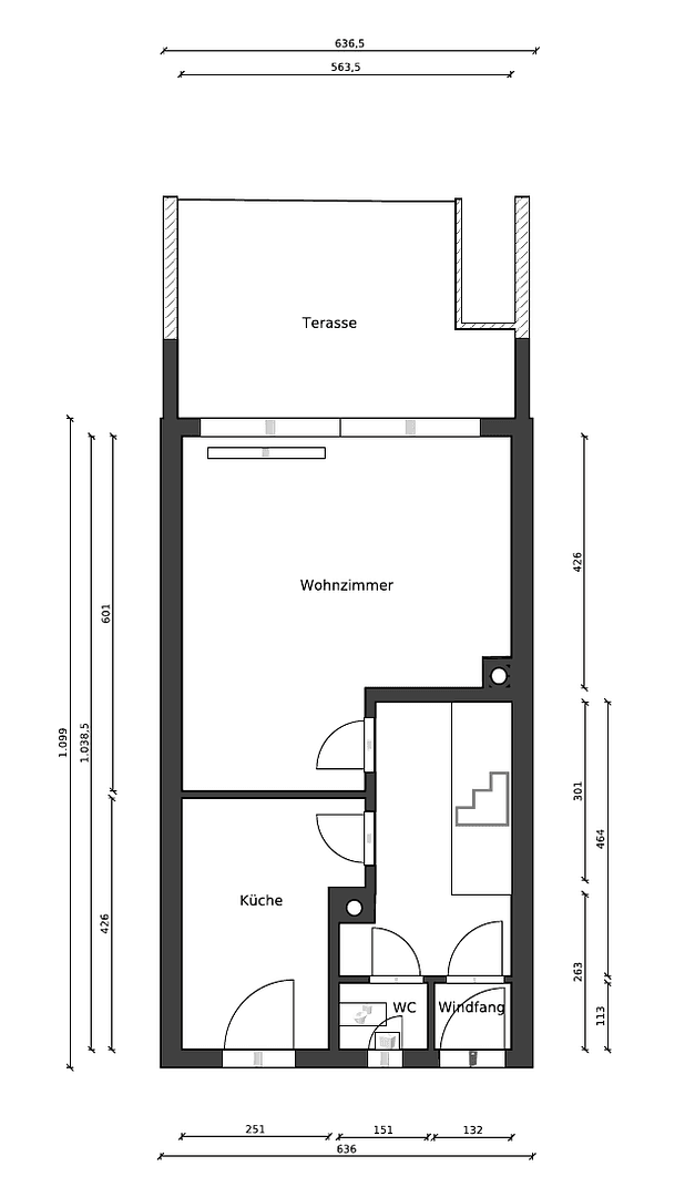
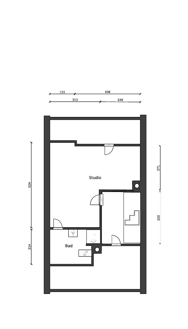
Hoelscherweg 5 Darmstadt Arheilgen Hessen 64291MHD 2 minúty pešo • GarážNa predaj je priestranný radový dom postavený masívnou konštrukciou z roku 1981, ktorý disponuje úplným suterénom. S obytnou plochou približne 140 m² a celkovo 6 izbami ponúka táto nehnuteľnosť mimoriadne veľa priestoru pre rodiny, páry alebo kombináciu bývania a práce z domu. Budova sa rozprestiera na štyroch úrovniach, vrátane už kompletne upraveného podkrovia.
Obzvlášť je potrebné zdôrazniť, že ide o vlastnícky pozemok; pôvodné dedičné stavebné právo už bolo splatené. Výnimočným prínosom pre budúcu istotu je rekonštrukcia strechy v roku 2025 vrátane novej krytiny a izolácie. Nehnuteľnosť je momentálne prázdna a môže byť prevzatá krátko po ukončení formálnych povolení.
Predtým, než nás kontaktujete: Pre vás sme vytvorili extrémne detailné online dossié so všetkými pôdorysmi, údajmi o spotrebe a rozsiahlym foto galériou.
Prosím, najprv si prezrite všetky dokumenty na: haus-arheilgen.de
Vzhľadom na dvoch hodinovú cestu koordinujeme obhliadky hromadne. Prosím, zašlite svoju žiadosť priamo cez portál alebo na kontakt(at)haus-arheilgen.de.
DÔLEŽITÉ: Predaj prebieha v rámci opatrovateľského konania. Keďže predaj vyžaduje povolenie od opatrovníckeho súdu, treba počítať s lehotou spracovania približne 2 až 3 mesiace medzi notárskym sedením a konečnou právnou platnosťou (čo je podmienkou pre úhradu kúpnej ceny).
Tešíme sa na vašu žiadosť, ak sú uvedené podmienky (najmä procesná lehota spracovania) pre vás prijateľné.
Nehnuteľnosť sa nachádza v ustálenom, rodinne prívetivom obytnom prostredí v obľúbenom darmištátskom štvrti Arheilgen. Lokalita sa vyznačuje vynikajúcou infraštruktúrou: električka, autobus a S-Bahn sú dostupné v priebehu niekoľkých minút chôdze a ponúkajú dokonalé spojenie s centrom Darmstadtu aj celou regiónom Rýn-Majn.
V bezprostrednej blízkosti nájdete rozmanité možnosti nakupovania, diskontné obchody, lekárne a množstvo odborných lekárov. Napriek centrálnej polohe dorazíte len za pár minút do susedného lesa, ktorý ponúka ideálne podmienky pre oddych, prechádzky a športové aktivity.
Dom bol počas rokov starostlivo udržiavaný a ponúka vybavenie, ktoré spája komfort aj hodnotu pre voľný čas:
• Sanitár: Dom disponuje celkovo tromi sprchami (v hornom poschodí, podkroví a suteréne) a toaletami vo všetkých štyroch úrovniach.
• Technika: Plynová kondenzačná technika (2002) a mini fotovoltaická inštalácia (balkónová elektráreň) na streche podporujú energetickú efektívnosť.
• Wellness a voľný čas: V suteréne sa nachádza vlastná sauna a bar, ideálny pre spoločenské večery.
• Exteriér: Južná terasa v prízemí je vybavená elektrickou markízou a ponúka priamy prístup do záhrady. Ponuku dopĺňa aj zasklený balkón v hornom poschodí.
• Parkovanie: Ku domu patrí vlastná garáž, ktorá je pohodlne dostupná pešo.
Parametre nehnuteľnosti
| Vek | Nad 50 rokov |
|---|---|
| Dispozícia | 6+1 |
| PENB | E - Nehospodárne |
| Plocha pozemku | 216 m² |
| Stav | Dobrý |
|---|---|
| Číslo inzerátu | 1015969 |
| Úžitková plocha | 140 m² |
| Cena za jednotku | 4 178,57 € / m2 |
Čo táto nehnuteľnosť ponúka?
| Balkón | |
| Garáž | |
| Terasa |
| Pivnica | |
| MHD 2 minúty pešo |
V okolí nehnuteľnosti nájdete
Stále hľadáte to pravé?
Nastavte si strážneho psa. Ponuky vybrané na mieru dostanete súhrnne 1× denne e-mailom. S Premium profilom máte po ruke rovno 5 strážcov a keď sa niečo objaví, informujú vás obratom.





















