
Predaj bytu 3+kk • 95 m² bez realitky, Bavorsko
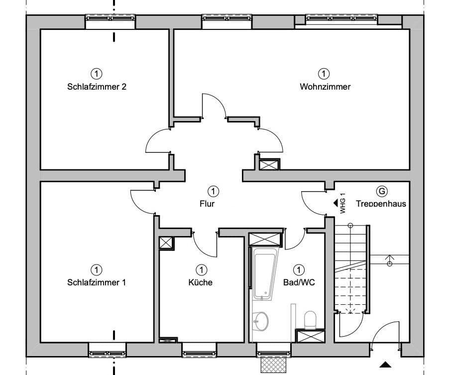
Táto priestranne navrhnutá 3,5-izbová bytová jednotka sa nachádza v prízemí udržiavaného viacrodinného domu v centrálnom okolí Neu-Ulmu.
S obytnou plochou cca 95 m² zaujme byt premyslenou a dobre zariaditeľnou dispozíciou. Jednotlivé miestnosti majú veľkorysé rozmery a ponúkajú široké možnosti využitia – ideálne pre vlastníkov aj investorov.
Budova bola postavená okolo roku 1949 v pevnej monolitickej konštrukcii. Vnútorné aj vonkajšie múry sú omietnuté a byt je vybavený plastovými oknami s dvojsklom.
Rozdelenie:
Chodba, kúpeľňa, kuchyňa, spálňa, detská izba ako aj priestranná obývacia a jedálenská izba
Byt je momentálne prenajatý.
Aktuálna čistá mesačná nájomná suma je 1.092,50 € (nájomný vzťah platný od roku 2023).
Nehnuteľnosť sa nachádza v centrálnej časti Neu-Ulmu a vyniká výbornou infraštruktúrou.
Všetky zariadenia bežnej potreby – ako sú nákupné možnosti, lekári, lekárne, školy a materské školy – sú v bezprostrednom okolí a ľahko dostupné.
Okrem toho je zabezpečená veľmi dobrá dostupnosť verejnej dopravy aj diaľničnej siete, takže centrum Neu-Ulmu aj centrum Ulmu sú dosiahnuteľné za krátky čas.
Byt bol na konci 2000. rokov komplexne zrekonštruovaný. V rámci rekonštrukcie boli napríklad vymenené elektrické vedenia, ako aj vodovodné a vykurovacie potrubia.
Kúrenie zabezpečuje plynové podlažné kúrenie, ktoré zároveň zabezpečuje ohrev teplej vody.
Prehľad vybavenia:
• Plastové okná s dvojsklom a žalúziami
• Podlahy z parketu a dlaždíc
• Kúpeľňa s prirodzeným denným osvetlením, vybavená vaňou, umývadlom a WC
Moser Invest GmbH
Kreuzäckerstraße 32
73347 Mühlhausen im Täle
Zastúpená:
Riaditeľ: Rudolf Moser
Parametre nehnuteľnosti
| Vek | Nad 50 rokov |
|---|---|
| Dispozícia | 3+kk |
| Úžitková plocha | 95 m² |
| Dostupné od | 22. 4. 2026 |
|---|---|
| Číslo inzerátu | 1015156 |
| Cena za jednotku | 3 147,37 € / m2 |
Čo táto nehnuteľnosť ponúka?
| MHD 0 minút pešo |
V okolí nehnuteľnosti nájdete
Stále hľadáte to pravé?
Nastavte si strážneho psa. Ponuky vybrané na mieru dostanete súhrnne 1× denne e-mailom. S Premium profilom máte po ruke rovno 5 strážcov a keď sa niečo objaví, informujú vás obratom.












