
Predaj domu • 264 m² bez realitky, Bádensko-Wurttembersko
Tento výnimočný rodinný dom pre jednu až dve rodiny v elegantnom vidieckom štýle spája nadčasovú architektúru s luxusným obytným komfortom. Pôvodne postavený v roku 1968, bol objekt v roku 1995 komplexne a kvalitne zrekonštruovaný a dnes sa prezentuje v mimoriadne udržiavanom a modernom stave.
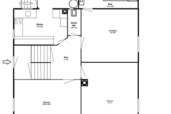
S obytnou plochou cca 264 m² plus približne 20 m² vystretej terasy ponúka dom veľa priestoru pre náročné bývanie, reprezentatívne príjmanie hostí a uvoľnený rodinný život. Usporiadanie, ktoré kombinuje kvalitné materiály, premyslené rozloženie miestností a exkluzívne detaily vybavenia, robí z tohto objektu jedinečnú príležitosť. Osobitým lákadlom je integrovaný bazén, ktorý je celoročne zdrojom wellness a rekreačného pôžitku.
Nehnuteľnosť sa nachádza v pokojnej a vyspelé lokalite na konci slepej ulice v Schorndorfe-Oberberkene. Okolie je charakterizované rodinnými domami a množstvom zelene. Prostredie ponúka vysokú úroveň súkromia a kvality života.
V blízkosti sa nachádzajú školy, materské školy ako aj možnosti pre voľnočasové a rekreačné aktivity. Súčasne lokalita zaujme príjemnou vzdialenosťou od mestského ruchu – ideálne pre ľudí, ktorí si cenia pokoj a exkluzivitu.
- Kvalitný vidiecky štýl s exkluzívnymi materiálmi
- Priestranná obytná plocha (cca 264 m² s terasou)
- Vnútorný bazén
- Byt v podkroví – využiteľný samostatne
- Viacero kúpeľní
- Reprezentatívna obývacia a jedálenská časť (cca 60 m²)
- Pokojná, súkromná atmosféra
- Udržiavaný a modernizovaný technický štandard
- Nová strecha a kúrenie
- Moderný drevený kachlík v obývačke
- S úplným suterénom s rôznymi možnosťami využitia
- Dvojgaráž a ďalšie parkovacie miesta
DW Immo GmbH
Goethestr. 19
73614 Schorndorf
Oprávnený zástupca: Daniel Wurst
Dozorný orgán: Landratsamt Rems-Murr-Kreis
Obchodný register: Stuttgart
Číslo obchodného registra: HRB 798466
Parametre nehnuteľnosti
| Vek | Nad 50 rokov |
|---|---|
| Číslo inzerátu | 1014445 |
| Úžitková plocha | 264 m² |
| Celkové poschodia | 2 |
| Stav | Po rekonštrukcii |
|---|---|
| PENB | D - Menej hospodárne |
| Plocha pozemku | 796 m² |
| Cena za jednotku | 2 973,48 € / m2 |
Čo táto nehnuteľnosť ponúka?
| Balkón | |
| Garáž | |
| MHD 0 minút pešo |
| Pivnica | |
| Parkovanie | |
| Terasa |
V okolí nehnuteľnosti nájdete
Stále hľadáte to pravé?
Nastavte si strážneho psa. Ponuky vybrané na mieru dostanete súhrnne 1× denne e-mailom. S Premium profilom máte po ruke rovno 5 strážcov a keď sa niečo objaví, informujú vás obratom.


















