
Predaj bytu 4+1 • 127 m² bez realitkyMünchen Obergiesing Bayern 81549
München Obergiesing Bayern 81549MHD 2 minúty pešo • Garណiadne maklérske dopyty!
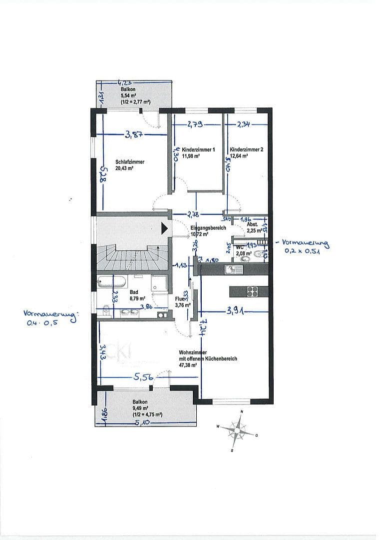
Predávame náš veľmi dobre rozvrhnutý 4-izbový byt s približne 127 m² obytnej plochy, nachádzajúci sa v 1. nadzemnom podlaží malého viacrodinného domu, v ktorom sú celkovo iba traja vlastníci.
Stredobodom bytu je veľký obývací a jedálenský priestor (približne 47 m²) orientovaný na juh, s parketami z masívneho dreva. Odtiaľ priamo vstupujete na juhový balkón s rozlohou približne 10 m². Kvalitná vstavaná kuchyňa (spotrebiče značiek Miele a Bora; pracovná doska z prírodného kameňa) je otvorene integrovaná a predáva sa spolu s bytom (doplatok 15 000 €).
Na severnej strane sa nachádzajú tri ďalšie izby, taktiež s parketami z masívneho dreva, ktoré sú ideálne ako spálňa, pracovňa alebo detská izba. Z jednej z izieb je prístup na druhý balkón, orientovaný k spoločnej záhrade.
Veľká kúpeľňa je vybavená sprchovým kútom, vírivkovou vaňou a elektrickým podlahovým kúrením. Okrem toho byt disponuje aj samostatným hosťovským WC a malou úložnou miestnosťou (s pripojením pre práčku).
Byt bol v roku 2019 kompletné renovovaný (vrátane elektro a sanitárnych inštalácií), napríklad s trojitými oknami, elektricky ovládanými vonkajšími rolietami a moderným osvetľovacím systémom so stmievateľnými stropnými svietidlami. Balkóny boli obnovené v rokoch 2025/2026.
Centrálny plynový ohrievač bol v roku 2023 vymenený a prispôsobený najnovším technologickým štandardom (kombinácia so solárnou termikou na streche, bojlerom na teplú vodu a pod.). Energetický preukaz ešte nie je aktualizovaný!
K bytu patrí navyše:
- dve pivničné miestnosti (v pôdoryse označené červenou): jedna s rozlohou približne 11 m², druhá s približne 24 m² (vrátane vlastnej kuchyne a kúpeľne) a s veľkým oknom s denným svetlom orientovaným na juh;
- garáž s výhradným používaním (cena: 25 000 € navyše);
- spoluvlastnícky podiel 3/8 na parcele o veľkosti 800 m² so peknou spoločnou záhradou.
Dátum nadobudnutia: podľa dohody (byt je momentálne ešte obývaný, preto nie sú k dispozícii ďalšie fotografie).
V prípade záujmu nás prosím kontaktujte krátkou správou s niekoľkými informáciami o vás. Prehliadky sú samozrejme možné po predchádzajúcej dohode.
Byt sa nachádza v príjemne pokojnej oblasti v Obergiesingu, priamo na hranici s Harlachingom a Fasangartenom.
Pešo alebo na bicykli len 1 km k zastávke U1 Mangfallplatz. V bezprostrednej blízkosti sa nachádzajú materská škôlka/školka, lekáreň, lekári a obchody s bežnými potrebami. Autobusy číslo 220 a 135 sú dostupné pešo.
Parametre nehnuteľnosti
| Vek | Nad 50 rokov |
|---|---|
| Dispozícia | 4+1 |
| Číslo inzerátu | 1014344 |
| Cena za jednotku | 8 653,54 € / m2 |
| Stav | Po rekonštrukcii |
|---|---|
| Poschodie | 1. poschodie z 2 |
| Úžitková plocha | 127 m² |
Čo táto nehnuteľnosť ponúka?
| Balkón | |
| Garáž |
| Pivnica | |
| MHD 2 minúty pešo |
V okolí nehnuteľnosti nájdete
Stále hľadáte to pravé?
Nastavte si strážneho psa. Ponuky vybrané na mieru dostanete súhrnne 1× denne e-mailom. S Premium profilom máte po ruke rovno 5 strážcov a keď sa niečo objaví, informujú vás obratom.
















