
Predaj domu 4+1 • 118 m² bez realitkyDarmstadt-Eberstadt Eberstadt Hessen 64297
Darmstadt-Eberstadt Eberstadt Hessen 64297MHD 1 minúta pešo • ParkovanieTento krásny radený dom sa nachádza na južnom konci Darmstadt-Eberstadt s rôznymi možnosťami nákupu, materskými dvorcami a školami v bezprostrednej blízkosti.
Zo spoločnej obývacej, jedálenskej a kuchynskej časti máte prístup do záhrady a na terasu, ktorá je osvetlená popoludňajším slnkom. Vstavaná kuchyňa Nolte je vybavená čiastočne ako novými značkovými elektrospotrebičmi a sporákom s pyrolytickým čistením (Siemens, AEG). Okrem hostinského WC v prízemí sa v poschodí nachádza nové, veľmi moderné kúpeľne.
Skladovacia miestnosť v prízemí, kompletne obložený suterén a záhradná/bicyklová chata s priamym prístupom na ulicu poskytujú dostatok úložného priestoru.
Priamo pred domom sa nachádza parkovacie miesto s carportom a ďalšie parkovacie miesta pre hostí na súkromnej ulici.
Mestská časť Eberstadt sa nachádza južne od centra Darmstadtu a na juhu susedí s nádhernou Bergstraße. Modau preteká mestskou časťou a Modau-promenáda tvorí pekný zelený pás pozdĺž brehu rieky. Dopravné spojenie je optimálne vďaka električkám a blízkosti diaľničnej prípojky. Centrum Eberstadtu ponúka množstvo rôznych obchodných príležitostí a veľmi dobré spojenie s centrom mesta. Eberstadt disponuje vlastnou regionálnou stanicou so spojením s DB.
Bytová situácia v Eberstadte je veľmi atraktívna; napríklad vilová štvrť pozdĺž Heidelberger Landstraße s miestami ešte stále zachovanými starými stromovými porastmi alebo rozľahlé ovocné sady v okolí. V oblasti je niekoľko materských škôl a štyri základné školy, komplexná škola s triedami reálnej školy a gymnázií, ako aj Slobodná Waldorfská škola a Waldorfský materský dvor. Vonkajší bazén Mühltal-Bad a ďalšie športovacie možnosti sú dostupné v priebehu niekoľkých minút.
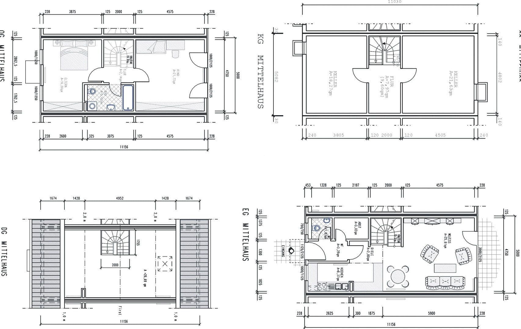
Prízemie:
• Obývacia a jedálenská časť s prístupom na terasu a do záhrady
• Krásna otvorená vstavaná kuchyňa od Nolte so značkovými spotrebičmi
• Hostinské WC
• Skladovacia miestnosť
Poschodie:
• Dve spálne alebo detské izby
• Moderná kúpeľňa vybavená WC
Podkrovie:
• Kompletné zariadenie a zariadené nábytkom
• Spálňa a pracovný kút
Suterén:
• Úplne prístrešený suterén
• Hobby / skladová miestnosť
• Práčovňa s Bosch práčkou
Vybavenie:
• Laminát a obklady v prízemí
• Parketová podlaha v poschodí a podkroví
• Podlahy boli obnovené v roku 2016
• Plastové okná
• Elektrické diaľkovo ovládané rolety
• Centrálny ohrievač s plynovým kombi kotlom
• Satelitná TV sústava pre Astra, Hotbird a Türksat
• Záhradná chata na bicykle a náradie
Všeobecné:
• Optimálna poloha (minúta od A5)
• Ihneď k dispozícii
• Parkovacie miesto s carportom
Dom je momentálne prenajatý rodine a prednostne sa predáva investorom. Prípadné termíny odovzdania je potrebné zohľadniť.
Parametre nehnuteľnosti
| Vek | Nad 50 rokov |
|---|---|
| Dispozícia | 4+1 |
| Úžitková plocha | 118 m² |
| Celkové poschodia | 4 |
| Stav | Dobrý |
|---|---|
| Číslo inzerátu | 1014163 |
| Plocha pozemku | 134 m² |
| Cena za jednotku | 4 703,39 € / m2 |
Čo táto nehnuteľnosť ponúka?
| Pivnica | |
| MHD 1 minúta pešo |
| Parkovanie | |
| Terasa |
V okolí nehnuteľnosti nájdete
Stále hľadáte to pravé?
Nastavte si strážneho psa. Ponuky vybrané na mieru dostanete súhrnne 1× denne e-mailom. S Premium profilom máte po ruke rovno 5 strážcov a keď sa niečo objaví, informujú vás obratom.




















