
Predaj domu 5+1 • 150 m² bez realitkyZwinglistr. 11, , Brandenbursko
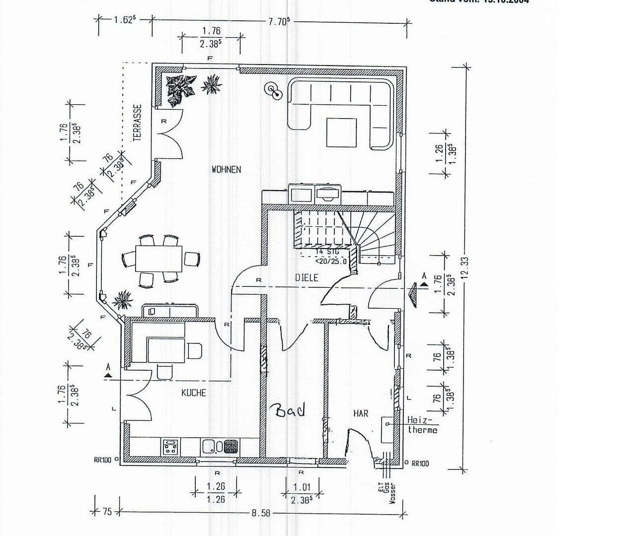
Zwinglistr. 11, , BrandenburskoMHD 3 minúty pešo • ParkovanieDom na predaj – pozemok 570 m², obytná plocha 150 m², možnosť 2 obytných jednotiek
Predávame náš dom v pokojnej a atraktívnej lokalite, keďže sme sa rozhodli opustiť Nemecko a začať nanovo.
Dom ponúka veľa priestoru, flexibilitu a veľký potenciál – ideálny pre rodiny, viacgeneračné bývanie alebo na využitie ako dve samostatné obytné jednotky.
Základné údaje:
Pozemok: cca 570 m²
Obytná plocha: cca 150 m²
2 poschodia
Obe poschodia možno samostatne využiť ako vlastné byty
Pokojná lokalita
Osobitosti:
Na záhrade už prebieha rekonštrukcia, vrátane pripraveného projektu bazéna.
Bazén (v príprave):
• cca 6,5 m x 3,5 m x 1,35 m
• Jamka úplne vykopaná
• Podlaha betónovaná (cca 25 cm, 2 vrstvy výstuže)
• Bočné steny pripravené s kovovými mrežami
Poznámka:
Záhrada momentálne ešte nie je dokončená, pretože bolo plánované kompletné nové upravenie.
To poskytuje kupujúcim možnosť všetko prispôsobiť podľa vlastných predstáv.
Parametre nehnuteľnosti
| Vek | Nad 50 rokov |
|---|---|
| Číslo inzerátu | 1014061 |
| Úžitková plocha | 150 m² |
| Celkové poschodia | 2 |
| Dispozícia | 5+1 |
|---|---|
| PENB | E - Nehospodárne |
| Plocha pozemku | 570 m² |
| Cena za jednotku | 6 326,67 € / m2 |
Čo táto nehnuteľnosť ponúka?
| Parkovanie | |
| Terasa |
| MHD 3 minúty pešo |
V okolí nehnuteľnosti nájdete
Stále hľadáte to pravé?
Nastavte si strážneho psa. Ponuky vybrané na mieru dostanete súhrnne 1× denne e-mailom. S Premium profilom máte po ruke rovno 5 strážcov a keď sa niečo objaví, informujú vás obratom.











