
Prenájom bytu 2+1 • 41 m² bez realitkyTempelhofer Str. 8, , Brandenbursko
Tempelhofer Str. 8, , BrandenburskoMHD 4 minúty pešo • ParkovanieNový stavebný projekt predstavuje moderné obytné štvrť, ktorá pozostáva z celkovo 92 obytných jednotiek rozmiestnených v 23 dvojposchodových domoch. Celý areál je priestranne naplánovaný a harmonicky zapadá do zelenej, pokojnej krajiny.
Byty zaujmú svojím premysleným, na každodenný život prispôsobeným dizajnom a ponúkajú príjemný pocit z bývania s množstvom svetla, priestoru a súkromia. Každá jednotka disponuje vlastnou záhradkou, ktorá vytvára dodatočný priestor v zelene – ideálny na oddych, hru alebo príjemné chvíle na čerstvom vzduchu.
Pre ďalší komfort má každý byt vyhradené vlastné parkovacie miesto, čo umožňuje jednoduché parkovanie priamo pri bývaní.
Celý projekt sa realizuje podľa moderného štandardu KfW-40 QNG+ a spĺňa tým najvyššie nároky na energetickú efektívnosť a udržateľnosť. Tento prístup zabezpečuje príjemné vnútorné prostredie a súčasný komfort bývania pri nízkej spotrebe energie.
Celkovo tu vzniká pokojné, rodinne priateľské obytné prostredie, ktoré spája moderné bývanie s prírodnou atmosférou – ideálne pre všetkých, ktorí si cení komfort, zelené plochy a uvoľnenú atmosféru bývania.
Nové byty sa nachádzajú v pokojnej a vyspelé obytnej časti v Zossene. Okolie je charakteristické rodinnými domami, množstvom zelene a príjemným, rodinne orientovaným susedstvom, pričom celá oblasť disponuje vynikajúcou infraštruktúrou.
Výnimočnou výhodou lokality je výborná občianska vybavenosť: Supermarket Netto sa nachádza priamo oproti, zatiaľ čo škôlka je pohodlne dostupná pešo v menej než 100 metroch – ideálne pre každodenný život.
Zossen leží len približne 20–30 km južne od berlínskeho mestského okraja a ponúka tak úspešnú kombináciu bývania v prírodnom prostredí a dobrej dostupnosti do hlavného mesta. Dojíždzači profitujú z blízkosti cesty B96 a diaľnice A13, čím sú Berlín a letisko BER rýchlo dosiahnuteľné.
Vďaka v roku 2025 zlepšenej železničnej dostupnosti (doplnenie ďalšej slučkovej trate v regionálnej doprave) sa prístup k verejnej doprave výrazne zlepšil. Letisko BER je tak zo Zossenu dosiahnuteľné približne za 40 minút, čo robí lokalitu zvlášť atraktívnou pre dojíždzačov a často cestujúcich.
V širšom okolí nájdete aj školy, lekárne, lekárov a ďalšie možnosti na nákupy, čím je zabezpečená veľmi dobrá infraštruktúra.
Idylické okolie s množstvom zelených plôch a jazier ponúka vysokú hodnotu pre oddych a vyzýva na prechádzky, športové aktivity alebo jednoduchý relax po náročnom pracovnom dni.
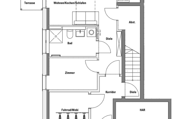
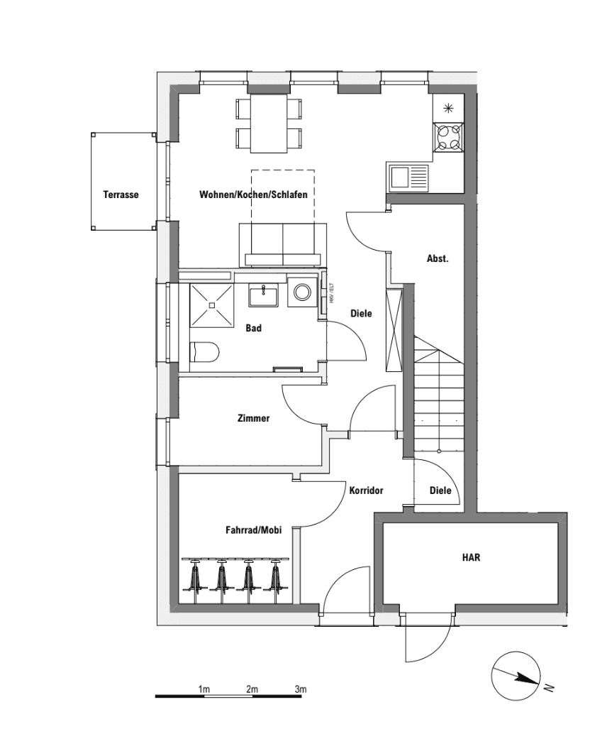
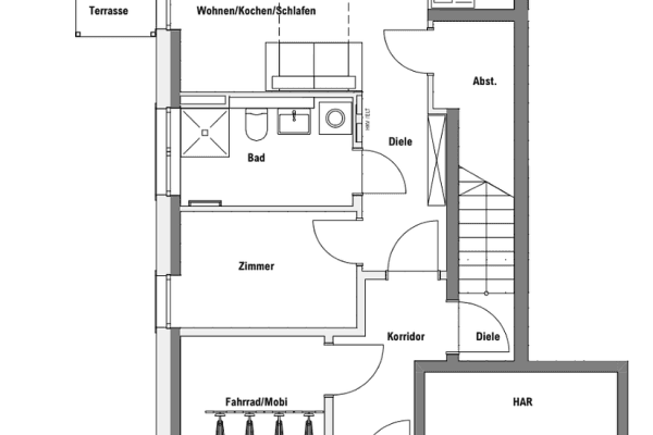
• Terasa s prilehlou, samostatnou prenajímateľnou záhradou
• Vonkajšie parkovacie miesto
• Vrátane zabudovanej kuchynskej linky
• Úložný priestor priamo v byte
• Vonkajšie žalúzie na všetkých oknách
• Trojité zasklené okná
• Drevená podlaha, kúpeľňa obložená dlažbou
• Podlahové kúrenie vo všetkých miestnostiach
• Cyklistická miestnosť s prístupom z prízemia
Ilustrácia bytov – často sú tiež zobrazené fotografie ukážkového bytu. Vyhradzujeme si akékoľvek zmeny. Všetky uvedené informácie v texte a obrazoch slúžia výlučne ako predbežné informácie a nepredstavujú zmluvnú ponuku ani záruku vlastností.
Parametre nehnuteľnosti
| Vek | Nad 50 rokov |
|---|---|
| Stav | Novostavba |
| Číslo inzerátu | 1013866 |
| Úžitková plocha | 41 m² |
| Dostupné od | 1. 6. 2026 |
|---|---|
| Dispozícia | 2+1 |
| PENB | A - Mimoriadne úsporné |
| Cena za jednotku | 13,39 € / m2 |
Čo táto nehnuteľnosť ponúka?
| Parkovanie | |
| Terasa |
| MHD 4 minúty pešo |
V okolí nehnuteľnosti nájdete
Stále hľadáte to pravé?
Nastavte si strážneho psa. Ponuky vybrané na mieru dostanete súhrnne 1× denne e-mailom. S Premium profilom máte po ruke rovno 5 strážcov a keď sa niečo objaví, informujú vás obratom.






