
Prenájom bytu 2+1 • 46 m² bez realitkyTempelhofer Str. 8, , Brandenbursko
Tempelhofer Str. 8, , BrandenburskoMHD 4 minúty pešo • ParkovanieTento moderný rezidenčný projekt novej výstavby pozostáva z celkovo 92 bytových jednotiek, rozmiestnených v 23 dvojposchodových budovách. Projekt je veľkoryso naplánovaný a harmonicky zapadá do zelenej a pokojnej okolia.
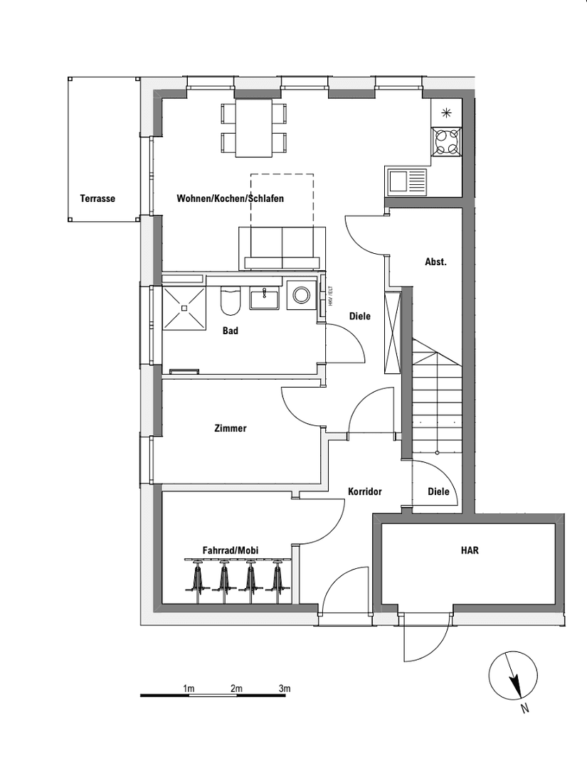
Byty zaujmú premysleným, praktickým dispozíciou navrhnutou pre každodenný život, ktorá ponúka komfortné bývanie s dostatkom svetla, priestoru a súkromia. Každá jednotka má vlastnú súkromnú záhradnú plochu, ktorá poskytuje dodatočný vonkajší priestor – ideálny na oddych, hry alebo vychutnávanie si pokojných chvíľ vonku.
Pre väčšie pohodlie má každý byt pridelené vyhradené parkovacie miesto, čo zabezpečuje jednoduché a bezproblémové parkovanie priamo pri obyvaní.
Celý projekt je vyvíjaný v súlade s moderným štandardom KfW 40 QNG+, ktorý spĺňa najvyššie požiadavky na energetickú účinnosť a udržateľnosť. To zabezpečuje príjemné vnútorné podnebie a moderný komfort bývania spojený s nízkou spotrebou energie.
Celkovo projekt vytvára pokojné, rodinne orientované obytné prostredie, ktoré kombinuje moderné bývanie s úzkym prepojením s prírodou – ideálne pre tých, ktorí si cenia komfort, zelené plochy a uvoľnenú atmosféru bývania.
Novostavbové byty sa nachádzajú v pokojnej a dobre etablovanej obytné oblasti v Zossene. Okolie charakterizujú samostatne stojace domy, množstvo zelene a príjemné, rodinne orientované susedstvo spojené s výbornou infraštruktúrou.
Jednou z výhod lokality je vynikajúce miestne vybavenie: supermarket Netto sa nachádza priamo oproti objektu, zatiaľ čo škôlka je vzdialená menej ako 100 metrov a je ľahko dostupná pešo – ideálne pre každodennú pohodlnosť.
Zossen sa nachádza len približne 20–30 km južne od berlínskych hraníc, čo ponúka vynikajúcu kombináciu pokojného, prírode orientovaného bývania a pohodlného prístupu do hlavného mesta. Dojíždzajúci majú výhodu vďaka blízkosti federálnej cesty B96 a diaľnice A13, ktoré zabezpečujú rýchle spojenie s Berlínom a berlínske-brandenburským letiskom (BER).
Vďaka vylepšenému železničnému spojeniu zavedenému v roku 2025 (vrátane dodatočnej slučky v regionálnych dopravných službách) bola zlepšená aj dostupnosť verejnej dopravy. V dôsledku toho je teraz možné dosiahnuť berlínske-brandenburské letisko (BER) zo Zossenu približne za 40 minút, čo robí lokalitu obzvlášť atraktívnou pre dojíždzajúcich a častých cestovateľov.
V širšom okolí nájdu obyvatelia aj školy, lekárov, lekárne a ďalšie nákupné možnosti, čo zabezpečuje dobre rozvinutú a pohodlnú infraštruktúru.
Idylické okolie, s množstvom zelenej plochy a jazier, ponúka vysokú rekreačnú hodnotu a pozýva obyvateľov na prechádzky, športové aktivity alebo len tak oddych po náročnom pracovnom dni.
• Terasa so susediacou súkromnou záhradou
• Vonkajšie parkovacie miesto
• Vybavená kuchyňa
• Úložná miestnosť v byte
• Vonkajšie rolety na všetkých oknách
• Trojnásobne zasklené okná
• Drevená podlaha, obklady v kúpeľni
• Podlahové kúrenie vo všetkých miestnostiach
• Úložný priestor pre bicykle v prízemí
Znázornenie bytov, pričom často sú zobrazené aj obrázky ukážkového bytu, je len orientačné. Zmeny akéhokoľvek druhu si vyhradzujeme. Všetky údaje uvedené v texte a na obrázkoch slúžia výlučne na predbežnú informáciu a nepredstavujú zmluvnú ponuku ani záruku vlastností.
Parametre nehnuteľnosti
| Vek | Nad 50 rokov |
|---|---|
| Stav | Novostavba |
| Číslo inzerátu | 1013860 |
| Úžitková plocha | 46 m² |
| Dostupné od | 1. 6. 2026 |
|---|---|
| Dispozícia | 2+1 |
| PENB | A - Mimoriadne úsporné |
| Cena za jednotku | 13,30 € / m2 |
Čo táto nehnuteľnosť ponúka?
| Parkovanie | |
| Terasa |
| MHD 4 minúty pešo |
V okolí nehnuteľnosti nájdete
Stále hľadáte to pravé?
Nastavte si strážneho psa. Ponuky vybrané na mieru dostanete súhrnne 1× denne e-mailom. S Premium profilom máte po ruke rovno 5 strážcov a keď sa niečo objaví, informujú vás obratom.






