
Prenájom bytu 2+1 • 41 m² bez realitkyTempelhofer Str. 8, , Brandenbursko
Tempelhofer Str. 8, , BrandenburskoMHD 4 minúty pešo • ParkovanieTáto moderná novostavba rezidenčného projektu pozostáva z celkovo 92 bytových jednotiek, rozmiestnených do 23 dvojpodlažných budov. Projekt je štedro navrhnutý a harmonicky zapadá do zelenej a tichej okolitý prírody.
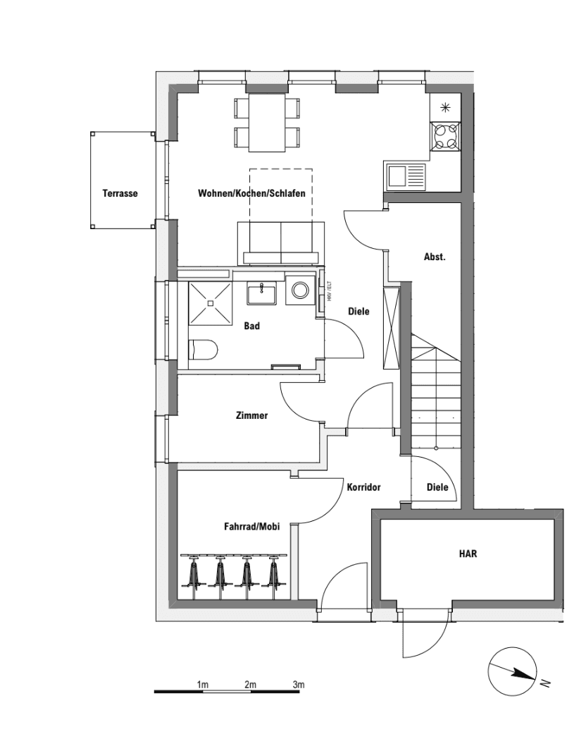
Byty zaujmú premysleným a praktickým dispozíciou, navrhnutou pre každodenný život, ktorá poskytuje komfortné bývanie s množstvom svetla, priestoru a súkromia. Každá jednotka má vlastnú súkromnú záhradnú plochu, ktorá poskytuje ďalší vonkajší priestor – ideálny na oddych, hru alebo vychutnanie si pokojných chvíľ vonku.
Pre väčšie pohodlie má každý byt pridelené vlastné parkovacie miesto, čo zabezpečuje jednoduché a bezproblémové parkovanie priamo pri bývaní.
Celý projekt je realizovaný v súlade s moderným štandardom KfW 40 QNG+, ktorý spĺňa najvyššie požiadavky na energetickú efektívnosť a udržateľnosť. To zaručuje príjemné vnútorné prostredie a súčasný komfort bývania v kombinácii s nízkou spotrebou energie.
Celkovo projekt vytvára pokojnú, rodinne prívetivú rezidenčnú atmosféru, ktorá spája moderný životný štýl s úzkym vzťahom k prírode – ideálnu pre tých, ktorí si cenia pohodlie, zelené plochy a uvoľnenú atmosféru bývania.
Novostavby bytov sa nachádzajú v tichej a dobre zavedenom obytnom areáli v Zossene. Okolie je charakterizované rodinnými domami, množstvom zelene a príjemnou, rodinne orientovanou štvrťou s vynikajúcou infraštruktúrou.
Výhodou lokality sú vynikajúce miestne služby: supermarket Netto sa nachádza priamo oproti nehnuteľnosti, zatiaľ čo materská škola je vzdialená menej ako 100 metrov a ľahko dostupná pešo – ideálne pre každodenný komfort.
Zossen leží len približne 20–30 km južne od hraníc Berlína, čo ponúka vynikajúcu kombináciu pokojného, prírodou orientovaného bývania a pohodlného prístupu k metropole. Pendleri profitujú z blízkosti federálnej cesty B96 a diaľnice A13, ktoré zaisťujú rýchle spojenie s Berlínom a letiskom Berlin Brandenburg (BER).
Vďaka zlepšenej železničnej doprave zavedené v roku 2025 (vrátane ďalšej slučky v regionálnych dopravných službách) bola dostupnosť verejnej dopravy ešte viac zlepšená. V dôsledku toho je možné sa z Zossena dostať na letisko Berlin Brandenburg (BER) približne za 40 minút, čo robí lokalitu obzvlášť atraktívnou pre pendlerov a častých cestujúcich.
V širšom okolí obyvatelia nájdu aj školy, lekárov, lekárne a ďalšie nákupné možnosti, čím je zabezpečená dobre rozvinutá a pohodlná infraštruktúra.
Idylické okolie s množstvom zelených plôch a jazier poskytuje vysokú rekreačnú hodnotu a vyzýva obyvateľov na prechádzky, športové aktivity alebo jednoducho na oddych po náročnom pracovnom dni.
- Terasa s prilehlou súkromnou záhradou na prenájom
- Vonkajšie parkovacie miesto
- Vybavená kuchyňa
- Úložný priestor priamo v byte
- Vonkajšie žalúzie na všetkých oknách
- Trojsklené okná
- Drevená podlaha, dlažbená kúpeľňa
- Podlahové kúrenie vo všetkých miestnostiach
- Úložná miestnosť na bicykle v prízemí
Zobrazenie bytov je často doplnené aj o fotografie ukážkového bytu. Akékoľvek zmeny si vyhradzujeme. Všetky údaje uvedené v texte a na obrázkoch slúžia výhradne na predbežnú informáciu a nepredstavujú zmluvnú ponuku ani záruku vlastností.
Parametre nehnuteľnosti
| Vek | Nad 50 rokov |
|---|---|
| Stav | Novostavba |
| Číslo inzerátu | 1013861 |
| Úžitková plocha | 41 m² |
| Dostupné od | 1. 6. 2026 |
|---|---|
| Dispozícia | 2+1 |
| PENB | A - Mimoriadne úsporné |
| Cena za jednotku | 13,39 € / m2 |
Čo táto nehnuteľnosť ponúka?
| Parkovanie | |
| Terasa |
| MHD 4 minúty pešo |
V okolí nehnuteľnosti nájdete
Stále hľadáte to pravé?
Nastavte si strážneho psa. Ponuky vybrané na mieru dostanete súhrnne 1× denne e-mailom. S Premium profilom máte po ruke rovno 5 strážcov a keď sa niečo objaví, informujú vás obratom.






