
Prenájom bytu 2+1 • 46 m² bez realitkyTempelhofer Str. 8, , Brandenbursko
Tempelhofer Str. 8, , BrandenburskoMHD 4 minúty pešo • ParkovanieNovostavba je moderný obytný komplex, pozostávajúci z celkového počtu 92 obytných jednotiek, ktoré sú rozdelené do 23 dvojpodlažných domov. Celý objekt je priestranne navrhnutý a harmonicky zapadá do zelenej, pokojnej oblasti.
Byty zaujmú premysleným, každodenným dizajnom a ponúkajú príjemný pocit z bývania s dostatkom svetla, priestoru a súkromia. Každá jednotka má vlastnú časť záhrady, ktorá poskytuje dodatočný priestor v prírode – ideálne na odpočinok, hranie alebo na príjemné chvíle vonku.
Pre dodatočný komfort má každý byt pridelené vlastné parkovacie miesto, čo umožňuje jednoduché parkovanie priamo pri bývaní.
Celý projekt je realizovaný podľa moderného štandardu KfW-40 QNG+ a tým spĺňa najvyššie nároky na energetickú efektívnosť a udržateľnosť. Výsledkom je príjemné vnútorné prostredie a moderný bývací komfort pri nízkej spotrebe energie.
Celkovo vzniká pokojné, rodinno-priateľské obytné prostredie, ktoré spája moderné bývanie s blízkosťou k prírode – ideálne pre všetkých, ktorí si cenia komfort, zelené plochy a uvoľnenú atmosféru.
Novostavbové byty sa nachádzajú v pokojnej a ustálenej obytné lokalite v Zossene. Okolie je charakterizované rodinnými domami, množstvom zelene a príjemnou, rodinno-priateľskou susednosťou, pričom je kombinované s vynikajúcou infraštruktúrou.
Jedným z výhod lokality je vynikajúce vybavenie v bezprostrednej blízkosti: supermarket Netto sa nachádza priamo oproti, zatiaľ čo materská škôlka je pohodlne dostupná pešo, vo vzdialenosti menej ako 100 metrov – ideálne pre každodenný život.
Zossen leží iba približne 20–30 km južne od berlínskych hraníc, čo ponúka úspešnú kombináciu bývania v prírode a zabezpečenej dostupnosti do hlavného mesta. Cestujúci do práce budú profitovať z blízkosti cesty B96 a diaľnice A13, čo umožňuje rýchly prístup do Berlína aj na letisko BER.
Vďaka vylepšenej železničnej prípojke, ktorá bude dokončená v roku 2025 (s pridaním ďalšej slučky v regionálnej doprave), sa dostupnosť verejnej dopravy ešte výraznejšie zlepšila. Letisko BER je zo Zossenu dosiahnuteľné približne za 40 minút, čo robí lokalitu zvlášť atraktívnou pre dochádzajúcich pracovníkov a častých cestovateľov.
V širšom okolí sa nachádzajú aj školy, lekári, lekárne a ďalšie nákupné možnosti, takže infraštruktúra je na veľmi vysokej úrovni.
Idylické okolie s množstvom zelených plôch a jazier poskytuje vysokú mieru relaxácie a vyzýva na prechádzky, športové aktivity alebo jednoducho na oddych po náročnom pracovnom dni.
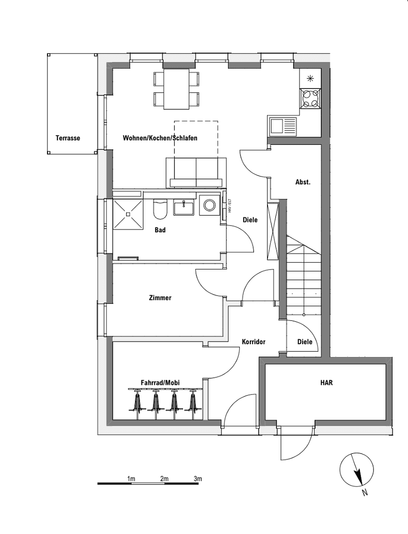
– Terasa s prilehlou, samostatnou prenajímateľnou záhradou
– Vonkajšie parkovacie miesto
– Vrátane vstavaných kuchynských zariadení
– Úložný priestor v byte
– Trojsklo
– Vonkajšie žalúzie na všetkých oknách
– Podlahový parket, kúpeľňa obložená dlažbou
– Podlahové vykurovanie vo všetkých miestnostiach
– Bicyklový priestor s prístupom na rovine
Ilustrácia bytov často zobrazuje aj fotografie vzorového bytu. Zmeny akéhokoľvek druhu sú vyhradené. Všetky údaje v texte a na obrázkoch slúžia výhradne pre predbežné informovanie a nepredstavujú ani zmluvnú ponuku, ani záruku vlastností.
Parametre nehnuteľnosti
| Vek | Nad 50 rokov |
|---|---|
| Stav | Novostavba |
| Číslo inzerátu | 1013864 |
| Úžitková plocha | 46 m² |
| Dostupné od | 1. 6. 2026 |
|---|---|
| Dispozícia | 2+1 |
| PENB | A - Mimoriadne úsporné |
| Cena za jednotku | 13,30 € / m2 |
Čo táto nehnuteľnosť ponúka?
| Parkovanie | |
| Terasa |
| MHD 4 minúty pešo |
V okolí nehnuteľnosti nájdete
Stále hľadáte to pravé?
Nastavte si strážneho psa. Ponuky vybrané na mieru dostanete súhrnne 1× denne e-mailom. S Premium profilom máte po ruke rovno 5 strážcov a keď sa niečo objaví, informujú vás obratom.






