
Predaj bytu 4+kk • 97 m² bez realitkyTreskowallee 56 Berlin Karlshorst Berlin 10318
Tento mimoriadne atraktívny byt v vlastníctve spája štýlové bývanie, priestranné dispozície a harmonické súžitie vo vyspelom domovskom spoločenstve.
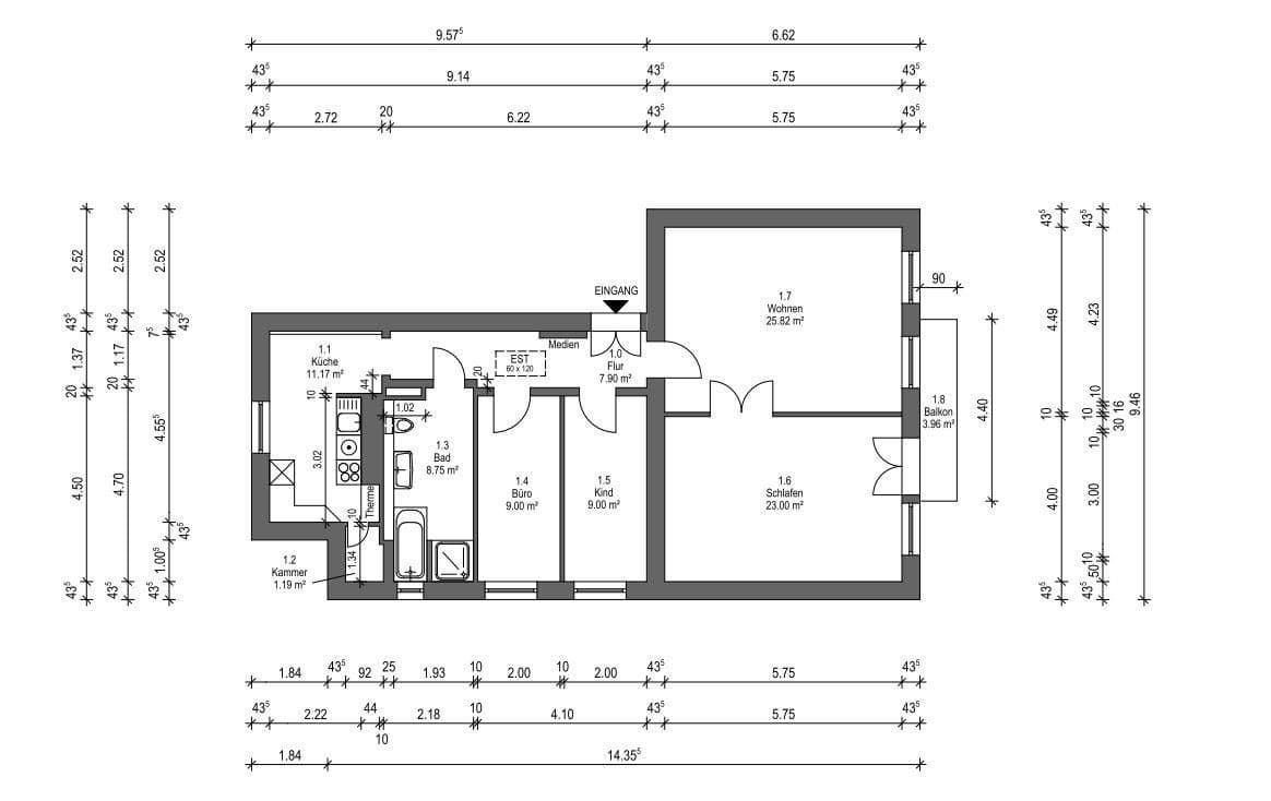
Ponúkaný 4,5 izbový byt s približne 96,63 m² obytnou plochou sa nachádza v udržiavanom viacrodinnom dome s 7 obytnými jednotkami a 2 obchodnými priestormi. Medzi obchodné priestory patria zavedené kozmetické štúdio a obchod s bicyklami – oba sú už mnoho rokov pevnou súčasťou susedstva.
Domov s jedinečným pocitom spoločenstva
Spoločenstvo vlastníkov a nájomcov sa vyznačuje priateľským, dlhoročným spolužitím – zriedkavou a cennou kvalitou, ktorá tento objekt robí výnimočným.
Pozemok a vonkajší priestor
Pozemok o rozlohe približne 1 100 m² ponúka pôsobivý celkový dojem:
• Priestranne upravený vnútorný dvor (cca 600 m²)
• 5 parkovacích miest a 4 garáže (vrátane 1 parkovacieho miesta/garáže pre byt)
• Prístup cez príjazd s elektrickou bránou
• Starostlivo upravená záhrada s:
– stromami a rôznorodou výsadbou
– obloženou terasou
– pieskoviskom
– samostatnou, oplotenou zónou pre odpad
• Praktické úložné priestory pre každý byt (prístupné z dvora)
Budova a modernizácie
• Strecha a krovy boli obnovené pred približne 15 rokmi
• Inštalácia UMTS antény (dodatočný príjem pre spoločenstvo vlastníkov)
• Rekonštrukcia balkóna vrátane odvodnenia v roku 2024
• Prístupný z ulice aj z vnútorného dvora
• Udržiavané schodisko:
– obložený vstupný priestor
– linoleový povrch na schodoch a prístupových plošinách
– hladko omietnuté steny s tkanivovou tapetou
– štýlové viacfarebné prevedenie s okolitým stukátovým lemom
Detaily bytu
Byt zaujme vysokými stropmi (cca 3 m), premyslenými dispozíciami a kvalitnými materiálmi:
• Dvojsklo s zvýšenou zvukovou izoláciou
• Zavesené stropy s dodatočnou izoláciou
Kuchyňa:
• Vstavaná kuchyňa
• Kvalitná laminátová podlaha
• Hladké steny
• Samostatná komora na úložisko s oknom
Kúpeľňa:
• Kompletne obložená
• Vybavená vaňou aj sprchou
Chodba:
• Kvalitné natretie stien
• Veľkoformátové dlaždice
• Prístupný priestor pod stropom cez integrované schody
Obývacia izba:
• Kvalitná laminátová podlaha
• Struktúrovaná tapeta a elegantné stukátové lišty
• Dekoratívny stropný prvok (plachtový prvok) ako vizuálna dominanta
Spálňa:
• Prístup na balkón
• Pokojná a príjemná atmosféra
Detská izba/kancelária:
• Kvalitné podlahové krytiny
• Štýlová úprava stien
• Izba s integrovanou vysokou posteľou – ideálna pre kreatívne využitie
Záver
Tento byt ponúka zriedkavú kombináciu:
• Priestranného šarmu historickej stavby
• Udržiavanej a zmodernizovanej štruktúry
• Atraktívneho vonkajšieho prostredia
• Dodatočných príjmov pre spoločenstvo vlastníkov
• Harmonického domovského spoločenstva
Ideálny domov pre rodiny, páry alebo investorov, ktorí si cenia kvalitu, atmosféru a dlhodobý bývací potenciál. Byt je momentálne prenajatý.
Byt sa nachádza v Treskowallee v obľúbenom berlínskej štvrti Karlshorst – jednej z najžiadanejších obytných lokalít v okrese Lichtenberg. Karlshorst spája výnimočným spôsobom pokojné, zelené bývanie s blízkosťou pulzujúceho berlínskeho centra.
Okolie je charakterizované udržiavanými historickými budovami, vilami a množstvom zelene, čo dodáva štvrti príjemnú, takmer malomestskú atmosféru. Zároveň môžete využiť vynikajúco rozvinutú infraštruktúru.
Optimálne dopravné spojenie:
• Električkové linky priamo v Treskowallee
• Stanica S-Bahn Karlshorst (S3) dostupná za niekoľko minút
• Rýchle spojenie s berlínskym centrom (napríklad Alexanderplatz)
• Dobré spojenie s cestami B1/B5 a Berlínskym kruhovým obvodom
Všetko pre každodenné potreby v bezprostrednej blízkosti:
• Supermarkety, pekárne a lekárne
• Kaviarne, reštaurácie a malé obchody
• Lekári, školy a materské školy
Vysoká hodnota pre voľný čas a oddych:
• Rozľahlé zelené plochy a parky
• Blízkosť k Wuhlheide – ideálna na prechádzky, šport a rodinné výlety
• Traberbahn Karlshorst ako historická atrakcia
• Rôznorodé voľnočasové a kultúrne ponuky
Karlshorst je považovaný za rodinný, bezpečný a vyspelý – štvrť, ktorá v posledných rokoch získava na obľúbenosti bez straty svojho uvoľneného charakteru.
Lokalita, ktorá dokonale spája mestský život a pokojné útočisko – ideálna pre tých, ktorí chcú bývať blízko centra, a zároveň v pokojných podmienkach.
Radi dohodneme termín obhliadky – tešíme sa na Vašu dopyt!
Parametre nehnuteľnosti
| Vek | Nad 50 rokov |
|---|---|
| Dispozícia | 4+kk |
| Číslo inzerátu | 1012716 |
| Cena za jednotku | 4 329,90 € / m2 |
| Stav | Dobrý |
|---|---|
| Poschodie | 2. poschodie z 4 |
| Úžitková plocha | 97 m² |
Čo táto nehnuteľnosť ponúka?
| Balkón | |
| Parkovanie | |
| Terasa |
| Pivnica | |
| MHD 1 minúta pešo |
V okolí nehnuteľnosti nájdete
Stále hľadáte to pravé?
Nastavte si strážneho psa. Ponuky vybrané na mieru dostanete súhrnne 1× denne e-mailom. S Premium profilom máte po ruke rovno 5 strážcov a keď sa niečo objaví, informujú vás obratom.























